Turnpike Close, Pontypool, NP4
By Number One Real Estate
£ 155,000
Reviews
2 out of 5 stars
Number One Real Estate says ..
* 3 BEDROOMS * LARGE OPEN PLAN RECEPTION ROOM * PRACTICAL KITCHEN * LOW MAINTENANCE PATIO GARDEN * UTILITY ROOM / CLOAKROOM * ALLOCATED PARKING * GREAT LOCATION
Property Oracle says ..
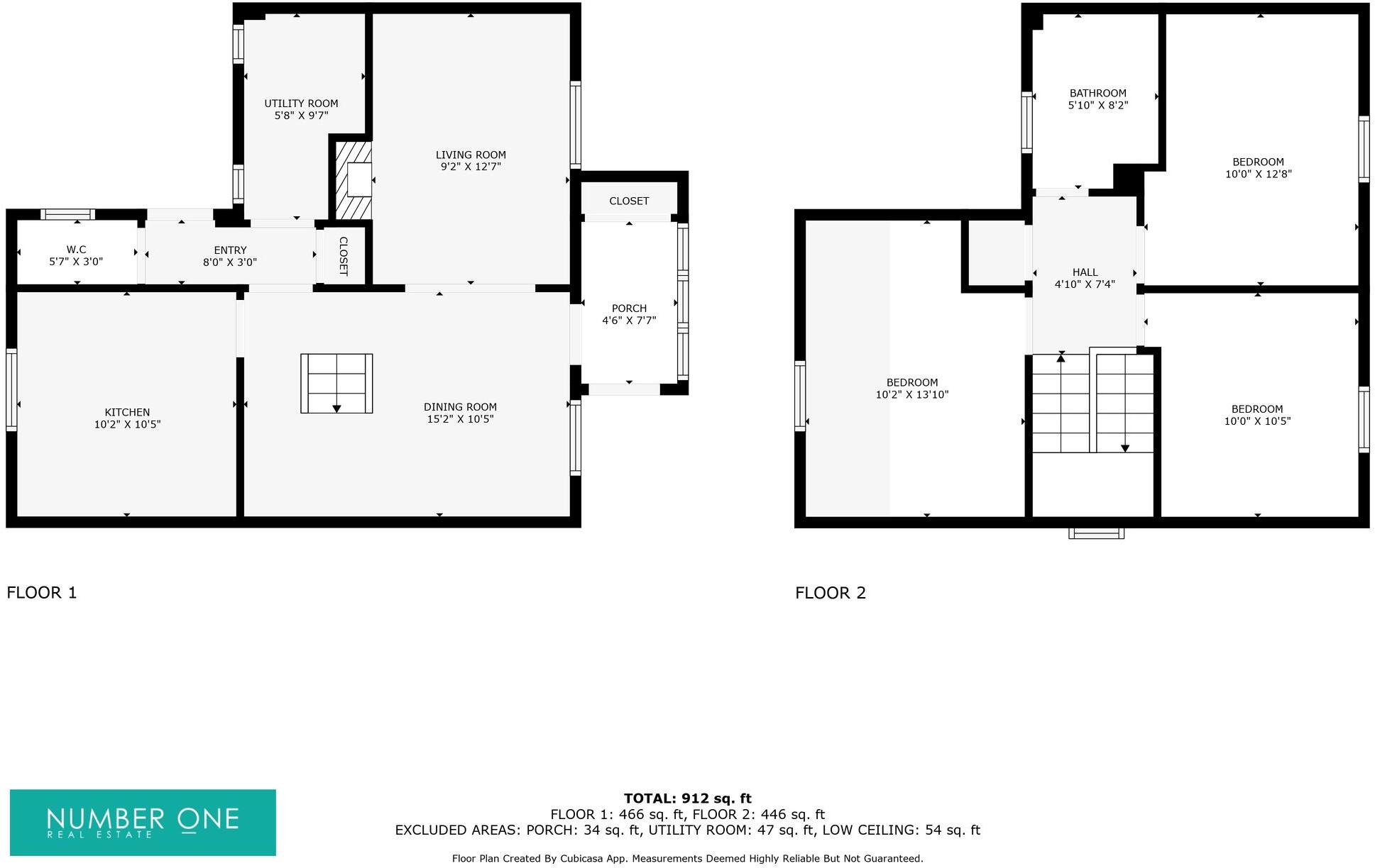
The property is a 3-bedroom terraced house located in Turnpike Close, New Inn, Pontypool. It’s situated relatively close to Pontypool and New Inn train station (0.65km), providing convenient access to public transportation. Several primary and secondary schools are within a 2km radius, making it potentially attractive to families. The property itself has a small garden area, though its size is not explicitly stated. The house appears to be in need of some modernisation and updating, as indicated by the dated interior finishes and carpeting visible in the provided photographs. The list price of £155,000 is considerably lower than the average house price in the area (£305,948), and the average price per square foot is also lower than the area average. However, this could be due to the condition of the property requiring renovation. Nearby comparable properties on Turnpike Close are listed at £150,000 and £170,000, suggesting the list price is within the range of similar properties in the immediate vicinity.
Therefore, we give this property 5 / 10. *Disclaimer: This is our option and does constitute a recommendation or financial advice. Do your own research. *
- Price
- 7
- Condition
- 4
- Location
- 7
- Land
- 5
- Bedrooms
- 3
- Bathrooms
- 1
- Sqft (est)
- 909.80
- Lot (est)
- 912.00
The heatmap indicates the level of crime in the area. The color of the heatmap indicates the crime severity and recency.
Metrics Year-on-Year
- Average area value
- 283,000.00 £Decreased by 21.70 %
- Est sale value
- 345,724.00 £Increased by 38.69 %
- Average area rental value
- 1,134.00 £/moIncreased by 19.24 %
- Est letting value
- 909.80 £/mo
- Est rental Yield
- 4.81 %Increased by 52.22 %
- Crime Rate
- 5.00 %Unchanged by 0.00 %
Agent Activity
Number One Real Estate created the listing.
Nearby Schools
| Name | Type | Ofsted | Distance |
|---|---|---|---|
| New Inn Primary School | Welsh Establishment | 1.51 KM | |
| Griffithstown Primary | Welsh Establishment | 1.96 KM | |
| Penygarn Primary School | Welsh Establishment | 1.98 KM | |
| West Monmouth Comprehensive School | Welsh Establishment | 2.01 KM | |
| St Alban'S R.C. High School | Welsh Establishment | 2.13 KM |
Images
Nearby Streets
| Name | Average Price | Average Sqft | Distance |
|---|---|---|---|
| Hillcrest Road | £ 0 | 0 | 0.00 KM |
| Lodge Wood | £ 380,825 | 0 | 0.00 KM |
| Coed-Y-Canddo Road | £ 0 | 0 | 0.00 KM |
| Fountain Road | £ 310,000 | 0 | 0.00 KM |
| The Avenue | £ 350,000 | 0 | 0.00 KM |
Nearby Transport
| Name | NLC | TLC | Distance |
|---|---|---|---|
| Pontypool And New Inn | 3744 | PPL | 0.65 KM |
| Cwmbran | 3738 | CWM | 4.82 KM |
Nearby Listings
| Address | Price | Type | Score | Distance |
|---|---|---|---|---|
| Turnpike Close, Pontypool, NP4 | £ 155,000 | BUY | 5 / 10 | 0.00 KM |
| Turnpike Close, Pontypool | £ 170,000 | BUY | Unknown | 0.01 KM |
| Usk Road, Pontypool | £ 270,000 | BUY | 5 / 10 | 0.08 KM |
| Usk Road, Pontypool | £ 280,000 | BUY | 6 / 10 | 0.10 KM |
| Usk Road, New Inn | £ 475,000 | BUY | 6 / 10 | 0.30 KM |
Nearby Properties
| Address | Price | Distance |
|---|---|---|
| 11 Usk Vale Court | £ 216,000 | 0.07 KM |
| 6 Usk Vale Court | £ 192,000 | 0.08 KM |
| 28 Usk Road | £ 200,000 | 0.14 KM |
| 26 Usk Road | £ 350,000 | 0.14 KM |
| 30 Usk Road | £ 435,000 | 0.14 KM |