Churchills Estate Agents says ..
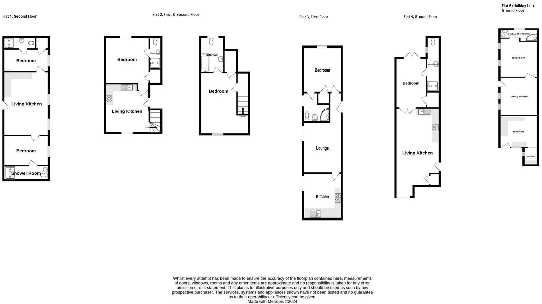
A RARE OPPOTUNITY TO PURCHASE THE FREEHOLD OF THIS LARGE CORNER PERIOD PROPERTY WITH FIVE SELF CONTAINED APARTMENTS. CENTRAL LOCATION JUST OUTSIDE THE CITY WALLS, WITHIN 5 MINUTES WALK OF THE CITY CENTRE AND RAILWAY STATION AND CLOSE TO THE POPULAR 'BISHY ROAD' SHOPPING PARADE. An ideal investmen...
Property Oracle says ..
This apartment is located on Nunnery Lane in York, within the Micklegate locality. The property features 7 bedrooms and 7 bathrooms, with a total square footage of 2,136. Based on the images, the condition of the apartment appears to vary. Some rooms look modern and well-maintained, while others show signs of needing renovation. The bathrooms, in particular, appear dated. Overall, the condition seems to be fair. The property has a small outdoor space, which could be considered a small garden or patio area. The list price is £795,000. The average price per square foot in the area is £418. This apartment is listed at approximately £372 per square foot. The average house price in the area is £542,496 with an average sqft of 1,297. Considering the size of the apartment and the number of bedrooms and bathrooms, the price seems reasonable, especially if the apartment is suitable for multiple tenants. However, the price may be affected by the condition of the property.
Therefore, we give this property 6 / 10. *Disclaimer: This is our option and does constitute a recommendation or financial advice. Do your own research. *
- Price
- 7
- Condition
- 6
- Location
- 8
- Land
- 3
- Bedrooms
- 7
- Bathrooms
- 7
- Sqft (est)
- 2,136.00
The heatmap indicates the level of crime in the area. The color of the heatmap indicates the crime severity and recency.
Metrics Year-on-Year
- Average area value
- 542,496.00 £Increased by 34.28 %
- Est sale value
- 892,848.00 £Increased by 33.55 %
- Average area rental value
- 1,435.00 £/moIncreased by 6.30 %
- Est letting value
- 2,136.00 £/moUnchanged by 0.00 %
- Est rental Yield
- 3.17 %Decreased by 20.95 %
- Crime Rate
- 9.00 %Unchanged by 0.00 %
Agent Activity
Churchills Estate Agents created the listing.
Nearby Schools
| Name | Type | Ofsted | Distance |
|---|---|---|---|
| Scarcroft Primary School | Academy Converter | 0.51 KM | |
| Millthorpe School | Academy Converter | Good | 0.70 KM |
| Knavesmire Primary School | Academy Converter | 1.04 KM | |
| Knavesmire Children'S Centre | Children's Centre | 1.04 KM | |
| Fishergate Primary School | Community School | Good | 1.10 KM |
Images
Nearby Streets
| Name | Average Price | Average Sqft | Distance |
|---|---|---|---|
| Drake Street | £ 180,000 | 0 | 0.00 KM |
| Bishopgate Street | £ 0 | 0 | 0.00 KM |
| Bishops Court | £ 0 | 0 | 0.00 KM |
| Bishopthorpegate Street | £ 230,000 | 0 | 0.00 KM |
| Victoria Cloisters | £ 251,667 | 0 | 0.00 KM |
Nearby Transport
| Name | NLC | TLC | Distance |
|---|---|---|---|
| York | 8263 | YRK | 1.04 KM |
| Poppleton | 8254 | POP | 7.45 KM |
Nearby Listings
| Address | Price | Type | Score | Distance |
|---|---|---|---|---|
| Nunnery Lane, York | £ 795,000 | BUY | 6 / 10 | 0.00 KM |
| Drake Street, York, YO23 | £ 175,000 | BUY | Unknown | 0.00 KM |
| Nunnery Lane, York, YO23 | £ 500,000 | BUY | 8 / 10 | 0.03 KM |
| Nunnery Lane, York | £ 375,000 | BUY | 6 / 10 | 0.03 KM |
| Nunnery Lane, York, YO23 | £ 790,000 | BUY | 5 / 10 | 0.05 KM |
Nearby Properties
| Address | Price | Distance |
|---|---|---|
| 82 Nunnery Lane | £ 84,000 | 0.03 KM |
| 32 Nunnery Lane | £ 173,000 | 0.03 KM |
| 52 Nunnery Lane | £ 268,000 | 0.03 KM |
| 70 Nunnery Lane | £ 325,000 | 0.03 KM |
| 40 Nunnery Lane | £ 285,000 | 0.03 KM |