Burn & Warne says ..
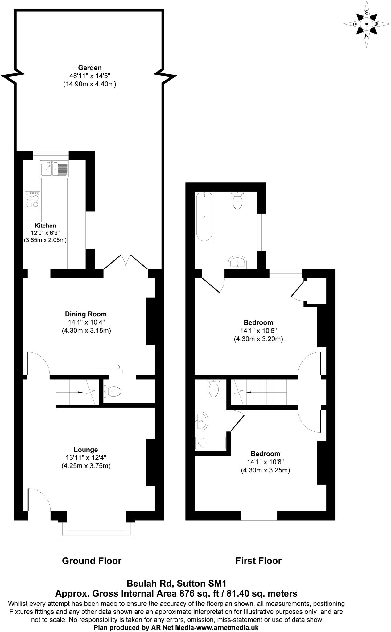
Charming Victorian Property* Two Spacious Double Bedrooms *Two Bathrooms * Ground Floor Cloakroom * Stunning High Gloss Kitchen* South-Facing Rear Garden *Excellent School Catchment* Close to Sutton & West Sutton Stations* This rarely available Victorian family home is located on ...
Property Oracle says ..
This is a two-bedroom terraced house on Beulah Road in Sutton Central, Sutton. The property is listed for £450,000 by Burn & Warne. It features two bathrooms and has a square footage of 876 sqft. The property benefits from a garden and appears to be in generally good condition, with a modern kitchen. While some minor updates could enhance its appeal, it is well-located near schools, transportation, and local amenities. The price is slightly above the average price per square foot for the area but is reasonable given the property’s condition and location.
Therefore, we give this property 6 / 10. *Disclaimer: This is our option and does constitute a recommendation or financial advice. Do your own research. *
- Price
- 7
- Condition
- 7
- Location
- 7
- Land
- 6
- Bedrooms
- 2
- Bathrooms
- 2
- Sqft (est)
- 876.00
The heatmap indicates the level of crime in the area. The color of the heatmap indicates the crime severity and recency.
Metrics Year-on-Year
- Average area value
- 404,917.00 £Increased by 11.82 %
- Est sale value
- 375,804.00 £Decreased by 12.63 %
- Average area rental value
- 1,930.00 £/moIncreased by 5.12 %
- Est letting value
- 1,752.00 £/moUnchanged by 0.00 %
- Est rental Yield
- 5.72 %Decreased by 5.92 %
- Crime Rate
- 7.00 %Unchanged by 0.00 %
Agent Activity
Burn & Warne created the listing.
Nearby Schools
| Name | Type | Ofsted | Distance |
|---|---|---|---|
| The Limes College | Academy Alternative Provision Converter | 0.23 KM | |
| Thomas Wall Nursery School | Local Authority Nursery School | Outstanding | 0.32 KM |
| Robin Hood Infants' School | Community School | Outstanding | 0.32 KM |
| Homefield Preparatory School | Other Independent School | 0.53 KM | |
| Robin Hood Junior School | Community School | Good | 0.59 KM |
Images
Nearby Streets
| Name | Average Price | Average Sqft | Distance |
|---|---|---|---|
| Beauchamp Road | £ 0 | 0 | 0.00 KM |
| Bushey Road | £ 0 | 0 | 0.00 KM |
| Wilcox Road | £ 0 | 0 | 0.00 KM |
| Anton Crescent | £ 0 | 0 | 0.00 KM |
| Vale Road | £ 0 | 0 | 0.00 KM |
Nearby Transport
| Name | NLC | TLC | Distance |
|---|---|---|---|
| West Sutton | 5293 | WSU | 0.44 KM |
| Sutton Common | 5436 | SUC | 1.06 KM |
| Sutton | 5385 | SUO | 1.37 KM |
| Cheam | 5352 | CHE | 1.89 KM |
| Belmont | 5350 | BLM | 2.56 KM |
Nearby Listings
| Address | Price | Type | Score | Distance |
|---|---|---|---|---|
| Beulah Road, Sutton, SM1 | £ 450,000 | BUY | 6 / 10 | 0.00 KM |
| Beulah Road, SUTTON, Surrey, SM1 | £ 475,000 | BUY | 6 / 10 | 0.01 KM |
| Beulah Road, Sutton | £ 450,000 | BUY | 7 / 10 | 0.01 KM |
| Beulah Road, Sutton, Surrey, SM1 | £ 500,000 | BUY | Unknown | 0.01 KM |
| Beulah Road, Sutton, Surrey | £ 500,000 | BUY | Unknown | 0.05 KM |
Nearby Properties
| Address | Price | Distance |
|---|---|---|
| 79 Beulah Road | £ 194,000 | 0.01 KM |
| 29 Beulah Road | £ 494,999 | 0.01 KM |
| 67 Beulah Road | £ 360,000 | 0.01 KM |
| 27 Beulah Road | £ 390,000 | 0.01 KM |
| 51 Beulah Road | £ 398,000 | 0.01 KM |