HALLMARK FINE HOMES | Backhouse Lane, Woolley, Wakefield
By Hallmark from Richard Kendall
£ 1,249,000
Reviews
3 out of 5 stars
Hallmark from Richard Kendall says ..
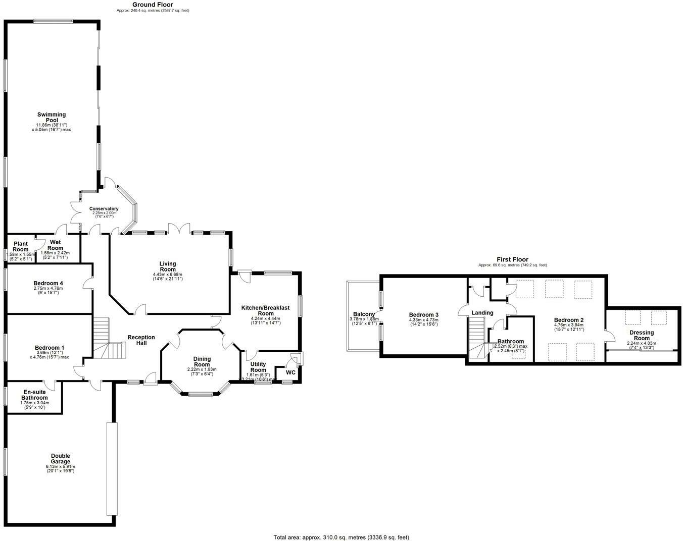
A generously proportioned, individual built stone residence featuring four bedrooms, a spacious indoor heated SWIMMING POOL, main bedroom with en suite, a second bedroom with a balcony, a sizable integrated double garage, and SECLUDED PRIVATE GROUNDS. EPC rating C69.
Property Oracle says ..
This property is a substantial detached house located in Woolley, Wakefield. The house is presented to a high standard and benefits from a large garden and a swimming pool. The location is semi-rural, offering a tranquil setting yet within reasonable distance of local amenities and transport links. The property appears to be in excellent condition, well-maintained, and modern in style. The price is above the average for the area, but given the size, features, and condition of the property, it may represent fair value for money.
Therefore, we give this property 7 / 10. *Disclaimer: This is our option and does constitute a recommendation or financial advice. Do your own research. *
- Price
- 7
- Condition
- 9
- Location
- 7
- Land
- 8
- Bedrooms
- 4
- Bathrooms
- 3
- Sqft (est)
- 2,231.79
- Lot (est)
- 3,336.81
The heatmap indicates the level of crime in the area. The color of the heatmap indicates the crime severity and recency.
Metrics Year-on-Year
- Average area value
- 266,869.00 £Decreased by 21.28 %
- Est sale value
- 738,722.49 £Increased by 8.52 %
- Average area rental value
- 1,150.00 £/moIncreased by 29.21 %
- Est letting value
- 2,231.79 £/mo
- Est rental Yield
- 5.17 %Increased by 64.13 %
- Crime Rate
- 17.00 %Unchanged by 0.00 %
Agent Activity
Hallmark from Richard Kendall created the listing.
Nearby Schools
| Name | Type | Ofsted | Distance |
|---|---|---|---|
| Crigglestone Dane Royd Junior And Infant School | Community School | Outstanding | 1.72 KM |
| Pennine Camphill Community | Special Post 16 Institution | Requires improvement | 2.27 KM |
| Dove School | Other Independent Special School | Good | 3.10 KM |
| Forest Wood Childrens Centre | Children's Centre Linked Site | 3.11 KM | |
| Crigglestone Nursery School | Local Authority Nursery School | Outstanding | 3.17 KM |
Images
Nearby Streets
| Name | Average Price | Average Sqft | Distance |
|---|---|---|---|
| The Walled Garden | £ 0 | 0 | 0.00 KM |
| Moorland Drive | £ 0 | 0 | 0.00 KM |
| Marshall Avenue | £ 0 | 0 | 0.00 KM |
Nearby Transport
| Name | NLC | TLC | Distance |
|---|---|---|---|
| Darton | 8420 | DRT | 3.28 KM |
| Sandal And Agbrigg | 8358 | SNA | 6.76 KM |
| Wakefield Westgate | 8591 | WKF | 7.72 KM |
| Wakefield Kirkgate | 8584 | WKK | 7.84 KM |
| Dodworth | 6781 | DOD | 7.98 KM |
Nearby Listings
| Address | Price | Type | Score | Distance |
|---|---|---|---|---|
| HALLMARK FINE HOMES | Backhouse Lane, Woolley, Wakefield | £ 1,249,000 | BUY | 7 / 10 | 0.00 KM |
| HALLMARK FINE HOMES | Backhouse Lane, Woolley, Wakefield | £ 899,950 | BUY | 7 / 10 | 0.00 KM |
| Old Beech Farm, Woolley, Wakefield, WF4 | £ 1,695,000 | BUY | 8 / 10 | 0.14 KM |
| Church Cottage, Church Street, Woolley, Wakefield | £ 700,000 | BUY | 7 / 10 | 0.19 KM |
| Sycamore House, Woolley, WF4 2JY | £ 1,250,000 | BUY | 8 / 10 | 0.31 KM |
Nearby Properties
| Address | Price | Distance |
|---|---|---|
| Windrush | £ 950,000 | 0.02 KM |
| 9 Back House Lane | £ 365,000 | 0.06 KM |
| 16 High Street | £ 199,000 | 0.13 KM |
| 9 - 11 High Street | £ 620,000 | 0.13 KM |
| 4 High Street | £ 540,000 | 0.13 KM |