DA
Marine Parade, Budleigh Salterton, EX9
By David Rhys
£ 840,000
Reviews
3 out of 5 stars
David Rhys says ..
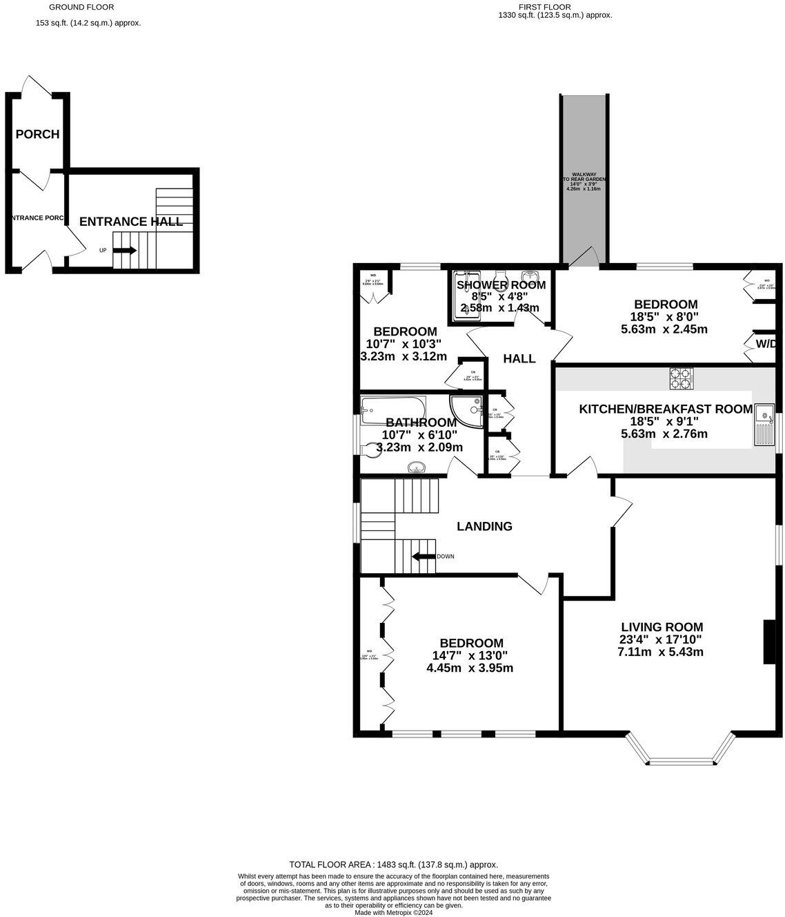
This superb, first floor apartment is set in a charming period house enjoying a unique position overlooking the pebbled beach at Budleigh Salterton with panoramic sea views across the whole of Lyme bay and the East Devon coastline. Marine Parade is a highly favoured address with individual pro...
Property Oracle says ..
Therefore, we give this property 7 / 10. *Disclaimer: This is our option and does constitute a recommendation or financial advice. Do your own research. *
- Price
- 6
- Condition
- 8
- Location
- 9
- Land
- 7
- Bedrooms
- 3
- Bathrooms
- 2
- Sqft (est)
- 1,369.00
The heatmap indicates the level of crime in the area. The color of the heatmap indicates the crime severity and recency.
Metrics Year-on-Year
- Average area value
- 604,931.00 £Decreased by 0.31 %
- Est sale value
- 647,537.00 £Decreased by 1.05 %
- Average area rental value
- 2,475.00 £/moIncreased by 98.64 %
- Est letting value
- 1,369.00 £/mo
- Est rental Yield
- 4.91 %Increased by 99.59 %
- Crime Rate
- 17.00 %Unchanged by 0.00 %
from 606,837.00 £
from 654,382.00 £
from 1,246.00 £/mo
from 0.00 £/mo
from 2.46 %
from 17.00 %
Agent Activity
David Rhys created the listing.
Nearby Schools
| Name | Type | Ofsted | Distance |
|---|---|---|---|
| St Peter'S Church Of England Primary School | Voluntary Aided School | Good | 1.64 KM |
| Drake'S Church Of England Primary School | Academy Converter | 2.65 KM | |
| Otterton Church Of England Primary School | Academy Converter | 3.77 KM | |
| Mill Water School | Foundation Special School | Good | 4.73 KM |
| Littleham Church Of England Primary School | Voluntary Controlled School | Requires improvement | 6.34 KM |
Images
Nearby Streets
| Name | Average Price | Average Sqft | Distance |
|---|---|---|---|
| Park's Lane | £ 0 | 0 | 0.00 KM |
| Chapel Hill | £ 975,000 | 0 | 0.00 KM |
| Steamer Steps | £ 0 | 0 | 0.00 KM |
| Bridge Road | £ 0 | 0 | 0.00 KM |
| Ragg Lane | £ 0 | 0 | 0.00 KM |
Nearby Listings
| Address | Price | Type | Score | Distance |
|---|---|---|---|---|
| Marine Parade, Budleigh Salterton, EX9 | £ 840,000 | BUY | 7 / 10 | 0.00 KM |
| Marine Parade, Budleigh Salterton, Devon | £ 1,375,000 | BUY | 7 / 10 | 0.02 KM |
| Coastguard Road, Budleigh Salterton, EX9 | £ 585,000 | BUY | 6 / 10 | 0.08 KM |
| 6 Coastguard Road, BUDLEIGH SALTERTON, EX9 | £ 475,000 | BUY | 7 / 10 | 0.09 KM |
| Devon, BUDLEIGH SALTERTON, EX9 | £ 1,750,000 | BUY | 8 / 10 | 0.10 KM |
Nearby Properties
| Address | Price | Distance |
|---|---|---|
| 14 Marine Parade | £ 1,550,000 | 0.01 KM |
| 6a Marine Parade | £ 712,500 | 0.01 KM |
| 3 Marine Parade | £ 660,000 | 0.01 KM |
| 8 Fore Street Hill | £ 805,000 | 0.18 KM |
| 7 South Parade | £ 150,000 | 0.19 KM |