Halls Farm Close, Knaphill, Woking, Surrey, GU21
By Seymours Estate Agents
£ 499,950
Reviews
3 out of 5 stars
Seymours Estate Agents says ..
This semi-detached home is tucked away in a quiet cul de sac, a short walk from Knaphill village and is offered to the market in immaculate condition having been beautifully maintained by the current owners. A welcoming entrance hall greets you into the home and provides useful storage space...
Property Oracle says ..
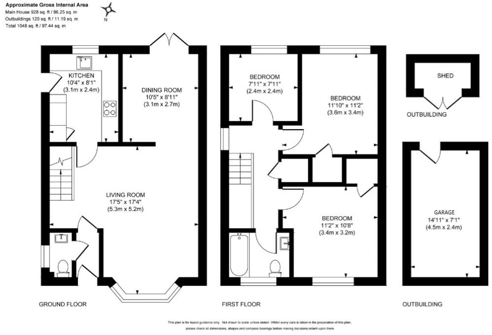
This property is a 3-bedroom semi-detached house located in Halls Farm Close, Knaphill, Woking, Surrey. The property benefits from a well-maintained garden, as shown in the provided images. The interior is presented in good condition and has been recently decorated in a modern style. The kitchen and bathroom appear to be in good order. The location is convenient, with nearby schools and transportation links. The asking price is slightly below the average price for the area, making it potentially good value for money, especially considering the property’s condition and garden.
Therefore, we give this property 7 / 10. *Disclaimer: This is our option and does constitute a recommendation or financial advice. Do your own research. *
- Price
- 8
- Condition
- 8
- Location
- 7
- Land
- 7
- Bedrooms
- 3
- Bathrooms
- 1
- Sqft (est)
- 1,048.84
The heatmap indicates the level of crime in the area. The color of the heatmap indicates the crime severity and recency.
Metrics Year-on-Year
- Average area value
- 586,400.00 £Increased by 18.76 %
- Est sale value
- 499,247.84 £Increased by 6.01 %
- Average area rental value
- 2,150.00 £/moIncreased by 9.47 %
- Est letting value
- 1,048.84 £/moUnchanged by 0.00 %
- Est rental Yield
- 4.40 %Decreased by 7.76 %
- Crime Rate
- 9.00 %Unchanged by 0.00 %
Agent Activity
Seymours Estate Agents marked this listing as sold.
Seymours Estate Agents created the listing.
Nearby Schools
| Name | Type | Ofsted | Distance |
|---|---|---|---|
| St John'S Primary School | Academy Sponsor Led | Requires improvement | 0.77 KM |
| St John'S Primary School And Sure Start Children'S Centre | Children's Centre | 0.77 KM | |
| St Hugh Of Lincoln Catholic Primary School | Academy Converter | Good | 1.00 KM |
| The Oaktree School | Academy Converter | 1.25 KM | |
| Knaphill School | Academy Converter | 1.26 KM |
Images
Nearby Streets
| Name | Average Price | Average Sqft | Distance |
|---|---|---|---|
| Beechwood Close | £ 0 | 0 | 0.00 KM |
| Rose Lodge | £ 0 | 0 | 0.00 KM |
| Elmgrove Close | £ 425,000 | 0 | 0.00 KM |
| Oakway | £ 475,000 | 0 | 0.00 KM |
| Barton Close | £ 0 | 0 | 0.00 KM |
Nearby Transport
| Name | NLC | TLC | Distance |
|---|---|---|---|
| Brookwood | 5687 | BKO | 3.18 KM |
| Worplesdon | 5686 | WPL | 4.77 KM |
| Woking | 5685 | WOK | 6.11 KM |
| Longcross | 5674 | LNG | 7.49 KM |
| Sunningdale | 5671 | SNG | 8.31 KM |
Nearby Listings
| Address | Price | Type | Score | Distance |
|---|---|---|---|---|
| Halls Farm Close, Knaphill, Woking, Surrey, GU21 | £ 499,950 | BUY | 7 / 10 | 0.00 KM |
| Knaphill, Woking | £ 450,000 | BUY | 7 / 10 | 0.01 KM |
| Woking, Surrey, GU21 | £ 400,000 | BUY | Unknown | 0.03 KM |
| Stanley Cottages, Anchor Hill, Knaphill, Woking, GU21 | £ 415,000 | BUY | 7 / 10 | 0.05 KM |
| St. Hildas Close, Knaphill, Woking, Surrey, GU21 | £ 465,000 | BUY | 6 / 10 | 0.06 KM |
Nearby Properties
| Address | Price | Distance |
|---|---|---|
| 12 Halls Farm Close | £ 310,000 | 0.00 KM |
| 5 Halls Farm Close | £ 445,000 | 0.00 KM |
| 1 Halls Farm Close | £ 380,000 | 0.00 KM |
| 2 Halls Farm Close | £ 390,000 | 0.00 KM |
| 12 St Hildas Close | £ 242,200 | 0.05 KM |