St. Helier Grove, Baildon, Shipley, West Yorkshire, BD17
By Dacre Son & Hartley
£ 595,000
Reviews
3 out of 5 stars
Dacre Son & Hartley says ..
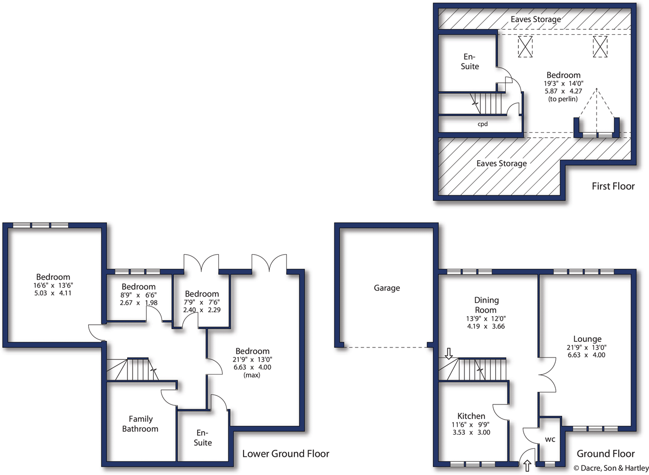
A substantial five bedroom detached family residence situated at the foot of this highly desirable cul-de-sac in Baildon where it enjoys far reaching valley views at the rear. With accommodation planned over three floors and featuring five bedrooms, house bathroom plus two en suites, living room ...
Property Oracle says ..
This five-bedroom, three-bathroom property in St. Helier Grove, Baildon, is presented in excellent condition. The modern interior features a stylish, contemporary design with high-quality finishes throughout. The open-plan living spaces are bright and airy, and the kitchen is well-equipped. The property benefits from a desirable location in Baildon, close to a highly-rated primary school and Baildon train station, offering convenient access to local amenities and transport links. The garden is a pleasant addition, although it appears relatively modest in size. The asking price reflects the property’s premium location and high-quality finish, although a more in-depth comparison with similar properties in the area would provide a more precise assessment of its value. Overall, this property presents a strong offering for families seeking a modern, well-maintained home in a desirable location.
Therefore, we give this property 7 / 10. *Disclaimer: This is our option and does constitute a recommendation or financial advice. Do your own research. *
- Price
- 7
- Condition
- 9
- Location
- 8
- Land
- 4
- Bedrooms
- 5
- Bathrooms
- 3
- Sqft (est)
- 1,753.12
The heatmap indicates the level of crime in the area. The color of the heatmap indicates the crime severity and recency.
Metrics Year-on-Year
- Average area value
- 388,918.00 £Increased by 10.36 %
- Est sale value
- 611,838.88 £Increased by 36.86 %
- Average area rental value
- 809.00 £/moDecreased by 20.92 %
- Est letting value
- 0.00 £/mo
- Est rental Yield
- 2.50 %Decreased by 28.16 %
- Crime Rate
- 1.00 %Unchanged by 0.00 %
Agent Activity
Dacre Son & Hartley created the listing.
Nearby Schools
| Name | Type | Ofsted | Distance |
|---|---|---|---|
| Baildon Cofe Primary School | Voluntary Aided School | Outstanding | 0.53 KM |
| Hoyle Court Primary School | Community School | Good | 0.73 KM |
| St Anthony'S Catholic Primary School, A Voluntary Academy | Academy Converter | 1.98 KM | |
| Christ Church Church Of England Academy | Academy Sponsor Led | Good | 2.14 KM |
| Baildon Children'S Centre | Children's Centre Linked Site | 2.21 KM |
Images
Nearby Streets
| Name | Average Price | Average Sqft | Distance |
|---|---|---|---|
| (Old) Holden Lane | £ 249,950 | 0 | 0.00 KM |
| Heygate Close | £ 0 | 0 | 0.00 KM |
| St James Court | £ 0 | 0 | 0.00 KM |
| St. John's Court | £ 0 | 0 | 0.00 KM |
| Laburnum Drive | £ 0 | 0 | 0.00 KM |
Nearby Transport
| Name | NLC | TLC | Distance |
|---|---|---|---|
| Baildon | 8552 | BLD | 0.46 KM |
| Shipley (Yorks) | 8347 | SHY | 2.89 KM |
| Frizinghall | 8556 | FZH | 3.88 KM |
| Saltaire | 8561 | SAE | 4.07 KM |
| Menston | 8574 | MNN | 4.97 KM |
Nearby Listings
| Address | Price | Type | Score | Distance |
|---|---|---|---|---|
| St. Helier Grove, Baildon, Shipley, West Yorkshire, BD17 | £ 595,000 | BUY | 7 / 10 | 0.00 KM |
| St. Helier Grove, Baildon, West Yorkshire, BD17 | £ 450,000 | BUY | Unknown | 0.06 KM |
| Fairfield Court, Baildon, Shipley, West Yorkshire, BD17 | £ 439,950 | BUY | 6 / 10 | 0.12 KM |
| Nidderdale Walk, Baildon, Shipley | £ 475,000 | BUY | 8 / 10 | 0.17 KM |
| Kirkfields, Baildon, West Yorkshire, BD17 | £ 315,000 | BUY | Unknown | 0.20 KM |
Nearby Properties
| Address | Price | Distance |
|---|---|---|
| Bracken Edge | £ 492,500 | 0.06 KM |
| 4 Wharfedale Gardens | £ 321,000 | 0.09 KM |
| 2 Wharfedale Gardens | £ 295,000 | 0.09 KM |
| 10 St Helier Grove | £ 432,500 | 0.10 KM |
| 12 St Helier Grove | £ 295,000 | 0.10 KM |