Fletcher & Company says ..
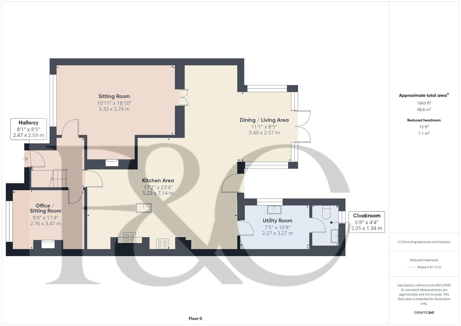
Nestled in the sought-after village of Repton, this charming semi-detached house, built in 1923, offers a delightful blend of period character and modern living. Spanning an impressive 1,652 square feet, the property has been thoughtfully extended to create a fabulous living space that seamlessly...
Property Oracle says ..
Therefore, we give this property 7 / 10. *Disclaimer: This is our option and does constitute a recommendation or financial advice. Do your own research. *
- Price
- 7
- Condition
- 8
- Location
- 8
- Land
- 7
- Bedrooms
- 4
- Bathrooms
- 2
- Sqft (est)
- 982.75
The heatmap indicates the level of crime in the area. The color of the heatmap indicates the crime severity and recency.
Metrics Year-on-Year
- Average area value
- 405,727.00 £Decreased by 7.36 %
- Est sale value
- 364,600.25 £Decreased by 4.13 %
- Average area rental value
- 1,483.00 £/moIncreased by 13.64 %
- Est letting value
- 982.75 £/moUnchanged by 0.00 %
- Est rental Yield
- 4.39 %Increased by 22.63 %
- Crime Rate
- 19.00 %Unchanged by 0.00 %
from 437,949.00 £
from 380,324.25 £
from 1,305.00 £/mo
from 982.75 £/mo
from 3.58 %
from 19.00 %
Agent Activity
Fletcher & Company created the listing.
Nearby Schools
| Name | Type | Ofsted | Distance |
|---|---|---|---|
| St Wystan'S School | Other Independent School | 0.48 KM | |
| Repton Primary School | Community School | Good | 0.64 KM |
| Repton School | Other Independent School | 0.77 KM | |
| Willington Primary School | Community School | Outstanding | 2.19 KM |
| Findern Primary School | Community School | Good | 3.09 KM |
Images
Nearby Streets
| Name | Average Price | Average Sqft | Distance |
|---|---|---|---|
| Stratford Close | £ 0 | 0 | 0.00 KM |
| Shakespeare Meadow | £ 0 | 0 | 0.00 KM |
| Maple Court | £ 0 | 0 | 0.00 KM |
| Hill View | £ 0 | 0 | 0.00 KM |
| Coppice Rise | £ 0 | 0 | 0.00 KM |
Nearby Transport
| Name | NLC | TLC | Distance |
|---|---|---|---|
| Willington | 1905 | WIL | 2.72 KM |
Nearby Listings
| Address | Price | Type | Score | Distance |
|---|---|---|---|---|
| High Street, Repton | £ 595,000 | BUY | 7 / 10 | 0.00 KM |
| High Street, Repton | £ 685,000 | BUY | 8 / 10 | 0.04 KM |
| High Street, Repton | £ 140,000 | BUY | 4 / 10 | 0.06 KM |
| High Street, Repton, DE65 | £ 485,000 | BUY | 6 / 10 | 0.07 KM |
| High Street, Repton, DE65 | £ 450,000 | BUY | 6 / 10 | 0.07 KM |
Nearby Properties
| Address | Price | Distance |
|---|---|---|
| 1 Richmond Court | £ 295,000 | 0.04 KM |
| 2 Richmond Court | £ 420,000 | 0.04 KM |
| 3 Richmond Court | £ 330,000 | 0.04 KM |
| 87 High Street | £ 360,000 | 0.06 KM |
| 102 High Street | £ 95,750 | 0.06 KM |