Gondar Gardens, West Hampstead, NW6
By Abacus Estates
£ 1,250,000
Reviews
3 out of 5 stars
Abacus Estates says ..
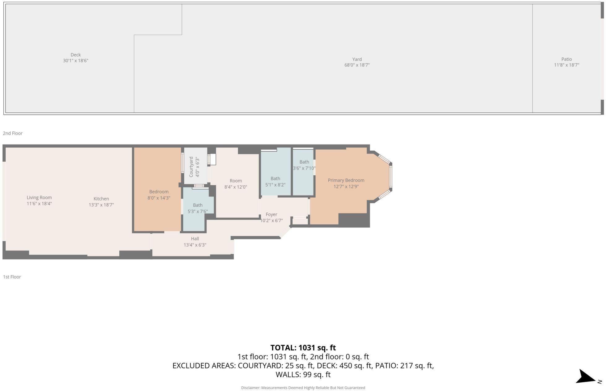
Welcome to this beautifully refurbished and fully extended three-bedroom, three-bathroom garden apartment, offering an exceptional blend of contemporary design, generous living space and an outstanding 100ft south-facing private garden. Set within a desirable residential location close to excelle...
Property Oracle says ..
This is a modern flat in West Hampstead that benefits from a garden. The interior has been recently renovated and is in excellent condition. While the location is good, the price seems high compared to similar properties in the area.
Therefore, we give this property 7 / 10. *Disclaimer: This is our option and does constitute a recommendation or financial advice. Do your own research. *
- Price
- 5
- Condition
- 9
- Location
- 7
- Land
- 7
- Bedrooms
- 3
- Bathrooms
- 3
The heatmap indicates the level of crime in the area. The color of the heatmap indicates the crime severity and recency.
Metrics Year-on-Year
- Average area value
- 844,000.00 £Decreased by 1.48 %
- Average area rental value
- 2,065.00 £/moDecreased by 5.54 %
- Est rental Yield
- 2.94 %Decreased by 3.92 %
- Crime Rate
- 2.00 %Unchanged by 0.00 %
Agent Activity
Abacus Estates created the listing.
Nearby Schools
| Name | Type | Ofsted | Distance |
|---|---|---|---|
| West Hampstead Primary School | Community School | Good | 0.34 KM |
| Hampstead School | Community School | Good | 0.71 KM |
| The Mulberry House School | Other Independent School | 0.74 KM | |
| Emmanuel Church Of England Primary School | Voluntary Aided School | Good | 0.83 KM |
| St Luke'S Church Of England School | Free Schools | Good | 0.90 KM |
Images
Nearby Streets
| Name | Average Price | Average Sqft | Distance |
|---|---|---|---|
| Mapesbury Road | £ 0 | 0 | 0.00 KM |
| Kilburn High Road | £ 0 | 0 | 0.00 KM |
| Gladstone Mews | £ 0 | 0 | 0.00 KM |
| Black Path | £ 818,750 | 0 | 0.00 KM |
| Croft Way | £ 1,245,000 | 0 | 0.00 KM |
Nearby Transport
| Name | NLC | TLC | Distance |
|---|---|---|---|
| Brondesbury | 1437 | BSY | 0.95 KM |
| West Hampstead Thameslink | 1525 | WHP | 1.16 KM |
| West Hampstead | 1421 | WHD | 1.28 KM |
| Cricklewood | 1519 | CRI | 1.40 KM |
| Brondesbury Park | 1438 | BSP | 1.75 KM |
Nearby Listings
| Address | Price | Type | Score | Distance |
|---|---|---|---|---|
| Gondar Gardens, West Hampstead, NW6 | £ 1,250,000 | BUY | 7 / 10 | 0.00 KM |
| Gondar Gardens, West Hampstead, London, NW6 | £ 1,250,000 | BUY | 7 / 10 | 0.01 KM |
| Gondar Gardens, West Hampstead | £ 1,100,000 | BUY | Unknown | 0.01 KM |
| Gondar Gardens, West Hampstead NW6 | £ 1,250,000 | BUY | 7 / 10 | 0.11 KM |
| Clyda Mansions, NW6 | £ 950,000 | BUY | 6 / 10 | 0.14 KM |
Nearby Properties
| Address | Price | Distance |
|---|---|---|
| 18 Gondar Gardens | £ 485,000 | 0.02 KM |
| 58a Gondar Gardens | £ 585,000 | 0.02 KM |
| 58b Gondar Gardens | £ 680,000 | 0.02 KM |
| 28 Gondar Gardens | £ 875,000 | 0.02 KM |
| 58c Gondar Gardens | £ 623,000 | 0.02 KM |