Wye Valley View, Lydbrook
By Steve Gooch Estate Agents
£ 700,000
Reviews
3 out of 5 stars
Steve Gooch Estate Agents says ..
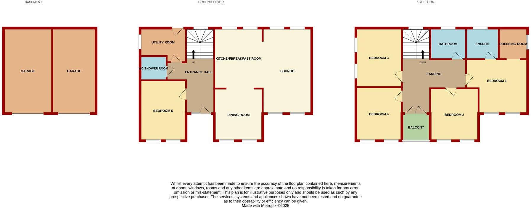
Steve Gooch Estate Agents are delighted to present this EXCEPTIONAL, RECENTLY BUILT FIVE-BEDROOM ENERGY-EFFICIENT DETACHED HOME, thoughtfully positioned on a hillside to take full advantage of the BREATHTAKING VIEWS OVER THE WYE VALLEY BEYOND. This individually designed property has been construc...
Property Oracle says ..
This recently constructed five-bedroom detached house in Lydbrook, Forest of Dean, presents a compelling proposition for buyers seeking a modern, energy-efficient home in a semi-rural setting. The property boasts a high-quality finish and contemporary design throughout, evident from the provided images. The open-plan living area, modern kitchen, and stylish bathrooms showcase a commitment to high-end aesthetics. The inclusion of a double garage further enhances its practicality. The location in Lydbrook offers a balance between tranquility and accessibility, with nearby primary schools and proximity to the beautiful Forest of Dean. While transportation links may be less developed than in larger urban areas, the scenic surroundings offset this. The size of the plot, though not explicitly stated, seems relatively modest based on images. The list price sits at £700,000; the reasonableness of which is dependent on the actual plot size and thorough comparison with nearby, similar properties for which detailed sqft data is lacking. While not drastically underpriced, given the property’s attributes, the price appears generally justifiable for the market in this area.
Therefore, we give this property 6 / 10. *Disclaimer: This is our option and does constitute a recommendation or financial advice. Do your own research. *
- Price
- 7
- Condition
- 9
- Location
- 7
- Land
- 4
- Bedrooms
- 5
- Bathrooms
- 3
- Sqft (est)
- 1,500.00
The heatmap indicates the level of crime in the area. The color of the heatmap indicates the crime severity and recency.
Metrics Year-on-Year
- Average area value
- 268,125.00 £Increased by 15.58 %
- Est sale value
- 409,500.00 £Increased by 19.21 %
- Average area rental value
- 1,044.00 £/moIncreased by 5.56 %
- Est letting value
- 1,500.00 £/mo
- Est rental Yield
- 4.67 %Decreased by 8.79 %
- Crime Rate
- 0.00 %
Agent Activity
Steve Gooch Estate Agents created the listing.
Nearby Schools
| Name | Type | Ofsted | Distance |
|---|---|---|---|
| Lydbrook Primary School | Community School | Good | 1.03 KM |
| Ruardean Church Of England Primary School | Voluntary Controlled School | Requires improvement | 2.56 KM |
| Woodside Primary School | Community School | Good | 3.42 KM |
| Heart Of The Forest Community Special School | Community Special School | Good | 4.98 KM |
| Walford Nursery & Primary School | Community School | Good | 5.00 KM |
Images
Nearby Streets
| Name | Average Price | Average Sqft | Distance |
|---|---|---|---|
| Townsend | £ 591,333 | 0 | 0.00 KM |
| Orchard Road | £ 320,000 | 0 | 0.00 KM |
| Hillside Terrace | £ 185,000 | 0 | 0.00 KM |
| Viaduct Villas | £ 0 | 0 | 0.00 KM |
| Highbeech Road | £ 650,000 | 0 | 0.00 KM |
Nearby Listings
| Address | Price | Type | Score | Distance |
|---|---|---|---|---|
| Wye Valley View, Lydbrook | £ 700,000 | BUY | 6 / 10 | 0.00 KM |
| Joys Green Road, Lydbrook | £ 375,000 | BUY | Unknown | 0.18 KM |
| Hawsley, Lydbrook | £ 475,000 | BUY | 7 / 10 | 0.29 KM |
| Bungalow and Derelict Cottage, Joys Green Road, Lydbrook | £ 375,000 | BUY | 6 / 10 | 0.30 KM |
| Woodland View, Joys Green, Lydbrook | £ 440,000 | BUY | 7 / 10 | 0.35 KM |
Nearby Properties
| Address | Price | Distance |
|---|---|---|
| Glynderwent | £ 154,500 | 0.06 KM |
| Cherry Tree Cottage | £ 124,999 | 0.06 KM |
| Dudley | £ 115,000 | 0.06 KM |
| The Salt Box | £ 220,000 | 0.06 KM |
| Walkers Cottage | £ 367,500 | 0.07 KM |