WI
Colinette Road, London, SW15
By Winkworth
£ 800,000
Winkworth says ..
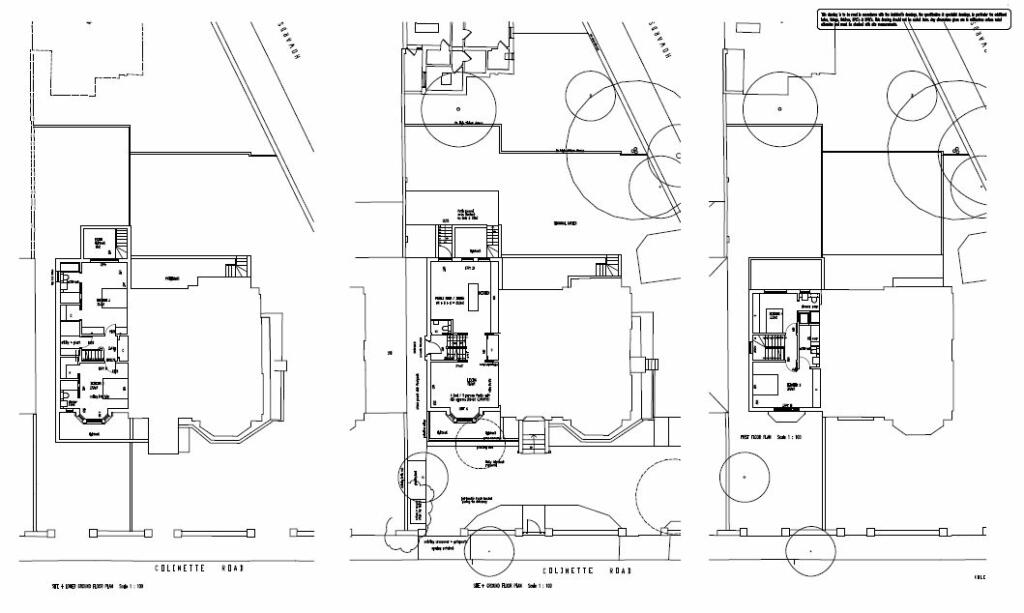
A West Putney development SITE, with approved planning to build your own home. C.G.I. Image A rare opportunity to acquire a development site, with planning permission granted for a new build semi-detached house. The house will comprise of nearly 2000sq.ft. with off street parking and a...
- Bedrooms
- 4
- Bathrooms
- 5
The heatmap indicates the level of crime in the area. The color of the heatmap indicates the crime severity and recency.
Metrics Year-on-Year
- Average area value
- 721,658.00 £Decreased by 13.09 %
- Average area rental value
- 2,654.00 £/moDecreased by 13.47 %
- Est rental Yield
- 4.41 %Decreased by 0.45 %
- Crime Rate
- 1.00 %Unchanged by 0.00 %
from 830,385.00 £
from 3,067.00 £/mo
from 4.43 %
from 1.00 %
Agent Activity
Winkworth created the listing.
Nearby Schools
| Name | Type | Ofsted | Distance |
|---|---|---|---|
| Falcons School For Girls | Other Independent School | 0.49 KM | |
| Granard Primary School And Children'S Centre | Children's Centre | 0.65 KM | |
| Granard Primary School | Community School | Good | 0.65 KM |
| All Saints' Cofe Primary School, Putney | Voluntary Aided School | Outstanding | 0.73 KM |
| Ark Putney Academy | Academy Converter | Good | 0.84 KM |
Images
Nearby Streets
| Name | Average Price | Average Sqft | Distance |
|---|---|---|---|
| Whitnell Road | £ 0 | 0 | 0.00 KM |
| Jordan Court | £ 0 | 0 | 0.00 KM |
| Ravenna Road | £ 0 | 0 | 0.00 KM |
| Floss Street | £ 0 | 0 | 0.00 KM |
| North Lodge Close | £ 550,000 | 0 | 0.00 KM |
Nearby Transport
| Name | NLC | TLC | Distance |
|---|---|---|---|
| Putney | 5603 | PUT | 1.44 KM |
| Barnes | 5551 | BNS | 1.54 KM |
| Barnes Bridge | 5580 | BNI | 2.82 KM |
| Mortlake | 5600 | MTL | 4.23 KM |
| Wandsworth Town | 5576 | WNT | 4.58 KM |
Nearby Listings
| Address | Price | Type | Score | Distance |
|---|---|---|---|---|
| Colinette Road, London, SW15 | £ 800,000 | BUY | Unknown | 0.00 KM |
| Colinette Road, Putney | £ 365,000 | BUY | Unknown | 0.02 KM |
| Howards Lane, Putney, SW15 | £ 1,900,000 | BUY | 8 / 10 | 0.05 KM |
| Colinette Road, Putney, London, SW15 | £ 1,000,000 | BUY | 8 / 10 | 0.08 KM |
| Howards Lane, London, SW15 | £ 300,000 | BUY | 5 / 10 | 0.08 KM |
Nearby Properties
| Address | Price | Distance |
|---|---|---|
| 15b Colinette Road | £ 900,000 | 0.07 KM |
| 7a Colinette Road | £ 3,000,000 | 0.07 KM |
| 2a Colinette Road | £ 700,000 | 0.08 KM |
| 24 Colinette Road | £ 890,000 | 0.08 KM |
| 10 Colinette Road | £ 3,200,000 | 0.08 KM |