Chancellors says ..
Located in North Abingdon, this spacious detached family home is coming to the market with no onward chain and benefits from both off-street parking and a garage.
Property Oracle says ..
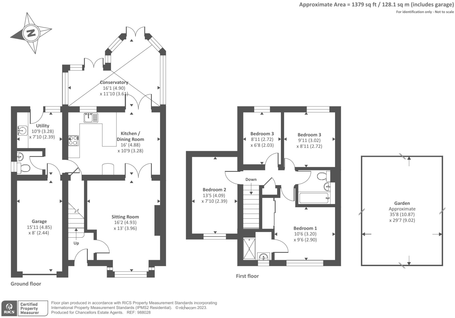
This is a detached property located on Foster Road in Abingdon, Oxfordshire. It features four bedrooms and two bathrooms, with a total square footage of 1,379. The property includes a garden, a conservatory, and a garage. While the property is in reasonable condition, some areas could benefit from modernization. The location is convenient, with nearby schools and transportation options. The asking price of £525,000 appears competitive given the property’s features and location.
Therefore, we give this property 6 / 10. *Disclaimer: This is our option and does constitute a recommendation or financial advice. Do your own research. *
- Price
- 7
- Condition
- 6
- Location
- 7
- Land
- 7
- Bedrooms
- 4
- Bathrooms
- 2
- Sqft (est)
- 1,379.00
The heatmap indicates the level of crime in the area. The color of the heatmap indicates the crime severity and recency.
Metrics Year-on-Year
- Average area value
- 260,500.00 £Increased by 6.21 %
- Est sale value
- 353,024.00 £Increased by 6.22 %
- Average area rental value
- 1,100.00 £/moIncreased by 0.92 %
- Est letting value
- 1,379.00 £/moUnchanged by 0.00 %
- Est rental Yield
- 5.07 %Decreased by 4.88 %
- Crime Rate
- 11.00 %Unchanged by 0.00 %
Agent Activity
Chancellors created the listing.
Nearby Schools
| Name | Type | Ofsted | Distance |
|---|---|---|---|
| Long Furlong Primary School | Community School | Good | 0.60 KM |
| Fitzharrys School | Academy Converter | 0.72 KM | |
| Dunmore Primary School | Community School | Good | 0.79 KM |
| Abingdon And Witney College | Further Education | Good | 0.94 KM |
| St Nicolas Church Of England Primary School, Abingdon | Voluntary Controlled School | Good | 1.23 KM |
Images
Nearby Streets
| Name | Average Price | Average Sqft | Distance |
|---|---|---|---|
| Pen Lane | £ 0 | 0 | 0.00 KM |
| Crane Avenue | £ 0 | 0 | 0.00 KM |
| Prosser Way | £ 0 | 0 | 0.00 KM |
| St Mary's Green | £ 250,000 | 0 | 0.00 KM |
| Braggs Lane | £ 0 | 0 | 0.00 KM |
Nearby Transport
| Name | NLC | TLC | Distance |
|---|---|---|---|
| Radley | 3118 | RAD | 4.70 KM |
| Culham | 3107 | CUM | 6.39 KM |
| Appleford | 3109 | APF | 7.02 KM |
| Oxford | 3115 | OXF | 7.42 KM |
| Didcot Parkway | 3030 | DID | 9.65 KM |
Nearby Listings
| Address | Price | Type | Score | Distance |
|---|---|---|---|---|
| Abingdon, Oxfordshire, OX14 | £ 525,000 | BUY | 6 / 10 | 0.00 KM |
| Foster Road, Abingdon, OX14 | £ 580,000 | BUY | Unknown | 0.02 KM |
| Abingdon, Oxfordshire, OX14 | £ 600,000 | BUY | 7 / 10 | 0.02 KM |
| Foster Road, Abingdon, OX14 | £ 535,000 | BUY | Unknown | 0.03 KM |
| Foster Road, Abingdon, OX14 | £ 575,000 | BUY | 7 / 10 | 0.08 KM |
Nearby Properties
| Address | Price | Distance |
|---|---|---|
| 39 Foster Road | £ 268,000 | 0.04 KM |
| 41 Foster Road | £ 322,500 | 0.04 KM |
| 42 Foster Road | £ 278,500 | 0.04 KM |
| 69 Foster Road | £ 358,000 | 0.04 KM |
| 60 Foster Road | £ 295,000 | 0.04 KM |