Simpsons says ..
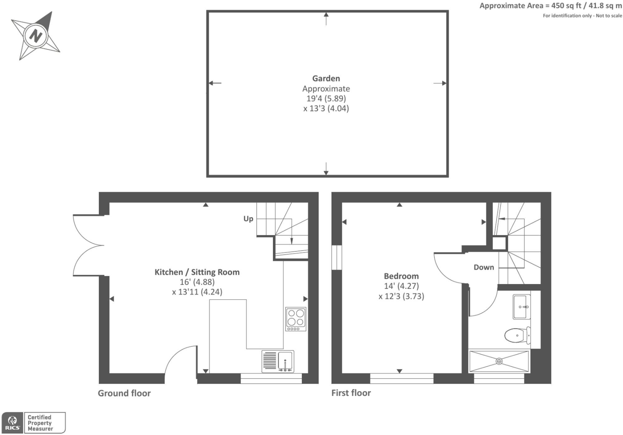
An open plan, one bedroom, two storey house with a South West facing garden and parking space for two cars.
Property Oracle says ..
This property is a one bedroom terraced house located in Abingdon, Oxfordshire. It benefits from a modern interior and a well-maintained rear garden. The location is convenient, with nearby schools and transportation links. However, the property is smaller than the average for the area and the price per square foot is higher than average. This may make it less attractive to buyers looking for more space or better value for money.
Therefore, we give this property 7 / 10. *Disclaimer: This is our option and does constitute a recommendation or financial advice. Do your own research. *
- Price
- 6
- Condition
- 9
- Location
- 8
- Land
- 6
- Bedrooms
- 1
- Bathrooms
- 1
- Sqft (est)
- 639.96
- Lot (est)
- 450.00
The heatmap indicates the level of crime in the area. The color of the heatmap indicates the crime severity and recency.
Metrics Year-on-Year
- Average area value
- 462,500.00 £Increased by 12.12 %
- Est sale value
- 415,334.04 £Increased by 67.27 %
- Average area rental value
- 1,906.00 £/moIncreased by 49.61 %
- Est letting value
- 1,279.92 £/moIncreased by 100.00 %
- Est rental Yield
- 4.95 %Increased by 33.42 %
- Crime Rate
- 4.00 %Unchanged by 0.00 %
Agent Activity
Simpsons created the listing.
Nearby Schools
| Name | Type | Ofsted | Distance |
|---|---|---|---|
| Abingdon And Witney College | Further Education | Good | 0.62 KM |
| John Mason School | Academy Converter | Good | 0.66 KM |
| St Helen And St Katharine | Other Independent School | 0.67 KM | |
| The Manor Preparatory School | Other Independent School | 0.94 KM | |
| Fitzharrys School | Academy Converter | 0.95 KM |
Images
Nearby Streets
| Name | Average Price | Average Sqft | Distance |
|---|---|---|---|
| The Spinney | £ 0 | 0 | 0.00 KM |
| Robin Close | £ 0 | 0 | 0.00 KM |
| Brampton Close | £ 385,000 | 0 | 0.00 KM |
| Prosser Way | £ 0 | 0 | 0.00 KM |
| Fitzharris Trading Estate | £ 0 | 0 | 0.00 KM |
Nearby Transport
| Name | NLC | TLC | Distance |
|---|---|---|---|
| Radley | 3118 | RAD | 5.79 KM |
| Culham | 3107 | CUM | 6.89 KM |
| Appleford | 3109 | APF | 7.22 KM |
| Oxford | 3115 | OXF | 8.46 KM |
| Didcot Parkway | 3030 | DID | 9.52 KM |
Nearby Listings
| Address | Price | Type | Score | Distance |
|---|---|---|---|---|
| The Court, Abingdon, OX14 | £ 250,000 | BUY | 7 / 10 | 0.00 KM |
| Evelin Road, Abingdon, OX14 | £ 390,000 | BUY | 7 / 10 | 0.05 KM |
| Crosslands Drive, Abingdon, OX14 | £ 375,000 | BUY | Unknown | 0.10 KM |
| Crosslands Drive, Abingdon, OX14 | £ 300,000 | BUY | Unknown | 0.10 KM |
| Ypres Way, Abingdon, OX14 | £ 395,000 | BUY | 6 / 10 | 0.13 KM |
Nearby Properties
| Address | Price | Distance |
|---|---|---|
| 9 The Court | £ 245,000 | 0.04 KM |
| 11 The Court | £ 242,500 | 0.04 KM |
| 5 The Court | £ 200,000 | 0.04 KM |
| 6 The Court | £ 95,000 | 0.04 KM |
| 7 The Court | £ 285,000 | 0.05 KM |