Oakwood Crescent, Greenford
DA

Oakwood Crescent, Greenford

By Daniels

£ 600,000

Reviews

3 out of 5 stars

Daniels says ..

No summary available.

Property Oracle says ..

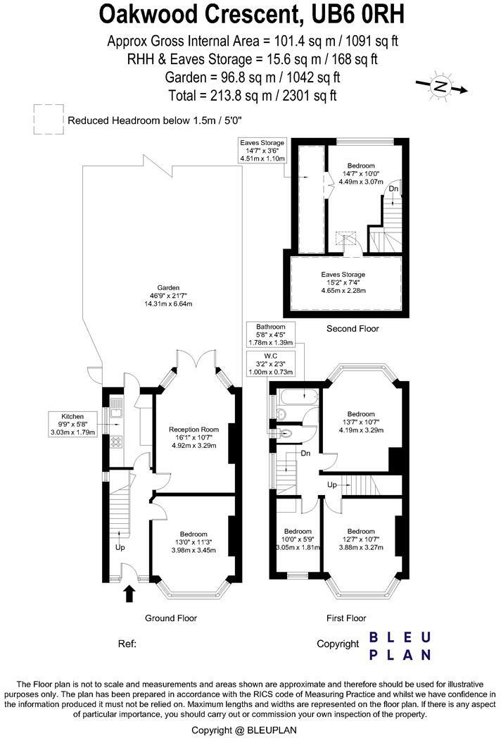
The property is located on Oakwood Crescent, Greenford, in the UB6 0RF postcode. Based on the provided information and images, the property appears to be a four-bedroom house with one bathroom. It has a sizeable plot of 2,301.32 sqft and a total area of 2,132.22 sqft. The property benefits from a garden.

The property’s condition appears to be fair. Whilst it is habitable, the interior decor is dated and would likely benefit from modernisation. The kitchen and bathrooms appear to be functional but could also benefit from updating.

The location is in North Greenford, which is reasonably close to Sudbury Town station, providing access to the Piccadilly Line. There are also several schools within a reasonable distance, although the quality of these schools would need further investigation.

Considering the average price per sqft in the area is £539, and the property’s size is 2,132.22 sqft, a rough estimate of the property value would be around £1,147,000. However, the list price is £600,000. Given the property’s condition, the need for modernisation, and the location, the list price seems potentially reasonable, although further comparative market analysis would be needed to confirm this. The average price for properties in the area is significantly lower at £457,633, however, this average may not fully reflect the value of a four-bedroom property in the area.

Therefore, we give this property 6 / 10. *Disclaimer: This is our option and does constitute a recommendation or financial advice. Do your own research. *

Price
7
Condition
6
Location
7
Land
7
Bedrooms
4
Bathrooms
1
Sqft (est)
2,132.22
Lot (est)
2,301.32

The heatmap indicates the level of crime in the area. The color of the heatmap indicates the crime severity and recency.

Metrics Year-on-Year

Average area value
558,995.00 £
Increased by 9.55 %
from 510,274.00 £
Est sale value
959,499.00 £
Decreased by 20.21 %
from 1,202,572.08 £
Average area rental value
2,033.00 £/mo
Decreased by 11.65 %
from 2,301.00 £/mo
Est letting value
2,132.22 £/mo
Decreased by 50.00 %
from 4,264.44 £/mo
Est rental Yield
4.36 %
Decreased by 19.41 %
from 5.41 %
Crime Rate
2.00 %
Unchanged by 0.00 %
from 2.00 %

Agent Activity

  • Daniels created the listing.

Nearby Schools

NameTypeOfstedDistance
Sudbury Primary SchoolAcademy ConverterGood1.17 KM
Barham Primary SchoolCommunity SchoolGood1.60 KM
Horsenden Children'S CentreChildren's Centre Linked Site1.61 KM
Perivale Children'S CentreChildren's Centre1.64 KM
St John Fisher Catholic Primary SchoolVoluntary Aided SchoolGood1.64 KM

Images

52 Oakwood Crescent - U7HJT6J33DetYzFE2GRd.jpg 52 Oakwood Crescent - cMnd3rivrYwZJggrQcEP.jpg 52 Oakwood Crescent - 2eVhlE1iXu3CGU86DCtn.jpg 52 Oakwood Crescent - FCKD8MHtHkS9JdYd6yUj.jpg 52 Oakwood Crescent - 3NfMXiFIIj3HKjjHS3oL.jpg 52 Oakwood Crescent - fhxoSnfioACnzAvywMlO.jpg 52 Oakwood Crescent - 9vUzs2wepklBQOmRWM7J.jpg 52 Oakwood Crescent - hJcAT1ogpdTMdPYuPTga.jpg 52 Oakwood Crescent - V3G9bulVFfsZEEFTSnYN.jpg 52 Oakwood Crescent - 6jFZv7lTei5eXG0JNFDS.jpg

Nearby Streets

NameAverage PriceAverage SqftDistance
Whitton Close £ 000.00 KM
Chestnut Grove £ 528,33300.00 KM
Allendale Road £ 367,50000.00 KM
Windmore Close £ 000.00 KM
Chestnut Avenue £ 621,66700.00 KM

Nearby Transport

NameNLCTLCDistance
Sudbury And Harrow Road1483SUD0.84 KM
Sudbury Hill Harrow1484SDH1.91 KM
North Wembley1422NWB2.40 KM
South Greenford3138SGN2.44 KM
South Kenton1453SOK2.71 KM

Nearby Listings

AddressPriceTypeScoreDistance
Oakwood Crescent, Greenford £ 600,000BUY6 / 100.00 KM
Oakwood Crescent, Greenford, UB6 £ 700,000BUY6 / 100.01 KM
Oakwood Crescent, Greenford, Middlesex, UB6 £ 735,000BUY6 / 100.07 KM
Oakwood Crescent, Greenford, UB6 £ 580,000BUY6 / 100.10 KM
Ashness Gardens, Greenford, Middlesex UB6 £ 710,000BUY6 / 100.12 KM

Nearby Properties

AddressPriceDistance
58 Oakwood Crescent £ 540,0000.07 KM
54 Oakwood Crescent £ 382,4500.07 KM
66 Oakwood Crescent £ 590,0000.07 KM
48 Oakwood Crescent £ 310,0000.07 KM
80 Oakwood Crescent £ 365,0000.07 KM