RE
Holden Mill, Blackburn Road, Bolton
By Redpath Leach Estate Agents
£ 160,000
Reviews
3 out of 5 stars
Redpath Leach Estate Agents says ..
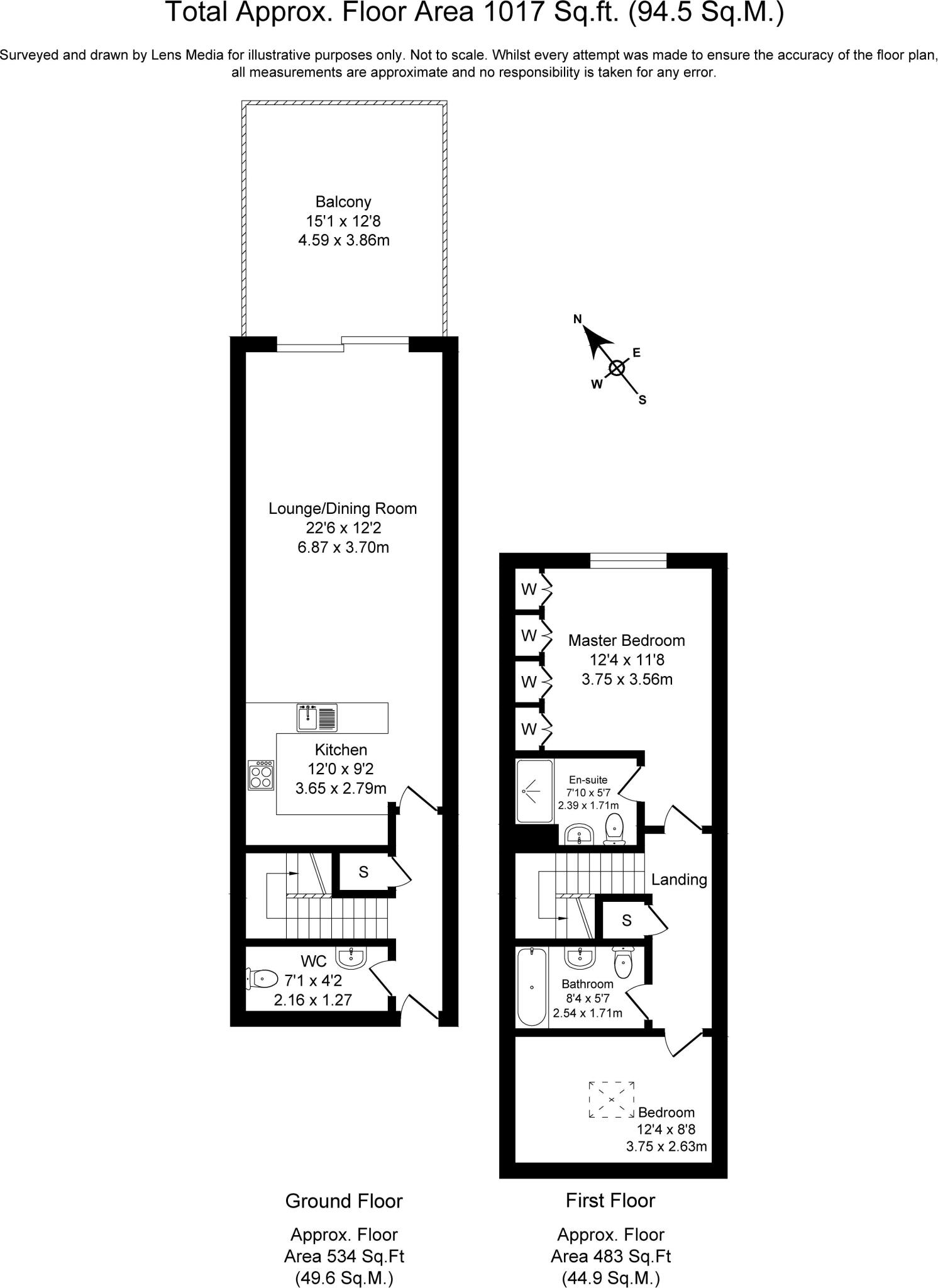
Exuding character and style in equal measure, this superb duplex penthouse apartment simply must be viewed to appreciate not only the generous levels of space, but also the thoughtful design, both of the property, but more generally, the development itself, affording a real lifestyle opportunity ...
Property Oracle says ..
Therefore, we give this property 7 / 10. *Disclaimer: This is our option and does constitute a recommendation or financial advice. Do your own research. *
- Price
- 8
- Condition
- 8
- Location
- 7
- Land
- 6
- Bedrooms
- 2
- Bathrooms
- 2
- Sqft (est)
- 951.63
The heatmap indicates the level of crime in the area. The color of the heatmap indicates the crime severity and recency.
Metrics Year-on-Year
- Average area value
- 210,714.00 £Decreased by 13.37 %
- Est sale value
- 188,422.74 £Increased by 8.20 %
- Average area rental value
- 907.00 £/moDecreased by 9.21 %
- Est letting value
- 0.00 £/mo
- Est rental Yield
- 5.17 %Increased by 4.87 %
- Crime Rate
- 0.00 %
from 243,245.00 £
from 174,148.29 £
from 999.00 £/mo
from 0.00 £/mo
from 4.93 %
from 0.00 %
Agent Activity
Redpath Leach Estate Agents created the listing.
Nearby Schools
| Name | Type | Ofsted | Distance |
|---|---|---|---|
| High Lawn Primary School | Community School | Good | 0.45 KM |
| Holy Infant And St Anthony Rc Primary School | Voluntary Aided School | Good | 0.67 KM |
| St Paul'S Cofe Primary School, Astley Bridge | Academy Converter | Outstanding | 0.73 KM |
| The Oaks Primary School | Community School | Outstanding | 0.74 KM |
| Oldhams Start Well Link Site | Children's Centre Linked Site | 0.74 KM |
Images
Nearby Streets
| Name | Average Price | Average Sqft | Distance |
|---|---|---|---|
| Back Howarden Street | £ 160,167 | 0 | 0.00 KM |
| Durban Road | £ 0 | 0 | 0.00 KM |
| Back Rainshaw Street | £ 160,000 | 0 | 0.00 KM |
| Back Primrose Street | £ 0 | 0 | 0.00 KM |
| Back Ivy Bank Road | £ 0 | 0 | 0.00 KM |
Nearby Transport
| Name | NLC | TLC | Distance |
|---|---|---|---|
| Hall-I'-Th'-Wood | 2572 | HID | 2.22 KM |
| Bromley Cross (Lancs) | 2697 | BMC | 2.46 KM |
| Bolton | 2599 | BON | 3.55 KM |
| Entwistle | 2747 | ENT | 5.91 KM |
| Moses Gate | 2606 | MSS | 6.45 KM |
Nearby Listings
| Address | Price | Type | Score | Distance |
|---|---|---|---|---|
| Holden Mill, Blackburn Road, Bolton | £ 140,000 | BUY | 5 / 10 | 0.00 KM |
| Holden Mill, Blackburn Road, Bolton | £ 125,000 | BUY | 5 / 10 | 0.00 KM |
| Holden Mill, Blackburn Road, Bolton | £ 285,000 | BUY | 6 / 10 | 0.00 KM |
| Holden Mill, Blackburn Road, Bolton | £ 160,000 | BUY | 7 / 10 | 0.00 KM |
| Holden Mill, Blackburn Road, Bolton | £ 140,000 | BUY | 5 / 10 | 0.00 KM |
Nearby Properties
| Address | Price | Distance |
|---|---|---|
| 5 Hesketh Avenue | £ 142,500 | 0.09 KM |
| 753 Blackburn Road | £ 180,000 | 0.13 KM |
| 751 Blackburn Road | £ 217,500 | 0.13 KM |
| 4 Ringley Grove | £ 185,000 | 0.15 KM |
| 1 Ringley Grove | £ 265,000 | 0.15 KM |