Smeaton Road, Woodford Green, Chigwell, IG8
MI

Smeaton Road, Woodford Green, Chigwell, IG8

By Michael Steven

£ 550,000

Reviews

3 out of 5 stars

Michael Steven says ..

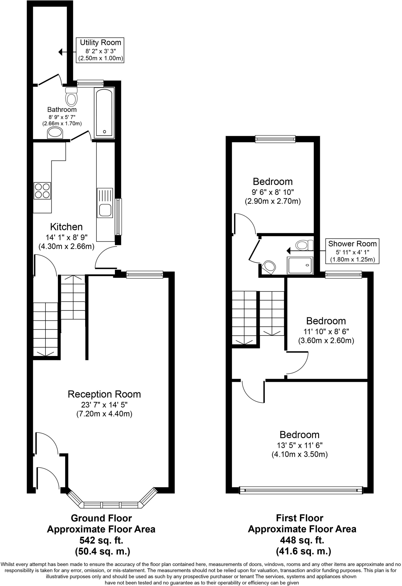
3 Bedroom Victorian Cottage – Character-Filled & Deceptively Spacious – West Hatch Catchment – Chigwell Three 3-bedroom Victorian cottage offers far more than meets the eye. Set over three levels, the home boasts a generous through-

Property Oracle says ..

This three-bedroom terraced house is located in Woodford Green, a desirable area in Essex. The property benefits from being close to good schools, including St John’s RC School and West Hatch High School, both rated as “Good” by Ofsted. Transport links are also relatively convenient, with several train stations within a reasonable distance. The house itself appears well-maintained and presented, with a modern kitchen and updated bathrooms. The inclusion of a garden is a definite plus, offering outdoor space. However, the plot size is quite small. While the list price of £550,000 seems reasonable considering the area and the property’s condition, it’s worth noting that the average price per square foot in the area is significantly higher than what this property offers. This could be due to the smaller plot size.

Therefore, we give this property 7 / 10. *Disclaimer: This is our option and does constitute a recommendation or financial advice. Do your own research. *

Price
7
Condition
8
Location
7
Land
6
Bedrooms
3
Bathrooms
2
Sqft (est)
542.50

The heatmap indicates the level of crime in the area. The color of the heatmap indicates the crime severity and recency.

Metrics Year-on-Year

Average area value
1,065,000.00 £
Decreased by 11.91 %
from 1,209,046.00 £
Est sale value
225,137.50 £
Decreased by 40.88 %
from 380,835.00 £
Average area rental value
3,225.00 £/mo
Decreased by 13.47 %
from 3,727.00 £/mo
Est letting value
542.50 £/mo
Decreased by 50.00 %
from 1,085.00 £/mo
Est rental Yield
3.63 %
Decreased by 1.89 %
from 3.70 %
Crime Rate
20.00 %
Unchanged by 0.00 %
from 20.00 %

Agent Activity

  • Michael Steven created the listing.

Nearby Schools

NameTypeOfstedDistance
St John'S Rc School (Essex)Non-maintained Special SchoolGood0.39 KM
West Hatch High SchoolAcademy ConverterGood0.40 KM
Roding Primary SchoolCommunity SchoolGood0.89 KM
Glade Primary SchoolCommunity SchoolGood1.69 KM
Caterham High SchoolCommunity SchoolRequires improvement1.78 KM

Images

3 bedroom Terraced for sale IMG_1500_22_original.jpg IMG_1500_16_original.jpg IMG_1500_17_original.jpg IMG_1500_21_original.jpg IMG_1500_18_original.jpg IMG_1500_20_original.jpg IMG_1500_1_original.jpg IMG_1500_2_original.jpg IMG_1500_3_original.jpg IMG_1500_5_original.jpg IMG_1500_6_original.jpg IMG_1500_8_original.jpg IMG_1500_23_original.jpg IMG_1500_13_original.jpg IMG_1500_24_original.jpg IMG_1500_14_original.jpg IMG_1500_10_original.jpg IMG_1500_11_original.jpg IMG_1500_12_original.jpg

Nearby Streets

NameAverage PriceAverage SqftDistance
Love Lane £ 310,00000.00 KM
Henwood Side £ 000.00 KM
Manor Road £ 650,00000.00 KM
M11 £ 000.00 KM
Fitzherbert Close £ 500,00000.00 KM

Nearby Transport

NameNLCTLCDistance
Ilford6881IFD5.69 KM
Chingford6914CHI6.22 KM
Seven Kings6893SVK6.45 KM
Manor Park6883MNP6.55 KM
Highams Park6919HIP6.76 KM

Nearby Listings

AddressPriceTypeScoreDistance
Smeaton Road, Woodford Green, Chigwell, IG8 £ 550,000BUY7 / 100.00 KM
Smeaton Road, Woodford Green £ 249,999BUY5 / 100.03 KM
Brunel Road, Woodford Green, IG8 8BE £ 699,950BUY6 / 100.05 KM
Brunel Road, Woodford Green £ 265,000BUY6 / 100.07 KM
Brunel Road, Woodford Green £ 275,000BUY6 / 100.07 KM

Nearby Properties

AddressPriceDistance
13 Brunel Road £ 282,5000.05 KM
71 Brunel Road £ 395,0000.05 KM
57 Brunel Road £ 195,0000.05 KM
58 Brunel Road £ 498,0000.05 KM
45 Brunel Road £ 600,0000.05 KM