Hedley Way, Hailsham
Stevens & Carter logo

Hedley Way, Hailsham

By Stevens & Carter

£ 500,000

Reviews

3 out of 5 stars

Stevens & Carter says ..

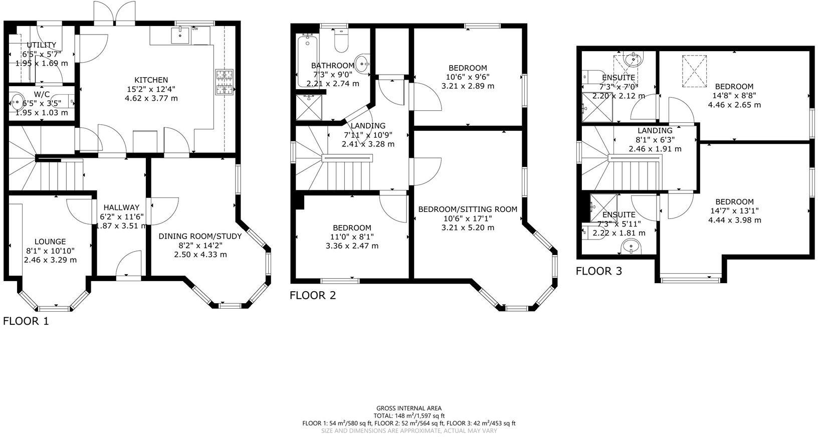
3D Virtual Tour I Detached Family Home I Versatile & Spacious Accommodation I Five Bedrooms I Three Reception Rooms I Two Garages & Parking I Lovely Size Rear Gardens I Viewing Highly Advised Stevens and Carter Estate Agents are pleased to market this well presented detached spacious fa...

Property Oracle says ..

The property is a modern detached house located in Hailsham, East Sussex. It benefits from a good location with nearby schools and train stations. The house is presented in excellent condition and benefits from a well maintained garden and a triple garage. The list price of £500,000 may be at the higher end of the market for Hedley Way, but is not unreasonable given the property’s size, features, and condition.

Therefore, we give this property 7 / 10. *Disclaimer: This is our option and does constitute a recommendation or financial advice. Do your own research. *

Price
7
Condition
9
Location
8
Land
7
Bedrooms
5
Bathrooms
3
Sqft (est)
1,699.08

The heatmap indicates the level of crime in the area. The color of the heatmap indicates the crime severity and recency.

Metrics Year-on-Year

Average area value
1,332,494.00 £
Increased by 19.68 %
from 1,113,335.00 £
Est sale value
2,371,915.68 £
Increased by 164.90 %
from 895,415.16 £
Average area rental value
1,800.00 £/mo
Decreased by 54.11 %
from 3,922.00 £/mo
Est letting value
1,699.08 £/mo
Unchanged by 0.00 %
from 1,699.08 £/mo
Est rental Yield
1.62 %
Decreased by 61.70 %
from 4.23 %
Crime Rate
25.00 %
Unchanged by 0.00 %
from 25.00 %

Agent Activity

  • Stevens & Carter created the listing.

Nearby Schools

NameTypeOfstedDistance
Grovelands Community Primary SchoolFoundation SchoolGood0.76 KM
Hawkes Farm AcademyAcademy Sponsor LedGood1.58 KM
Hellingly Community Primary SchoolCommunity SchoolGood1.65 KM
Hailsham Community CollegeAcademy ConverterGood1.71 KM
Burfield AcademyAcademy Sponsor LedRequires improvement2.10 KM

Images

IMG_5565.jpg IMG_5486.jpg IMG_5511.jpg IMG_5471.jpg IMG_5559.jpg IMG_5472.jpg IMG_5483.jpg IMG_5507.jpg IMG_5525.jpg IMG_5489.jpg IMG_5504.jpg IMG_5540.jpg IMG_5519.jpg IMG_5550.jpg IMG_5492.jpg IMG_5522.jpg IMG_5493.jpg IMG_5498.jpg IMG_5499.jpg IMG_5510.jpg IMG_5561.jpg IMG_5534.jpg IMG_5562.jpg IMG_5543.jpg IMG_5549.jpg IMG_5566.jpg IMG_5558.jpg IMG_5560.jpg IMG_5564.jpg IMG_5563.jpg IMG_5568.jpg

Nearby Streets

NameAverage PriceAverage SqftDistance
Firecrest Avenue £ 000.00 KM
Redpoll Road £ 400,00000.00 KM
Maclean Path £ 000.00 KM
Croft Works £ 000.00 KM
Carriers Path £ 000.00 KM

Nearby Transport

NameNLCTLCDistance
Polegate5455PLG5.66 KM
Berwick (Sussex)5323BRK9.05 KM
Hampden Park (Sussex)5450HMD9.39 KM

Nearby Listings

AddressPriceTypeScoreDistance
Hedley Way, Hailsham £ 500,000BUY7 / 100.00 KM
Hedley Way, Hailsham £ 465,000BUY6 / 100.06 KM
Stanier Street, Hailsham, BN27 £ 275,000BUY6 / 100.09 KM
Hedley Way, Hailsham £ 315,000BUY7 / 100.10 KM
Hedley Way, Hailsham, BN27 £ 325,000BUY7 / 100.10 KM

Nearby Properties

AddressPriceDistance
15 Hedley Way £ 250,0000.10 KM
4 Hedley Way £ 339,5000.10 KM
83 Hedley Way £ 390,0000.10 KM
34 Hedley Way £ 260,0000.10 KM
69 Hedley Way £ 274,9950.10 KM