New England Road, Haywards Heath, RH16
By Mansell McTaggart
£ 525,000
Reviews
3 out of 5 stars
Mansell McTaggart says ..
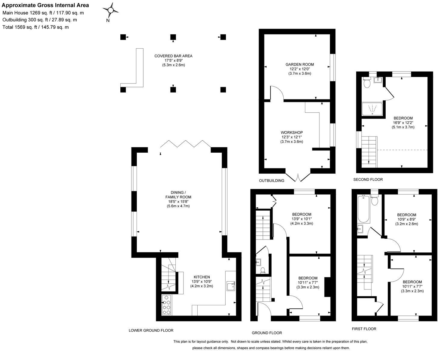
Guide Price £525,000 - £550,000 - A highly versatile 4/5 bedroom 4 storey Victorian semi-detached house with a fabulous 100' x 33' South facing rear garden with undercover entertaining area with bar and a long driveway leading to a larger than average garage/workshop situated just to the east of ...
Property Oracle says ..
The property is located in a convenient location close to schools and transport links. The property is in good condition, with some minor cosmetic improvements needed. The substantial garden is a positive feature. The list price appears reasonable, although more information on the property size would be beneficial for a more precise assessment.
Therefore, we give this property 7 / 10. *Disclaimer: This is our option and does constitute a recommendation or financial advice. Do your own research. *
- Price
- 7
- Condition
- 0
- Location
- 8
- Land
- 8
- Bedrooms
- 5
- Bathrooms
- 2
- Sqft (est)
- 1,459.96
- Lot (est)
- 1,569.00
The heatmap indicates the level of crime in the area. The color of the heatmap indicates the crime severity and recency.
Metrics Year-on-Year
- Average area value
- 890,625.00 £Increased by 35.96 %
- Est sale value
- 832,177.20 £Increased by 58.77 %
- Average area rental value
- 1,412.00 £/moDecreased by 13.11 %
- Est letting value
- 0.00 £/mo
- Est rental Yield
- 1.90 %Decreased by 36.24 %
- Crime Rate
- 4.00 %Unchanged by 0.00 %
Agent Activity
Mansell McTaggart created the listing.
Nearby Schools
| Name | Type | Ofsted | Distance |
|---|---|---|---|
| Warden Park Primary Academy | Academy Sponsor Led | Good | 0.30 KM |
| St Wilfrid'S Cofe Primary School, Haywards Heath | Voluntary Aided School | Good | 0.58 KM |
| St Joseph'S Catholic Primary School | Academy Converter | 0.61 KM | |
| Oathall Community College | Community School | Good | 0.78 KM |
| Rural Haywards Heath Children & Family Centre | Children's Centre | 0.89 KM |
Images
Nearby Streets
| Name | Average Price | Average Sqft | Distance |
|---|---|---|---|
| Foxes Mews | £ 0 | 0 | 0.00 KM |
| Nightingale Close | £ 750,000 | 0 | 0.00 KM |
| Oakdale Road | £ 465,000 | 0 | 0.00 KM |
| French Gardens | £ 0 | 0 | 0.00 KM |
| Perrymount Road | £ 0 | 0 | 0.00 KM |
Nearby Transport
| Name | NLC | TLC | Distance |
|---|---|---|---|
| Haywards Heath | 5490 | HHE | 1.29 KM |
| Wivelsfield | 5341 | WVF | 4.88 KM |
| Burgess Hill | 5483 | BUG | 6.28 KM |
| Balcombe | 5492 | BAB | 7.73 KM |
| Plumpton | 5332 | PMP | 8.82 KM |
Nearby Listings
| Address | Price | Type | Score | Distance |
|---|---|---|---|---|
| New England Road, Haywards Heath, RH16 | £ 525,000 | BUY | 7 / 10 | 0.00 KM |
| New England Road, Haywards Heath | £ 600,000 | BUY | 7 / 10 | 0.02 KM |
| New England Road, Haywards Heath, RH16 | £ 350,000 | BUY | 7 / 10 | 0.08 KM |
| Woodlands Road, Haywards Heath, RH16 | £ 460,000 | BUY | 6 / 10 | 0.11 KM |
| Woodlands Road, Haywards Heath, RH16 | £ 475,000 | BUY | Unknown | 0.12 KM |
Nearby Properties
| Address | Price | Distance |
|---|---|---|
| 40 New England Road | £ 264,000 | 0.02 KM |
| 72 New England Road | £ 405,000 | 0.02 KM |
| Rosapenna | £ 287,500 | 0.02 KM |
| 46 New England Road | £ 412,000 | 0.02 KM |
| 80 New England Road | £ 249,950 | 0.02 KM |