Baltic Way, Totnes
ST

Baltic Way, Totnes

By Stags

£ 750,000

Reviews

3 out of 5 stars

Stags says ..

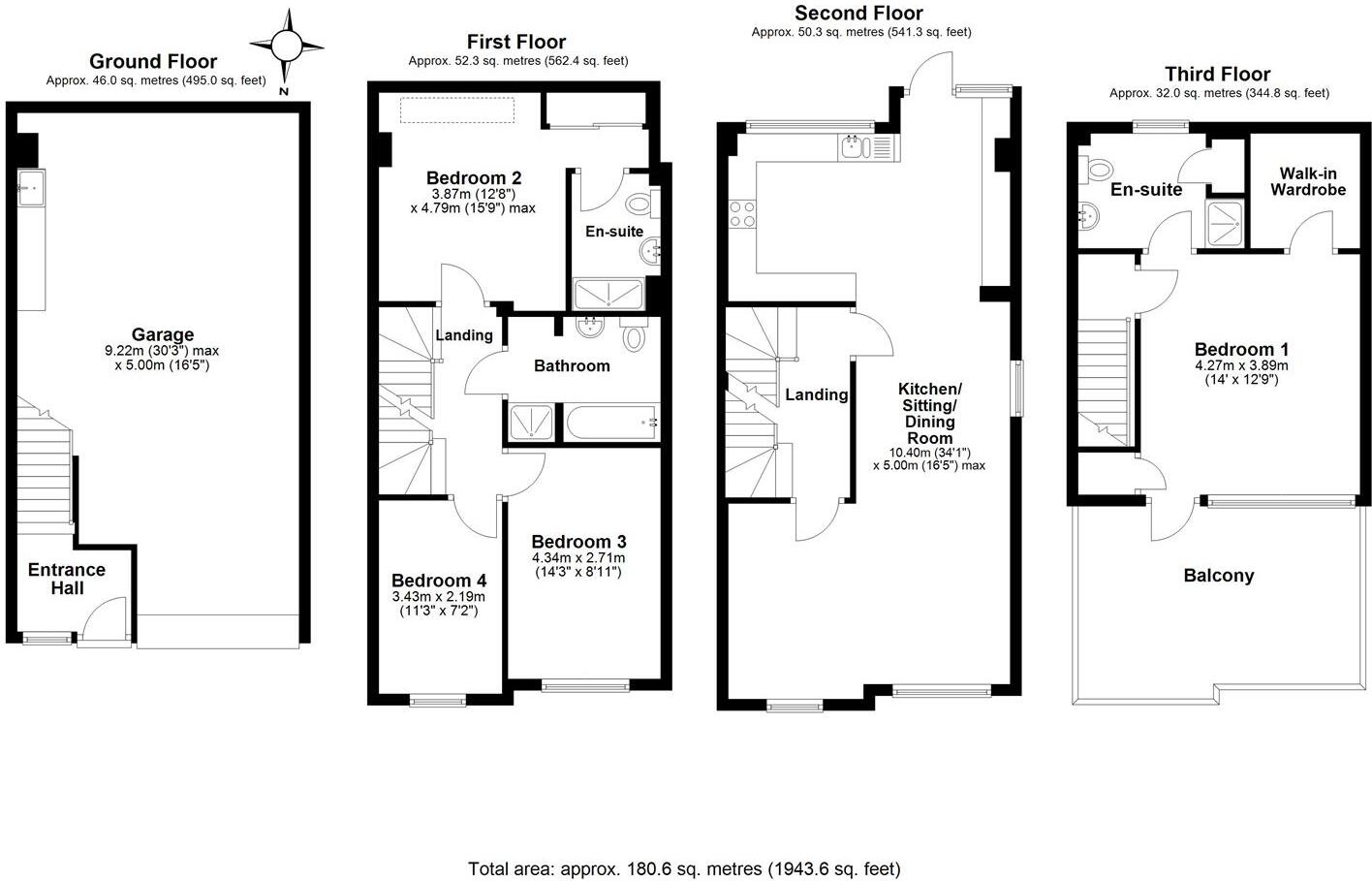
Exceptional modern townhouse with stunning balcony, landscaped garden and garage, moments from the River Dart and Totnes. EPC Band: B.

Property Oracle says ..

This is a well-presented, modern semi-detached property in a desirable location in Totnes. The property benefits from a good-sized garden, a roof terrace, and off-street parking. The property is in excellent condition and would make an ideal family home.

Therefore, we give this property 7 / 10. *Disclaimer: This is our option and does constitute a recommendation or financial advice. Do your own research. *

Price
6
Condition
9
Location
7
Land
7
Bedrooms
4
Bathrooms
3
Sqft (est)
1,943.96

The heatmap indicates the level of crime in the area. The color of the heatmap indicates the crime severity and recency.

Metrics Year-on-Year

Average area value
418,833.00 £
Increased by 5.75 %
from 396,049.00 £
Est sale value
787,303.80 £
Increased by 5.47 %
from 746,480.64 £
Average area rental value
1,017.00 £/mo
Decreased by 11.64 %
from 1,151.00 £/mo
Est letting value
0.00 £/mo
Decreased by 100.00 %
from 1,943.96 £/mo
Est rental Yield
2.91 %
Decreased by 16.62 %
from 3.49 %
Crime Rate
6.00 %
Unchanged by 0.00 %
from 6.00 %

Agent Activity

  • Stags created the listing.

Nearby Schools

NameTypeOfstedDistance
Roc College (Part Of United Response)Special Post 16 InstitutionGood0.30 KM
Daisy Play Centre Totnes And District Children'S CentreChildren's Centre0.61 KM
Totnes St John'S Church Of England Primary SchoolAcademy Sponsor Led0.73 KM
The Grove SchoolCommunity SchoolOutstanding0.81 KM
On Track Education - TotnesOther Independent Special SchoolGood0.90 KM

Images

A02 - 18 Baltic Way Totnes - 250926.jpg A06 - 18 Baltic Way Totnes - 250926.jpg A24 - 18 Baltic Way Totnes - 250926.jpg A08 - 18 Baltic Way Totnes - 250926.jpg A15 - 18 Baltic Way Totnes - 250926.jpg A12 - 18 Baltic Way Totnes - 250926.jpg A18 - 18 Baltic Way Totnes - 250926.jpg A20 - 18 Baltic Way Totnes - 250926.jpg A03 - 18 Baltic Way Totnes - 250926.jpg A04 - 18 Baltic Way Totnes - 250926.jpg A07 - 18 Baltic Way Totnes - 250926.jpg A09 - 18 Baltic Way Totnes - 250926.jpg A10 - 18 Baltic Way Totnes - 250926.jpg A13 - 18 Baltic Way Totnes - 250926.jpg A01 - 18 Baltic Way Totnes - 250926.jpg A11 - 18 Baltic Way Totnes - 250926.jpg A14 - 18 Baltic Way Totnes - 250926.jpg A05 - 18 Baltic Way Totnes - 250926.jpg A16 - 18 Baltic Way Totnes - 250926.jpg A17 - 18 Baltic Way Totnes - 250926.jpg A19 - 18 Baltic Way Totnes - 250926.jpg A21 - 18 Baltic Way Totnes - 250926.jpg A22 - 18 Baltic Way Totnes - 250926.jpg A23 - 18 Baltic Way Totnes - 250926.jpg A25 - 18 Baltic Way Totnes - 250926.jpg A26 - 18 Baltic Way Totnes - 250926.jpg

Nearby Streets

NameAverage PriceAverage SqftDistance
Paradise Walk £ 000.00 KM
Chapel Lane £ 000.00 KM
Mansion Way £ 000.00 KM
Brooklands £ 460,00000.00 KM
Heath Court £ 000.00 KM

Nearby Transport

NameNLCTLCDistance
Totnes3558TOT1.31 KM

Nearby Listings

AddressPriceTypeScoreDistance
Baltic Way, Totnes £ 750,000BUY7 / 100.00 KM
Baltic Way, Totnes £ 800,000BUY6 / 100.00 KM
Baltic Way, Totnes, TQ9 £ 650,000BUY7 / 100.02 KM
Baltic Way, Totnes, TQ9 5WW £ 415,000BUY6 / 100.04 KM
Dart View House, Baltic Way, Totnes £ 350,000BUY6 / 100.05 KM

Nearby Properties

AddressPriceDistance
14 Baltic Way £ 172,0000.07 KM
10 Sawmill Close £ 240,0000.12 KM
17 Sawmill Close £ 393,0000.12 KM
4 The Bridle Path £ 500,0000.21 KM
6 The Bridle Path £ 378,0000.21 KM