Simmons Way, Clayton Le Moors, Accrington
By Keenans Estate Agents
£ 200,000
Reviews
3 out of 5 stars
Keenans Estate Agents says ..
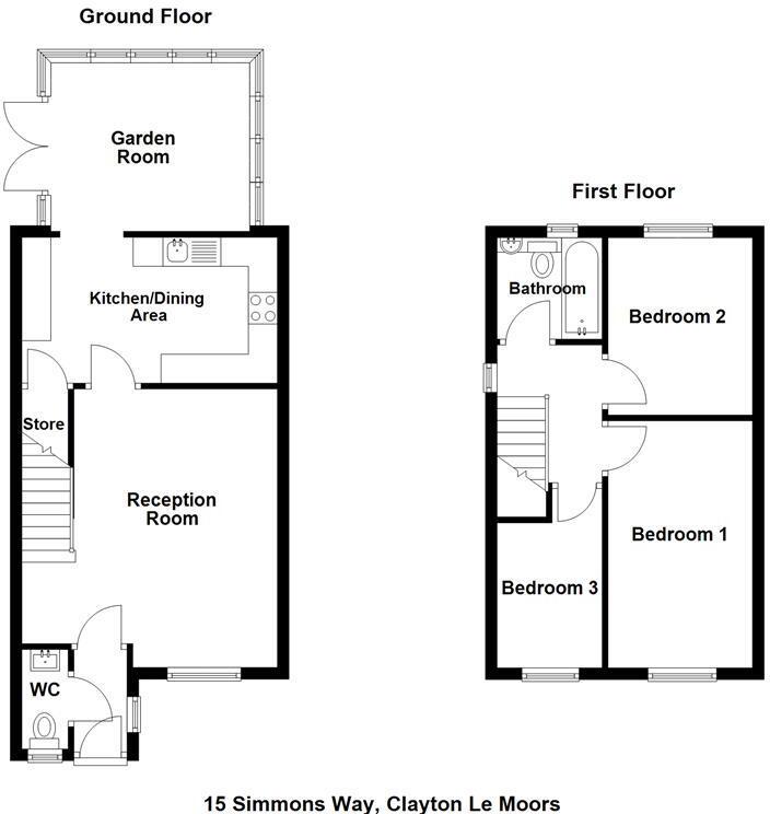
THE PERFECT FAMILY HOME Nestled in the sought-after area of Simmons Way, Clayton Le Moors, Accrington, this exquisite semi-detached family home is a true gem. Having been meticulously presented and updated to the highest standard, the property boasts immaculate interiors and spacious ro...
Property Oracle says ..
This is a well-presented semi-detached property in Clayton Le Moors. It benefits from a modern interior, a garden, and off-street parking. The property is located within a reasonable distance of local schools and transport links. While the asking price is above the average for the area, the condition and size of the property appear to justify the premium.
Therefore, we give this property 7 / 10. *Disclaimer: This is our option and does constitute a recommendation or financial advice. Do your own research. *
- Price
- 7
- Condition
- 8
- Location
- 7
- Land
- 6
- Bedrooms
- 3
- Bathrooms
- 1
- Sqft (est)
- 1,012.00
The heatmap indicates the level of crime in the area. The color of the heatmap indicates the crime severity and recency.
Metrics Year-on-Year
- Average area value
- 149,988.00 £Decreased by 20.04 %
- Est sale value
- 155,848.00 £Increased by 9.22 %
- Average area rental value
- 653.00 £/moIncreased by 11.05 %
- Est letting value
- 0.00 £/mo
- Est rental Yield
- 5.22 %Increased by 38.83 %
- Crime Rate
- 9.00 %Unchanged by 0.00 %
Agent Activity
Keenans Estate Agents created the listing.
Nearby Schools
| Name | Type | Ofsted | Distance |
|---|---|---|---|
| St Mary'S Roman Catholic Primary School, Clayton-Le-Moors | Voluntary Aided School | Good | 0.33 KM |
| Clayton-Le-Moors Mount Pleasant Primary School | Community School | Outstanding | 0.65 KM |
| Clayton Le Moors And Altham Children'S Centre | Children's Centre | 0.86 KM | |
| Clayton-Le-Moors All Saints' Church Of England Primary School | Academy Converter | Good | 1.36 KM |
| Accrington St Christopher'S Church Of England High School | Academy Converter | Good | 1.64 KM |
Images
Nearby Streets
| Name | Average Price | Average Sqft | Distance |
|---|---|---|---|
| Cumberland Avenue | £ 0 | 0 | 0.00 KM |
| York Close | £ 0 | 0 | 0.00 KM |
| William Street | £ 0 | 0 | 0.00 KM |
| Hill Street | £ 0 | 0 | 0.00 KM |
| Bell Lane | £ 0 | 0 | 0.00 KM |
Nearby Transport
| Name | NLC | TLC | Distance |
|---|---|---|---|
| Accrington | 2552 | ACR | 2.68 KM |
| Church And Oswaldtwistle | 2556 | CTW | 3.23 KM |
| Huncoat | 2558 | HCT | 3.28 KM |
| Rishton | 2580 | RIS | 4.97 KM |
| Whalley (Lancashire) | 2736 | WHE | 6.63 KM |
Nearby Listings
| Address | Price | Type | Score | Distance |
|---|---|---|---|---|
| Simmons Way, Clayton Le Moors, Accrington | £ 200,000 | BUY | 7 / 10 | 0.00 KM |
| Simmons Way, Clayton Le Moors, Accrington | £ 225,000 | BUY | 7 / 10 | 0.09 KM |
| Clayton Way, Clayton Le Moors, Accrington, BB5 | £ 189,950 | BUY | 7 / 10 | 0.12 KM |
| Higher Firs Drive, Clayton Le Moors, Accrington, Lancashire, BB5 | £ 150,000 | BUY | 6 / 10 | 0.12 KM |
| Clayton Way, Clayton Le Moors, Accrington, Lancashire, BB5 | £ 220,000 | BUY | 6 / 10 | 0.13 KM |
Nearby Properties
| Address | Price | Distance |
|---|---|---|
| 29 Simmons Way | £ 135,000 | 0.09 KM |
| 3 Simmons Way | £ 225,000 | 0.09 KM |
| 24 Simmons Way | £ 142,500 | 0.09 KM |
| 31 Simmons Way | £ 179,450 | 0.09 KM |
| 2 Simmons Way | £ 150,000 | 0.09 KM |