TA
1 Holehouse Road, Largs, KA30 9JG
By Taylor & Henderson
£ 235,000
Reviews
3 out of 5 stars
Taylor & Henderson says ..
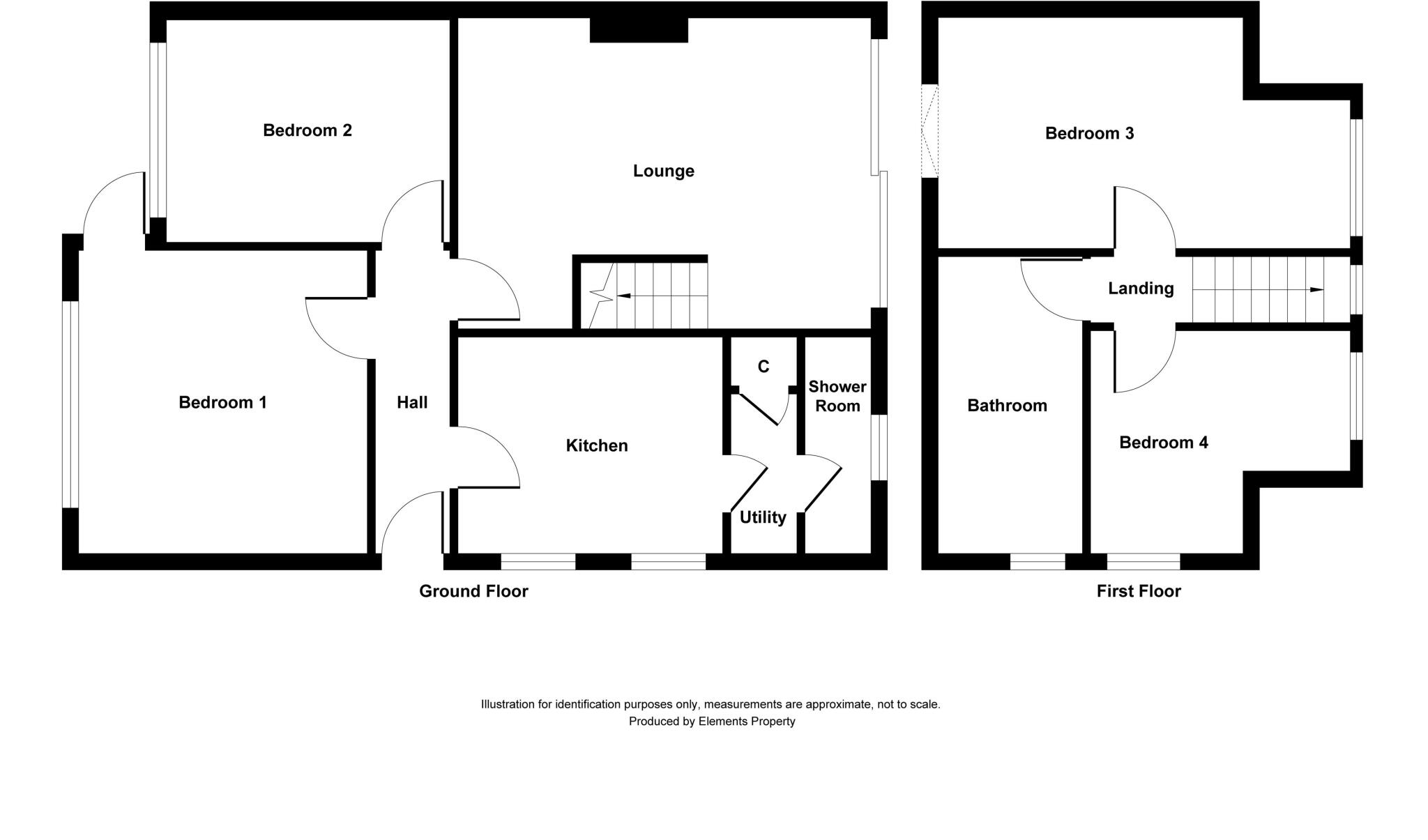
Taylor and Henderson are delighted to bring to the market this rarely available semi-detached chalet bungalow within an extremely popular, established residential pocket in easy access of all local amenities. The spacious accommodation comprises entrance hallway, lounge with patio doors leadin...
Property Oracle says ..
Therefore, we give this property 7 / 10. *Disclaimer: This is our option and does constitute a recommendation or financial advice. Do your own research. *
- Price
- 8
- Condition
- 7
- Location
- 7
- Land
- 7
- Bedrooms
- 4
- Bathrooms
- 2
- Sqft (est)
- 998.00
The heatmap indicates the level of crime in the area. The color of the heatmap indicates the crime severity and recency.
Metrics Year-on-Year
- Average area value
- 134,933.00 £Decreased by 31.21 %
- Est sale value
- 187,624.00 £Increased by 24.50 %
- Average area rental value
- 750.00 £/moDecreased by 8.98 %
- Est letting value
- 998.00 £/mo
- Est rental Yield
- 6.67 %Increased by 32.34 %
- Crime Rate
- 0.00 %
from 196,142.00 £
from 150,698.00 £
from 824.00 £/mo
from 0.00 £/mo
from 5.04 %
from 0.00 %
Agent Activity
Taylor & Henderson created the listing.
Images
Nearby Streets
| Name | Average Price | Average Sqft | Distance |
|---|---|---|---|
| George Street | £ 84,000 | 0 | 0.00 KM |
| Royal Avenue | £ 60,000 | 0 | 0.00 KM |
| Sinclair Terrace | £ 0 | 0 | 0.00 KM |
| New Street | £ 45,000 | 0 | 0.00 KM |
| Burnside Road | £ 0 | 0 | 0.00 KM |
Nearby Transport
| Name | NLC | TLC | Distance |
|---|---|---|---|
| Largs | 9521 | LAR | 0.92 KM |
| Fairlie | 9452 | FRL | 5.14 KM |
| Wemyss Bay | 9673 | WMS | 9.26 KM |
Nearby Listings
| Address | Price | Type | Score | Distance |
|---|---|---|---|---|
| 1 Holehouse Road, Largs, KA30 9JG | £ 235,000 | BUY | 7 / 10 | 0.00 KM |
| 3 Holehouse Road, Largs, KA30 9JG | £ 215,000 | BUY | 7 / 10 | 0.05 KM |
| Middleton Drive, Largs, North Ayrshire, KA30 | £ 299,995 | BUY | 7 / 10 | 0.12 KM |
| 56 Haco Street, Largs, KA30 9BG | £ 140,000 | BUY | 7 / 10 | 0.15 KM |
| Haco Street, Largs, North Ayrshire, KA30 | £ 150,000 | BUY | Unknown | 0.15 KM |