Links Estate Agents says ..
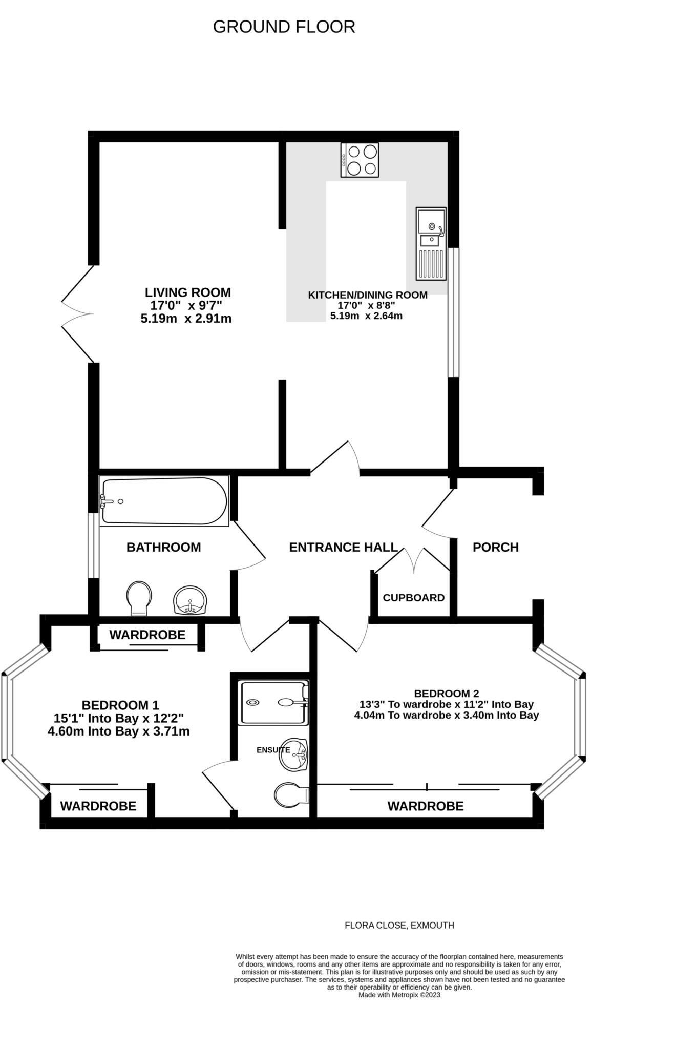
Offered for sale with NO ONWARD CHAIN and Built by Messrs Kach Developments in 2019 and being 1 of only 4 Bungalows within this small development is this 2 double bedroom and 2 bathroom, bay fronted, semi detached bungalow with a private and Southerly facing rear garden, garage and driveway.
Property Oracle says ..
This 2-bedroom, 2-bathroom semi-detached bungalow in Exmouth, Devon, is presented in excellent condition, with modern fixtures and fittings throughout. The property benefits from a contemporary kitchen and bathrooms, and offers a relatively low-maintenance, private garden. A garage is included and a drive way. The location is attractive for families, given the proximity to ‘Good’ Ofsted-rated primary schools and to Exmouth’s transport links. While the property benefits from a relatively new construction and generally good condition, the images provided suggests a small plot size and a rather small overall property size. The list price appears competitive when compared to similar properties within the area, though further information regarding local price per square foot would allow for a more definitive assessment. Overall, this property offers modern living in a convenient location, suitable for a smaller family or couple. The limited garden size might be a factor to consider for those seeking more expansive outdoor space.
Therefore, we give this property 6 / 10. *Disclaimer: This is our option and does constitute a recommendation or financial advice. Do your own research. *
- Price
- 7
- Condition
- 8
- Location
- 7
- Land
- 4
- Bedrooms
- 2
- Bathrooms
- 2
- Sqft (est)
- 965.20
The heatmap indicates the level of crime in the area. The color of the heatmap indicates the crime severity and recency.
Metrics Year-on-Year
- Average area value
- 412,759.00 £Increased by 3.22 %
- Est sale value
- 385,114.80 £Increased by 2.31 %
- Average area rental value
- 1,432.00 £/moDecreased by 13.89 %
- Est letting value
- 965.20 £/moUnchanged by 0.00 %
- Est rental Yield
- 4.16 %Decreased by 16.63 %
- Crime Rate
- 6.00 %Unchanged by 0.00 %
Agent Activity
Links Estate Agents marked this listing as sold.
Links Estate Agents created the listing.
Nearby Schools
| Name | Type | Ofsted | Distance |
|---|---|---|---|
| Marpool Primary School | Foundation School | Good | 0.48 KM |
| Exmouth & District Children'S Centre | Children's Centre | 0.67 KM | |
| Bassetts Farm Primary School | Foundation School | Good | 0.68 KM |
| Brixington Primary Academy | Academy Sponsor Led | Requires improvement | 0.79 KM |
| Withycombe Raleigh Church Of England Primary School | Voluntary Controlled School | Good | 0.87 KM |
Images
Nearby Streets
| Name | Average Price | Average Sqft | Distance |
|---|---|---|---|
| Somerville Close | £ 0 | 0 | 0.00 KM |
| St John's Road | £ 270,000 | 0 | 0.00 KM |
| Brook Meadow | £ 0 | 0 | 0.00 KM |
| Linden Close | £ 289,950 | 0 | 0.00 KM |
| Broad Park Road | £ 350,000 | 0 | 0.00 KM |
Nearby Transport
| Name | NLC | TLC | Distance |
|---|---|---|---|
| Exmouth | 5756 | EXM | 2.85 KM |
| Lympstone Village | 5761 | LYM | 4.76 KM |
| Starcross | 3413 | SCS | 6.26 KM |
| Lympstone Commando | 5762 | LYC | 6.45 KM |
| Dawlish Warren | 3409 | DWW | 6.85 KM |
Nearby Listings
| Address | Price | Type | Score | Distance |
|---|---|---|---|---|
| Flora Close, Exmouth | £ 375,000 | BUY | 6 / 10 | 0.00 KM |
| Cheriswood Close, Exmouth, Devon, EX8 | £ 475,000 | BUY | 6 / 10 | 0.11 KM |
| St. Johns Road, Exmouth, EX8 4DD | £ 450,000 | BUY | 7 / 10 | 0.12 KM |
| Cheriswood Close, Exmouth | £ 450,000 | BUY | 7 / 10 | 0.14 KM |
| Flora Close Exmouth | £ 450,000 | BUY | Unknown | 0.16 KM |
Nearby Properties
| Address | Price | Distance |
|---|---|---|
| 33 St Johns Road | £ 179,000 | 0.10 KM |
| 54 St Johns Road | £ 267,000 | 0.10 KM |
| 64 St Johns Road | £ 343,000 | 0.10 KM |
| 62 St Johns Road | £ 380,000 | 0.10 KM |
| Stoke Lyne Lodge | £ 187,500 | 0.10 KM |