Main Street, Wighill, Tadcaster, North Yorkshire, LS24
By Lister Haigh
£ 650,000
Reviews
2 out of 5 stars
Lister Haigh says ..
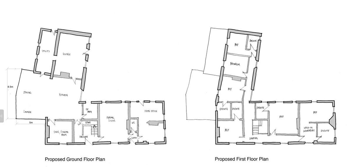
The interior space offers the market opportunity to showcase a fusion of classic farmhouse features with contemporary amenities so highly sort after in today's climate. The property boasts multiple reception rooms, each with its own unique character and in its current state flexibility for the pu...
Property Oracle says ..
The property is a 5-bedroom detached house located in Wighill, North Yorkshire. The list price is £650,000. The average house price in the area is £712,586, and the average price per square foot is £612. This property is 1,291.67 sqft. Considering the images provided, the property appears to be a period property in need of significant renovation. The interior shows exposed floorboards, damaged walls, and outdated fixtures. The exterior, while showing some charm, also indicates a need for repairs and modernization. The presence of a garden is evident from the exterior photos. The size of the garden is not specified but appears relatively modest. The location in Wighill, near Tadcaster, is in a rural setting. While the proximity to Tadcaster offers some local amenities, the distance to larger towns and cities may be a factor for some buyers. The availability of schools is noted, but the quality and suitability of these schools would need further investigation. The proximity to train stations in Hammerton and Ulleskelf provides access to public transportation. Given the condition of the property, requiring substantial renovation, the relatively modest plot size, and the location in a rural area, the list price of £650,000 seems high compared to the average price per square foot in the area. However, the property’s period features and potential for renovation could justify a higher price for buyers seeking a project. Nearby comparable properties show a range of prices, some significantly higher, suggesting that the list price is not entirely unreasonable within the context of the local market. More detailed information on the specific condition of the property and the extent of necessary renovations would be needed for a more precise price evaluation.
Therefore, we give this property 4 / 10. *Disclaimer: This is our option and does constitute a recommendation or financial advice. Do your own research. *
- Price
- 5
- Condition
- 3
- Location
- 6
- Land
- 4
- Bedrooms
- 5
- Bathrooms
- 0
- Sqft (est)
- 1,291.67
The heatmap indicates the level of crime in the area. The color of the heatmap indicates the crime severity and recency.
Metrics Year-on-Year
- Average area value
- 413,333.00 £Decreased by 22.14 %
- Est sale value
- 648,418.34 £Increased by 48.08 %
- Average area rental value
- 1,125.00 £/moDecreased by 17.04 %
- Est letting value
- 1,291.67 £/mo
- Est rental Yield
- 3.27 %Increased by 6.51 %
- Crime Rate
- 0.00 %
Agent Activity
Lister Haigh created the listing.
Nearby Schools
| Name | Type | Ofsted | Distance |
|---|---|---|---|
| Riverside School, Tadcaster | Academy Converter | 3.51 KM | |
| Tadcaster Primary Academy | Academy Converter | 4.20 KM | |
| Tadcaster Children'S Centre | Children's Centre | 4.37 KM | |
| Tockwith Church Of England Primary Academy | Academy Converter | 5.38 KM | |
| Tadcaster Grammar School | Academy Converter | 5.47 KM |
Images
Nearby Transport
| Name | NLC | TLC | Distance |
|---|---|---|---|
| Hammerton | 8241 | HMM | 8.98 KM |
| Ulleskelf | 8261 | ULL | 9.78 KM |
Nearby Listings
| Address | Price | Type | Score | Distance |
|---|---|---|---|---|
| Main Street, Wighill, Tadcaster, North Yorkshire, LS24 | £ 650,000 | BUY | 4 / 10 | 0.00 KM |
| Owl End, Main Street, Wighill, Tadcaster, North Yorkshire | £ 850,000 | BUY | 7 / 10 | 0.00 KM |
| Ainsty Farmhouse, Main Street, Wighill, near Tadcaster LS24 8BQ | £ 695,000 | BUY | Unknown | 0.02 KM |
| Shires Cottage, Main Street, Wighill, near Tadcaster LS24 8BQ | £ 335,000 | BUY | 6 / 10 | 0.02 KM |
| Hartley Fold, Main Street, Wighill, near Tadcaster LS24 8BQ | £ 675,000 | BUY | 5 / 10 | 0.02 KM |
Nearby Properties
| Address | Price | Distance |
|---|---|---|
| Marston House | £ 740,000 | 0.02 KM |
| Holly Mount | £ 520,000 | 0.02 KM |
| Brook Hall Farm | £ 1,250,000 | 0.02 KM |
| Owl End | £ 420,000 | 0.02 KM |
| Forge | £ 825,000 | 0.02 KM |