WO
Orchid Vale, Kingsteignton
By Woods Estate Agents & Auctioneers
£ 275,000
Woods Estate Agents & Auctioneers says ..
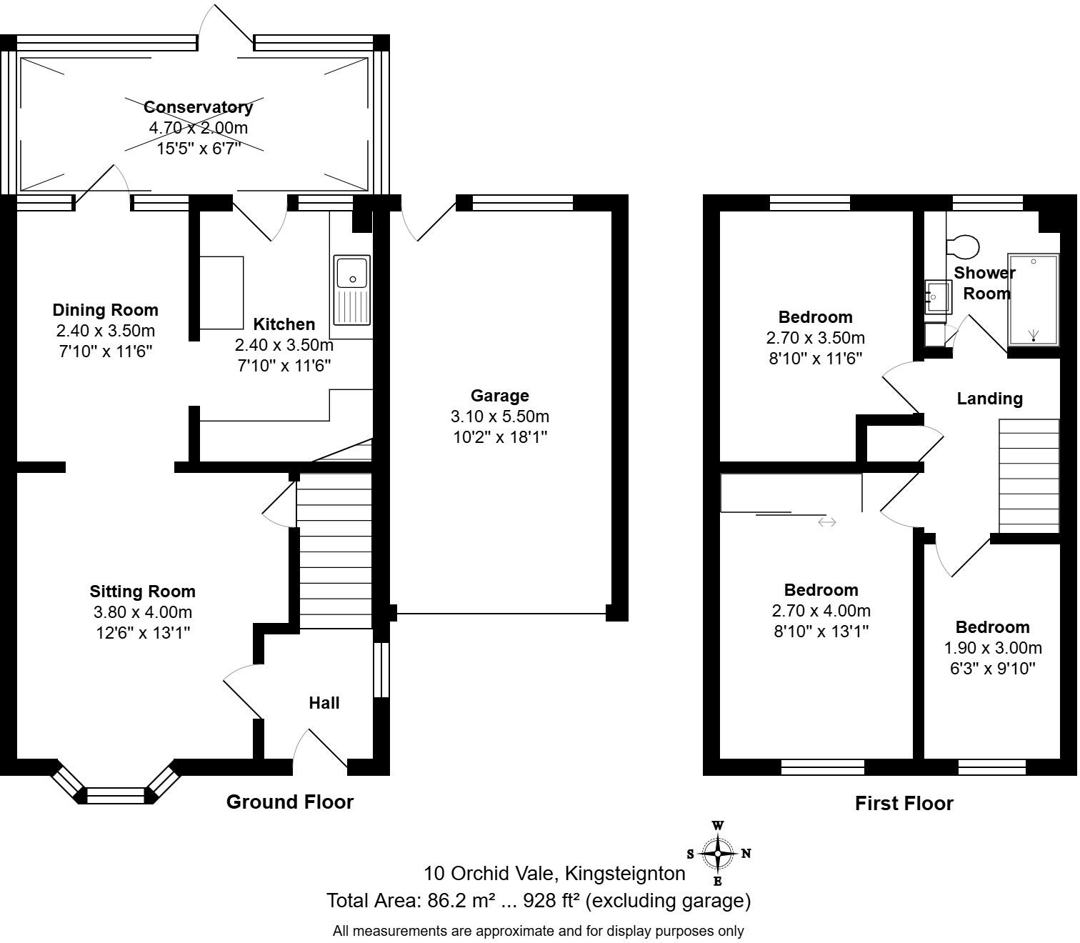
Located in a popular sought after residential area of Kingsteignton, within walking distance of the local convenience store, primary and secondary school is this semi-detached house with front and rear gardens. There is a garage, driveway parking, double glazing and gas central heating.
- Bedrooms
- 3
- Bathrooms
- 1
The heatmap indicates the level of crime in the area. The color of the heatmap indicates the crime severity and recency.
Metrics Year-on-Year
- Average area value
- 267,143.00 £Decreased by 13.18 %
- Average area rental value
- 1,280.00 £/moIncreased by 3.64 %
- Est rental Yield
- 5.75 %Increased by 19.29 %
- Crime Rate
- 29.00 %Unchanged by 0.00 %
from 307,715.00 £
from 1,235.00 £/mo
from 4.82 %
from 29.00 %
Agent Activity
Woods Estate Agents & Auctioneers marked this listing as sold.
Woods Estate Agents & Auctioneers created the listing.
Nearby Schools
| Name | Type | Ofsted | Distance |
|---|---|---|---|
| Rydon Primary School | Academy Converter | Good | 0.42 KM |
| Teign School | Academy Converter | Requires improvement | 0.96 KM |
| Kingsteignton School | Free Schools | Good | 1.10 KM |
| St Michael'S Church Of England Primary School | Voluntary Controlled School | Requires improvement | 1.19 KM |
| South Devon Utc | University Technical College | Good | 2.86 KM |
Images
Nearby Streets
| Name | Average Price | Average Sqft | Distance |
|---|---|---|---|
| Burnham Court | £ 0 | 0 | 0.00 KM |
| Crossley Moor Road | £ 0 | 0 | 0.00 KM |
| Winston Close | £ 0 | 0 | 0.00 KM |
| Fore Street | £ 0 | 0 | 0.00 KM |
| Honeywell Road | £ 0 | 0 | 0.00 KM |
Nearby Transport
| Name | NLC | TLC | Distance |
|---|---|---|---|
| Newton Abbot | 3426 | NTA | 3.06 KM |
Nearby Listings
| Address | Price | Type | Score | Distance |
|---|---|---|---|---|
| Orchid Vale, Kingsteignton | £ 275,000 | BUY | Unknown | 0.00 KM |
| Willhays Close, Kingsteignton, Newton Abbot, Devon | £ 345,000 | BUY | Unknown | 0.04 KM |
| Kings Coombe Drive, Kingsteignton | £ 242,500 | BUY | 6 / 10 | 0.06 KM |
| Kings Coombe Drive, Kingsteignton, Newton Abbot, TQ12 3YU | £ 275,000 | BUY | 6 / 10 | 0.09 KM |
| Kings Coombe Drive, Kingsteignton | £ 215,000 | BUY | 6 / 10 | 0.09 KM |
Nearby Properties
| Address | Price | Distance |
|---|---|---|
| 51 Kings Coombe Drive | £ 170,000 | 0.09 KM |
| 26 Kings Coombe Drive | £ 215,000 | 0.09 KM |
| 43 Kings Coombe Drive | £ 247,000 | 0.09 KM |
| 28 Kings Coombe Drive | £ 211,000 | 0.09 KM |
| 27 Kings Coombe Drive | £ 166,000 | 0.09 KM |