Heygarth Road, Eastham
By Lesley Hooks Estate Agents
£ 240,000
Reviews
3 out of 5 stars
Lesley Hooks Estate Agents says ..
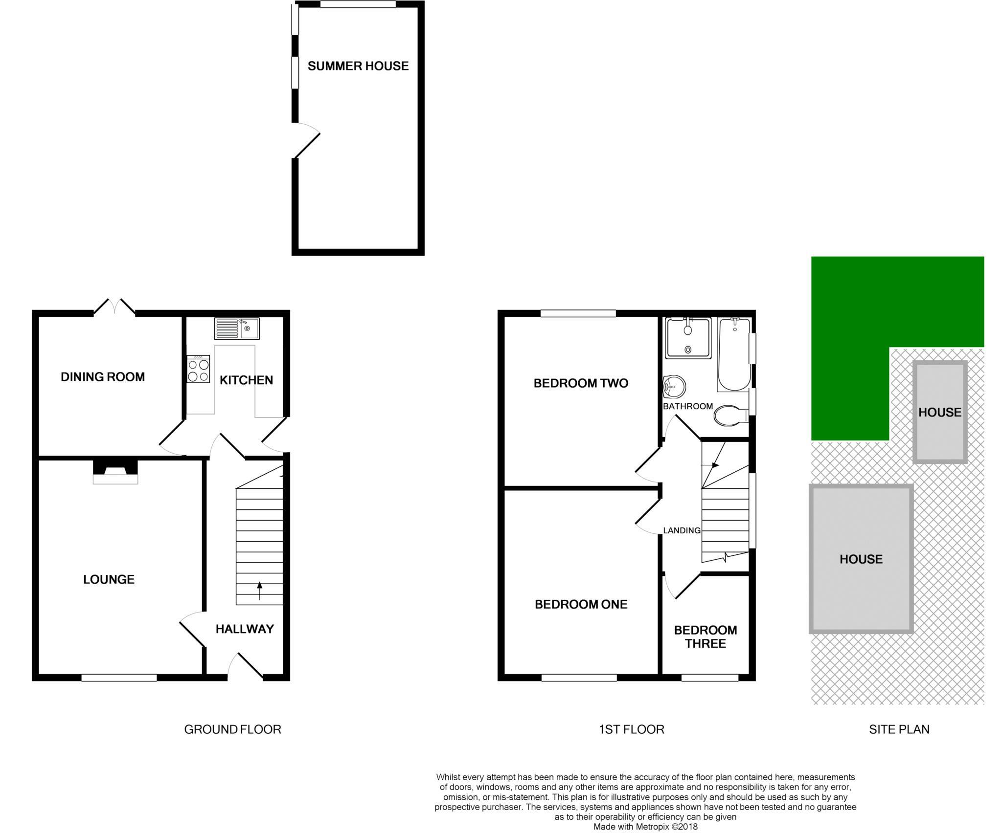
Hey Hey Hey......calling all first time buyers! The layout of this three bedroom semi detached comprises entrance hallway, lounge, sitting room, kitchen, three good size bedrooms, bathroom, driveway and good size garden to the rear with summer house. Freehold. Tax Band B.
Property Oracle says ..
This three-bedroom semi-detached house in Eastham, Wirral, presents a potentially attractive option for families or first-time buyers. Its location offers proximity to well-regarded schools and a train station, enhancing convenience. The interior seems well-maintained and adequately furnished, presenting a comfortable living space. The property benefits from a garden, which adds to the appeal. However, the condition is not exceptional, presenting opportunities for the buyer to potentially upgrade to their preferences. The asking price seems relatively competitive within the neighborhood. While more specific information about square footage and comparable properties would offer a more precise valuation, the current list price appears to reflect the market reasonably. Overall, this property is suitable for buyers seeking a family home in a convenient location but willing to engage in potential cosmetic upgrades or renovations to enhance the property’s overall standard.
Therefore, we give this property 6 / 10. *Disclaimer: This is our option and does constitute a recommendation or financial advice. Do your own research. *
- Price
- 7
- Condition
- 6
- Location
- 7
- Land
- 5
- Bedrooms
- 3
- Bathrooms
- 1
- Sqft (est)
- 900.00
The heatmap indicates the level of crime in the area. The color of the heatmap indicates the crime severity and recency.
Metrics Year-on-Year
- Average area value
- 264,090.00 £Increased by 9.78 %
- Est sale value
- 241,200.00 £Increased by 12.61 %
- Average area rental value
- 795.00 £/moDecreased by 30.93 %
- Est letting value
- 0.00 £/moDecreased by 100.00 %
- Est rental Yield
- 3.61 %Decreased by 37.11 %
- Crime Rate
- 5.00 %Unchanged by 0.00 %
Agent Activity
Lesley Hooks Estate Agents created the listing.
Nearby Schools
| Name | Type | Ofsted | Distance |
|---|---|---|---|
| Heygarth Primary School | Community School | Good | 0.08 KM |
| South Wirral High School | Foundation School | Requires improvement | 0.64 KM |
| Eastham Children'S Centre | Children's Centre | 0.80 KM | |
| Millfields Church Of England (Controlled) Primary School | Voluntary Controlled School | Good | 0.80 KM |
| Raeburn Primary School | Community School | Good | 1.11 KM |
Images
Nearby Streets
| Name | Average Price | Average Sqft | Distance |
|---|---|---|---|
| Clifton Avenue | £ 197,500 | 0 | 0.00 KM |
| Harrison Close | £ 279,375 | 0 | 0.00 KM |
| Stretton Close | £ 190,000 | 0 | 0.00 KM |
| Ashton Close | £ 190,000 | 0 | 0.00 KM |
| Picton Close | £ 0 | 0 | 0.00 KM |
Nearby Transport
| Name | NLC | TLC | Distance |
|---|---|---|---|
| Eastham Rake | 2128 | ERA | 1.10 KM |
| Bromborough | 2190 | BOM | 1.65 KM |
| Hooton | 2193 | HOO | 1.94 KM |
| Bromborough Rake | 2191 | BMR | 2.43 KM |
| Spital | 2199 | SPI | 3.59 KM |
Nearby Listings
| Address | Price | Type | Score | Distance |
|---|---|---|---|---|
| Heygarth Road, Eastham | £ 240,000 | BUY | 6 / 10 | 0.00 KM |
| Heygarth Road, Eastham | £ 320,000 | BUY | 6 / 10 | 0.00 KM |
| Heygarth Road, Eastham | £ 240,000 | BUY | 6 / 10 | 0.00 KM |
| Heygarth Road, Wirral | £ 220,000 | BUY | 6 / 10 | 0.01 KM |
| Heygarth Road, Wirral, Merseyside, CH62 | £ 270,000 | BUY | 7 / 10 | 0.01 KM |
Nearby Properties
| Address | Price | Distance |
|---|---|---|
| 129 Heygarth Road | £ 83,000 | 0.01 KM |
| 143 Heygarth Road | £ 149,000 | 0.01 KM |
| 135 Heygarth Road | £ 205,000 | 0.01 KM |
| 119 Heygarth Road | £ 141,000 | 0.01 KM |
| 139 Heygarth Road | £ 156,000 | 0.01 KM |