Moss Lane, Eaton
CH

Moss Lane, Eaton

By Chris Hamriding Lettings & Estates

£ 225,000

Reviews

2 out of 5 stars

Chris Hamriding Lettings & Estates says ..

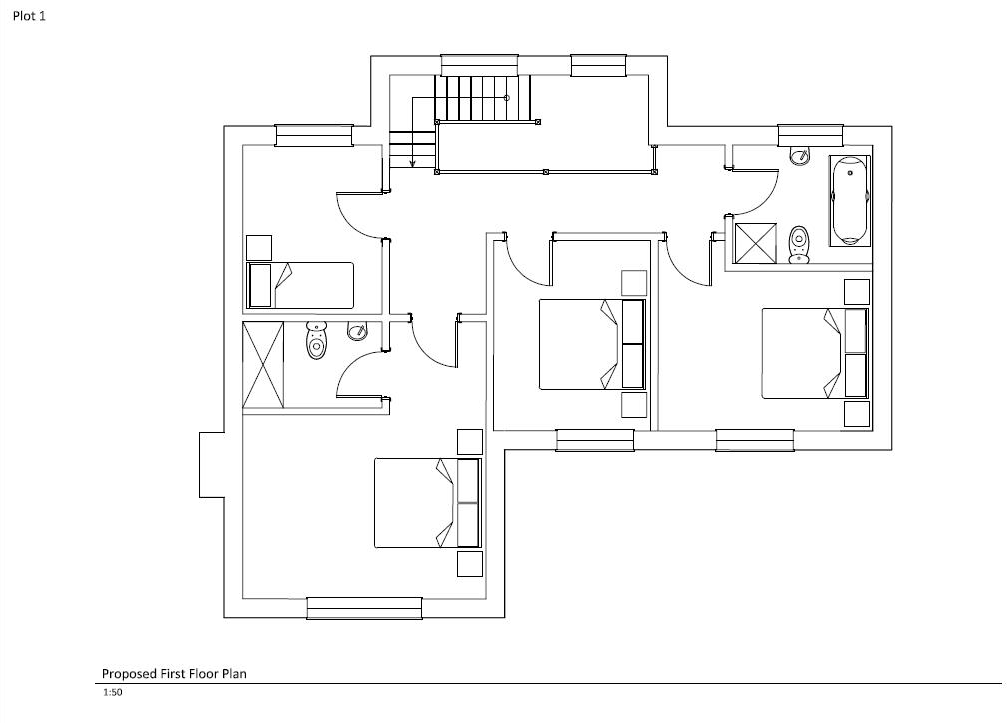
Build your dream luxury home on coveted Moss Lane, Eaton — a rare opportunity to create a bespoke 2100 sq ft residence on a peaceful, no-through country lane opposite a park, surrounded by a collection of beautiful contemporary and period homes. Nestled in the heart of charming countryside ju...

Property Oracle says ..

This is a plot of land in Gawsworth, Cheshire East, with planning permission for a detached house. The location is desirable, with good schools and transport links nearby. The property is currently land, so it requires complete construction. The price seems reasonable for a plot of land in this area, but construction costs need to be considered. The plot appears to be a good size, suitable for a family home with a garden. This property presents a unique opportunity to build a bespoke home in a sought-after location.

Therefore, we give this property 5 / 10. *Disclaimer: This is our option and does constitute a recommendation or financial advice. Do your own research. *

Price
8
Condition
1
Location
7
Land
6
Bedrooms
0
Bathrooms
0
Sqft (est)
484.00

The heatmap indicates the level of crime in the area. The color of the heatmap indicates the crime severity and recency.

Metrics Year-on-Year

Average area value
751,347.00 £
Increased by 38.02 %
from 544,390.00 £
Est sale value
241,032.00 £
Increased by 35.33 %
from 178,112.00 £
Average area rental value
1,608.00 £/mo
Increased by 29.47 %
from 1,242.00 £/mo
Est letting value
484.00 £/mo
from 0.00 £/mo
Est rental Yield
2.57 %
Decreased by 6.20 %
from 2.74 %
Crime Rate
0.00 %
from 0.00 %

Agent Activity

  • Chris Hamriding Lettings & Estates created the listing.

Nearby Schools

NameTypeOfstedDistance
Eaton Bank AcademyAcademy ConverterGood0.38 KM
Esland Congleton SchoolOther Independent Special School0.92 KM
Havannah Primary SchoolCommunity SchoolGood0.95 KM
Buglawton Primary SchoolCommunity SchoolGood1.33 KM
Cheshire Alternative Provision SchoolOther Independent SchoolRequires improvement1.68 KM

Images

DJI_20241122035619_0003_D.jpg DJI_20241122035828_0007_D.jpg Screenshot 2025-12-03 230205.png Screenshot 2025-12-03 230314.jpg DJI_20241122035701_0004_D.jpg DJI_20241122035804_0006_D.jpg DJI_20241122035732_0005_D.jpg Screenshot 2025-12-03 230140.png Screenshot 2025-12-03 230014.png Screenshot 2025-12-03 230111.png Screenshot 2025-12-03 230222.png

Nearby Streets

NameAverage PriceAverage SqftDistance
Gibbs Avenue £ 000.00 KM
Eaton Bank £ 000.00 KM
Surrey Drive £ 000.00 KM
Fairmill Grove £ 000.00 KM
Frank Kearton Avenue £ 370,00000.00 KM

Nearby Transport

NameNLCTLCDistance
Congleton1227CNG2.60 KM

Nearby Listings

AddressPriceTypeScoreDistance
Moss Lane, Eaton £ 225,000BUY5 / 100.00 KM
Aspen Close, Congleton £ 359,950BUY7 / 100.14 KM
Aspen Close, Congleton £ 369,950BUY7 / 100.14 KM
Aspen Close, Congleton £ 369,950BUY7 / 100.17 KM
Dobson Way, Congleton £ 425,000BUY7 / 100.21 KM

Nearby Properties

AddressPriceDistance
Rose Cottage £ 290,0000.15 KM
9 Whittaker Close £ 238,5000.42 KM
20 Galloway Green £ 249,9500.47 KM
51 Galloway Green £ 260,0000.47 KM
40 Galloway Green £ 287,0000.47 KM