In House says ..
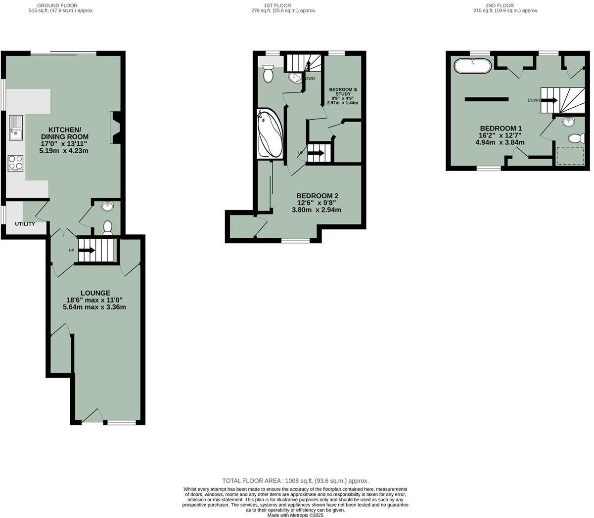
Set in the heart of town, this fabulous period home was fully refurbished in 2018 to a delightful standard. Arranged over three floors, it combines character features with stylish modern finishes and offers three bedrooms and two bathrooms. The ground floor includes a welcoming 18’ loung...
Property Oracle says ..
Therefore, we give this property 7 / 10. *Disclaimer: This is our option and does constitute a recommendation or financial advice. Do your own research. *
- Price
- 5
- Condition
- 9
- Location
- 8
- Land
- 7
- Bedrooms
- 3
- Bathrooms
- 2
- Sqft (est)
- 1,008.00
- Lot (est)
- 1,008.00
The heatmap indicates the level of crime in the area. The color of the heatmap indicates the crime severity and recency.
Metrics Year-on-Year
- Average area value
- 328,000.00 £Decreased by 34.35 %
- Est sale value
- 498,960.00 £Increased by 395.00 %
- Average area rental value
- 1,185.00 £/moDecreased by 29.00 %
- Est letting value
- 1,008.00 £/mo
- Est rental Yield
- 4.34 %Increased by 8.23 %
- Crime Rate
- 24.00 %Unchanged by 0.00 %
from 499,592.00 £
from 100,800.00 £
from 1,669.00 £/mo
from 0.00 £/mo
from 4.01 %
from 24.00 %
Agent Activity
In House created the listing.
Nearby Schools
| Name | Type | Ofsted | Distance |
|---|---|---|---|
| Wallingford School | Academy Converter | Good | 0.75 KM |
| St John'S Primary School | Academy Converter | Good | 0.80 KM |
| St Nicholas' Church Of England Infants' School And Nursery Class, Wallingford | Academy Converter | 1.23 KM | |
| Crowmarsh Gifford Church Of England School | Voluntary Controlled School | Good | 1.38 KM |
| Fir Tree Junior School | Academy Converter | 1.65 KM |
Images
Nearby Streets
| Name | Average Price | Average Sqft | Distance |
|---|---|---|---|
| St. Peter's Place | £ 1,500,000 | 0 | 0.00 KM |
| Priory Mews | £ 0 | 0 | 0.00 KM |
| Market Place | £ 0 | 0 | 0.00 KM |
| Church Lane | £ 421,650 | 0 | 0.00 KM |
| Mill Lane | £ 0 | 0 | 0.00 KM |
Nearby Transport
| Name | NLC | TLC | Distance |
|---|---|---|---|
| Cholsey | 3031 | CHO | 5.25 KM |
| Goring And Streatley | 3033 | GOR | 8.95 KM |
Nearby Listings
| Address | Price | Type | Score | Distance |
|---|---|---|---|---|
| High Street, Wallingford | £ 500,000 | BUY | 7 / 10 | 0.00 KM |
| High Street, Wallingford, OX10 | £ 850,000 | BUY | 7 / 10 | 0.03 KM |
| High Street, Wallingford | £ 210,000 | BUY | 5 / 10 | 0.07 KM |
| High Street, Wallingford, OX10 | £ 195,000 | BUY | 5 / 10 | 0.07 KM |
| High Street, Wallingford, OX10 | £ 250,000 | BUY | 6 / 10 | 0.07 KM |
Nearby Properties
| Address | Price | Distance |
|---|---|---|
| 97 High Street | £ 830,000 | 0.06 KM |
| 88a High Street | £ 206,000 | 0.06 KM |
| 101 High Street | £ 225,000 | 0.07 KM |
| 89a High Street | £ 320,000 | 0.07 KM |
| 88 High Street | £ 145,000 | 0.07 KM |