Curton Close, Edgware
TA

Curton Close, Edgware

By Taylor Hawkins Estate Agents

£ 600,000

Reviews

3 out of 5 stars

Taylor Hawkins Estate Agents says ..

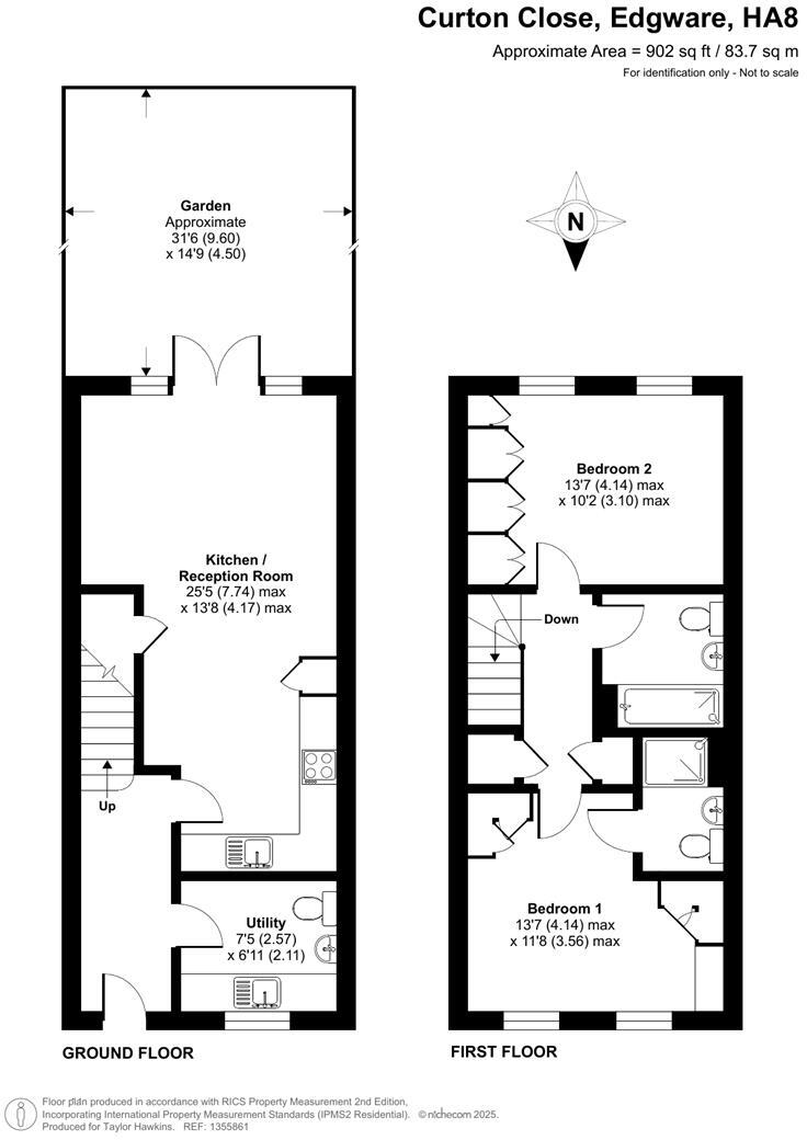
Taylor Hawkins is pleased to present this modern two-bedroom terraced house in a secure gated community. This stylish home offers bright, contemporary living with plenty of natural light throughout. On the ground floor there’s a guest WC and a separate utility room, plus ample storage.

Property Oracle says ..

This is a modern terraced house in Edgware, London. The property is in good condition and benefits from a garden. It is located close to schools and transport links, making it a desirable location for families and commuters. The property is reasonably priced compared to other properties in the area.

Therefore, we give this property 7 / 10. *Disclaimer: This is our option and does constitute a recommendation or financial advice. Do your own research. *

Price
7
Condition
9
Location
7
Land
7
Bedrooms
2
Bathrooms
2
Sqft (est)
1,139.00

The heatmap indicates the level of crime in the area. The color of the heatmap indicates the crime severity and recency.

Metrics Year-on-Year

Average area value
523,881.00 £
Decreased by 13.55 %
from 606,004.00 £
Est sale value
629,867.00 £
Increased by 12.86 %
from 558,110.00 £
Average area rental value
1,887.00 £/mo
Decreased by 11.95 %
from 2,143.00 £/mo
Est letting value
1,139.00 £/mo
Unchanged by 0.00 %
from 1,139.00 £/mo
Est rental Yield
4.32 %
Increased by 1.89 %
from 4.24 %
Crime Rate
5.00 %
Unchanged by 0.00 %
from 5.00 %

Agent Activity

  • Taylor Hawkins Estate Agents created the listing.

Nearby Schools

NameTypeOfstedDistance
Broadfields Primary SchoolAcademy ConverterGood0.33 KM
Rosh Pinah Additional Resource ProvisionOther Independent Special School0.68 KM
Rosh Pinah Primary SchoolVoluntary Aided SchoolGood0.71 KM
Holland House SchoolOther Independent School0.88 KM
Beit Shvidler Primary SchoolVoluntary Aided SchoolGood1.39 KM

Images

1355861-11-68cbe79f202e5.jpg 1355861-15-68cbe7f6d8c90.jpg 1355861-12-68cbe7b7378c3.jpg 1355861-10-68cbe786a08a1.jpg 1355861-9-68cbe773aa99b.jpg 1355861-6-68cbe751ebe10.jpg 1355861-5-68cbe740b888f.jpg 1355861-1-68cbe4aa04dbb.jpg 1355861-2-68cbe5d5766dd.jpg 1355861-3-68cbe60f5c70e.jpg 1355861-4-68cbe6549260e.jpg 1355861-8-68cbe767adc26.jpg 1355861-22-68cbe85a07742.jpg 1355861-17-68cbe80355c1f.jpg 1355861-20-68cbe83b45948.jpg 1355861-18-68cbe8076264f.jpg 1355861-21-68cbe84fe9567.jpg 1355861-16-68cbe7fc7ef97.jpg 1355861-13-68cbe7d0ebbad.jpg

Nearby Streets

NameAverage PriceAverage SqftDistance
Clay Lane £ 000.00 KM
Crossgate £ 000.00 KM
Mowbray Parade £ 199,95000.00 KM
Hurstmere Court £ 900,00000.00 KM
M1 £ 000.00 KM

Nearby Transport

NameNLCTLCDistance
Elstree And Borehamwood1542ELS2.66 KM
Mill Hill Broadway1527MIL3.53 KM
Hendon1522HEN6.91 KM
Kenton1399KNT6.93 KM
South Kenton1453SOK7.47 KM

Nearby Listings

AddressPriceTypeScoreDistance
Curton Close, Edgware £ 600,000BUY7 / 100.00 KM
Curton Close, Edgware £ 600,000BUY7 / 100.00 KM
Close, Edgware, Middlesex, HA8 £ 417,950BUYUnknown0.08 KM
Curton Close, Edgware, HA8 £ 425,000BUYUnknown0.10 KM
Curton Close, Edgware, HA8 £ 80,000BUY6 / 100.10 KM

Nearby Properties

AddressPriceDistance
5 Hartland Close £ 450,0000.08 KM
1 Hartland Close £ 740,0000.08 KM
3 Hartland Close £ 725,0000.10 KM
4 Hartland Close £ 1,125,0000.10 KM
68 Hartland Drive £ 548,5000.10 KM