eXp UK says ..
Spacious modern family home with open-plan living, south-facing garden and double garage, all just moments from the coast and Reculver’s stunning countryside. Please Quote JV0094
Property Oracle says ..
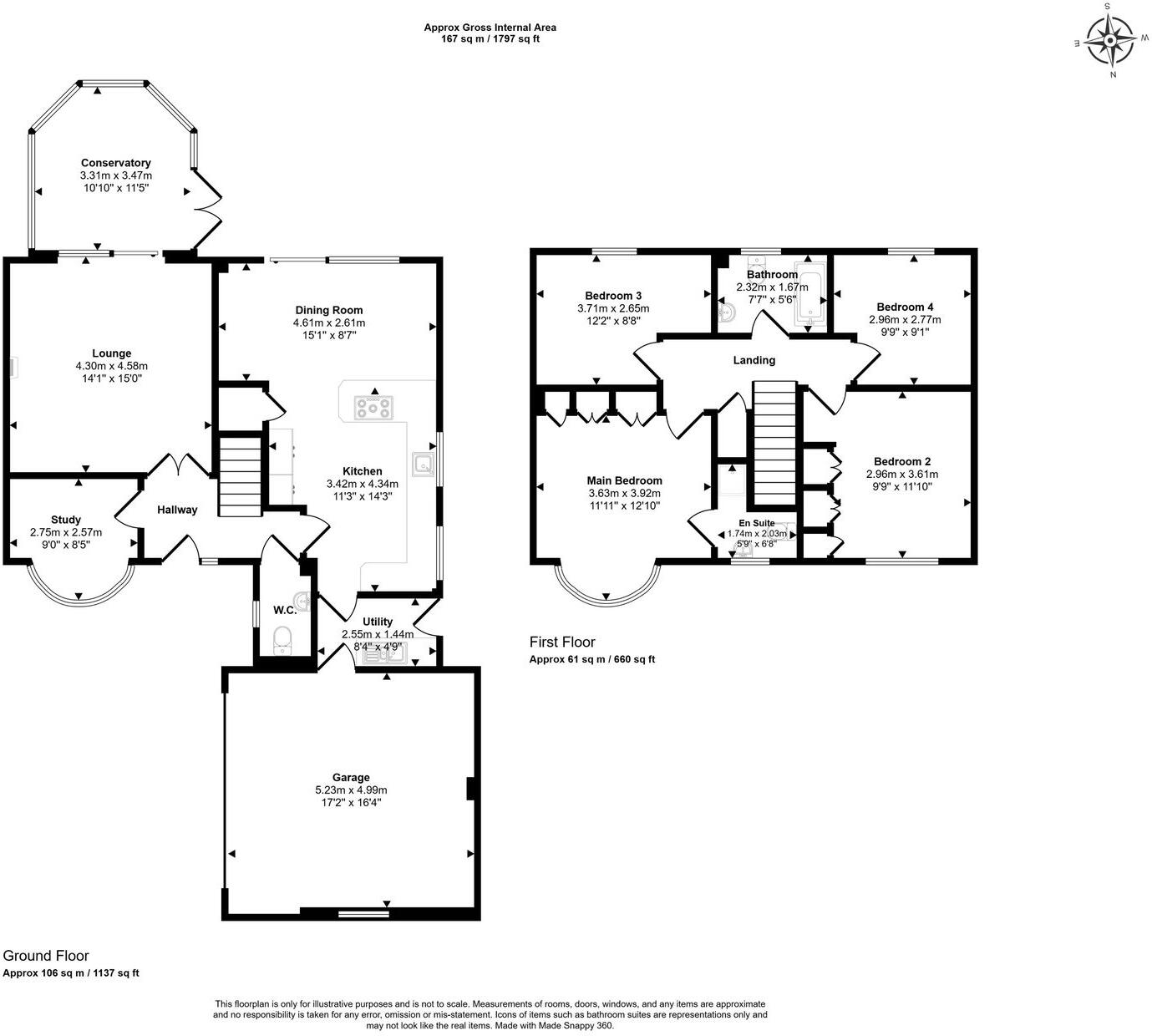
This is a detached property in Petrel Close, Herne Bay, with 4 bedrooms and 3 bathrooms. It has a modern kitchen, a conservatory, and a good-sized garden. The property is in good condition and benefits from off-street parking and a garage. Reculver Church Of England Primary School is nearby and has an outstanding Ofsted rating. Herne Bay station is 5.59 KM away. The property is listed for 550,000, which is above the average price for the area but reflects the property’s size and condition.
Therefore, we give this property 7 / 10. *Disclaimer: This is our option and does constitute a recommendation or financial advice. Do your own research. *
- Price
- 6
- Condition
- 8
- Location
- 7
- Land
- 7
- Bedrooms
- 4
- Bathrooms
- 3
- Sqft (est)
- 1,563.03
The heatmap indicates the level of crime in the area. The color of the heatmap indicates the crime severity and recency.
Metrics Year-on-Year
- Average area value
- 277,995.00 £Increased by 12.95 %
- Est sale value
- 395,446.59 £Decreased by 3.44 %
- Average area rental value
- 1,080.00 £/moDecreased by 3.91 %
- Est letting value
- 0.00 £/moDecreased by 100.00 %
- Est rental Yield
- 4.66 %Decreased by 14.96 %
- Crime Rate
- 20.00 %Unchanged by 0.00 %
Agent Activity
eXp UK created the listing.
Nearby Schools
| Name | Type | Ofsted | Distance |
|---|---|---|---|
| Reculver Church Of England Primary School | Academy Sponsor Led | Outstanding | 0.81 KM |
| Hoath Primary School | Community School | Good | 3.54 KM |
| Herne Church Of England Infant And Nursery School | Voluntary Controlled School | Outstanding | 3.76 KM |
| Herne Church Of England Junior School | Voluntary Aided School | Outstanding | 4.04 KM |
| Herne Bay Junior School | Foundation School | Good | 4.32 KM |
Images
Nearby Streets
| Name | Average Price | Average Sqft | Distance |
|---|---|---|---|
| Hogweed Way | £ 0 | 0 | 0.00 KM |
| Buttercup Walk | £ 0 | 0 | 0.00 KM |
| Reculver Road | £ 460,000 | 0 | 0.00 KM |
| Campion Avenue | £ 0 | 0 | 0.00 KM |
| Sycamore Close | £ 575,000 | 0 | 0.00 KM |
Nearby Transport
| Name | NLC | TLC | Distance |
|---|---|---|---|
| Herne Bay | 5174 | HNB | 5.59 KM |
| Sturry | 5029 | STU | 8.94 KM |
Nearby Listings
| Address | Price | Type | Score | Distance |
|---|---|---|---|---|
| Petrel Close, Herne Bay | £ 550,000 | BUY | 7 / 10 | 0.00 KM |
| Petrel Close, Herne Bay, CT6 6NT | £ 450,000 | BUY | 6 / 10 | 0.07 KM |
| Petrel Close, Herne Bay | £ 440,000 | BUY | 7 / 10 | 0.07 KM |
| Puffin Road, Herne Bay, CT6 | £ 132,500 | BUY | 7 / 10 | 0.08 KM |
| Petrel Close, Herne Bay, CT6 6NT | £ 525,000 | BUY | 7 / 10 | 0.10 KM |
Nearby Properties
| Address | Price | Distance |
|---|---|---|
| 29 Petrel Close | £ 245,000 | 0.01 KM |
| 28 Petrel Close | £ 450,000 | 0.01 KM |
| 24 Petrel Close | £ 372,000 | 0.01 KM |
| 5 Petrel Close | £ 330,000 | 0.01 KM |
| 23 Petrel Close | £ 327,000 | 0.01 KM |