Kitts Moss Lane, Bramhall, SK7
By Leighton Snow
£ 800,000
Reviews
3 out of 5 stars
Leighton Snow says ..
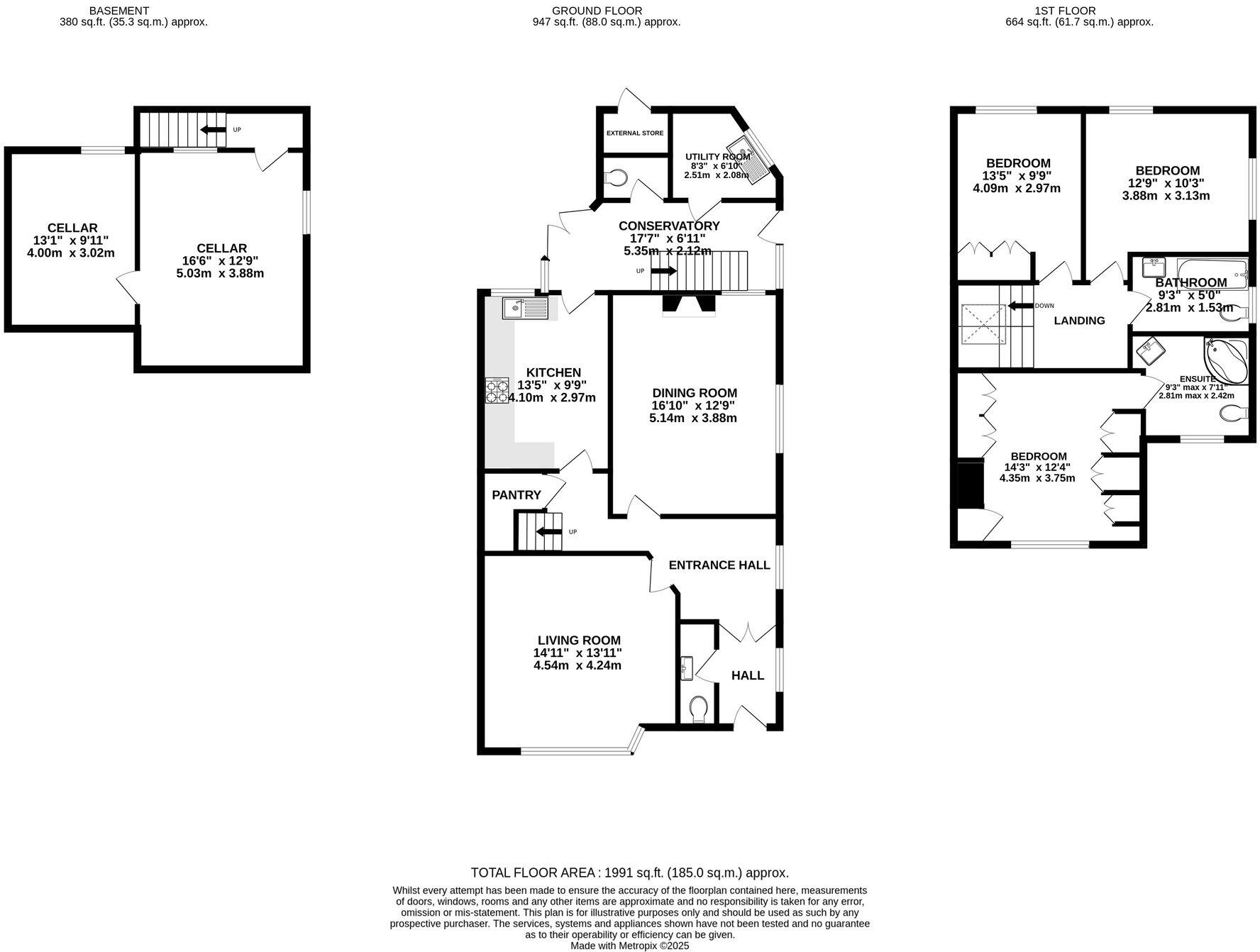
A magnificent property dating back to 1901, boasting a wealth of charm and character. Offering all the period details you would come to expect of a home dating back over a hundred years such as high ceilings, generous room proportions, fireplaces, cornicing and stained glass windows. This has b...
Property Oracle says ..
This is a large, detached period property located in the desirable area of Bramhall. The house offers spacious accommodation with three bedrooms and two bathrooms. The property benefits from a good-sized garden and off-street parking. While the property is in reasonable condition, it would benefit from some modernisation. Bramhall is a sought-after residential area with excellent schools, transport links, and local amenities. The property is conveniently located close to Bramhall train station, providing easy access to Manchester and other major cities. Overall, this property presents a good opportunity for buyers looking for a spacious family home in a prime location, with the potential to add value through modernisation.
Therefore, we give this property 7 / 10. *Disclaimer: This is our option and does constitute a recommendation or financial advice. Do your own research. *
- Price
- 7
- Condition
- 6
- Location
- 8
- Land
- 7
- Bedrooms
- 3
- Bathrooms
- 2
- Sqft (est)
- 1,991.00
The heatmap indicates the level of crime in the area. The color of the heatmap indicates the crime severity and recency.
Metrics Year-on-Year
- Average area value
- 646,429.00 £Increased by 3.01 %
- Est sale value
- 935,770.00 £Increased by 44.62 %
- Average area rental value
- 2,000.00 £/moDecreased by 6.06 %
- Est letting value
- 1,991.00 £/moUnchanged by 0.00 %
- Est rental Yield
- 3.71 %Decreased by 8.85 %
- Crime Rate
- 0.00 %
Agent Activity
Leighton Snow created the listing.
Nearby Schools
| Name | Type | Ofsted | Distance |
|---|---|---|---|
| Moss Hey Primary School | Community School | Good | 0.97 KM |
| Hursthead Junior School | Academy Converter | Good | 1.09 KM |
| Hursthead Infant School | Community School | Outstanding | 1.09 KM |
| Valley School | Community Special School | Outstanding | 1.12 KM |
| Pownall Green Primary School | Community School | Outstanding | 1.21 KM |
Images
Nearby Streets
| Name | Average Price | Average Sqft | Distance |
|---|---|---|---|
| Holland Park | £ 925,000 | 0 | 0.00 KM |
| Cromwell Road | £ 0 | 0 | 0.00 KM |
| Stoke Abbott Close | £ 0 | 0 | 0.00 KM |
| Park Avenue | £ 0 | 0 | 0.00 KM |
| Oak Drive | £ 672,500 | 0 | 0.00 KM |
Nearby Transport
| Name | NLC | TLC | Distance |
|---|---|---|---|
| Bramhall | 2944 | BML | 0.78 KM |
| Cheadle Hulme | 2870 | CHU | 2.59 KM |
| Davenport | 2770 | DVN | 3.89 KM |
| Poynton | 2874 | PYT | 4.16 KM |
| Woodsmoor | 2773 | WSR | 4.27 KM |
Nearby Listings
| Address | Price | Type | Score | Distance |
|---|---|---|---|---|
| Kitts Moss Lane, Bramhall, SK7 | £ 800,000 | BUY | 7 / 10 | 0.00 KM |
| Kitts Moss Lane, Bramhall, SK7 | £ 850,000 | BUY | Unknown | 0.03 KM |
| Fairway, Bramhall | £ 550,000 | BUY | 7 / 10 | 0.10 KM |
| Ack Lane East, Bramhall, SK7 | £ 795,000 | BUY | Unknown | 0.13 KM |
| Victoria Way, Bramhall | £ 665,000 | BUY | 7 / 10 | 0.16 KM |
Nearby Properties
| Address | Price | Distance |
|---|---|---|
| 8 Kitts Moss Lane | £ 422,000 | 0.05 KM |
| 31a Kitts Moss Lane | £ 232,000 | 0.05 KM |
| 27 Kitts Moss Lane | £ 420,000 | 0.05 KM |
| 19 Kitts Moss Lane | £ 475,000 | 0.05 KM |
| 14 Kitts Moss Lane | £ 760,000 | 0.05 KM |