Warrington Road, Ince, Wigan
By T Fazakerley & Son
£ 50,000
Reviews
2 out of 5 stars
T Fazakerley & Son says ..
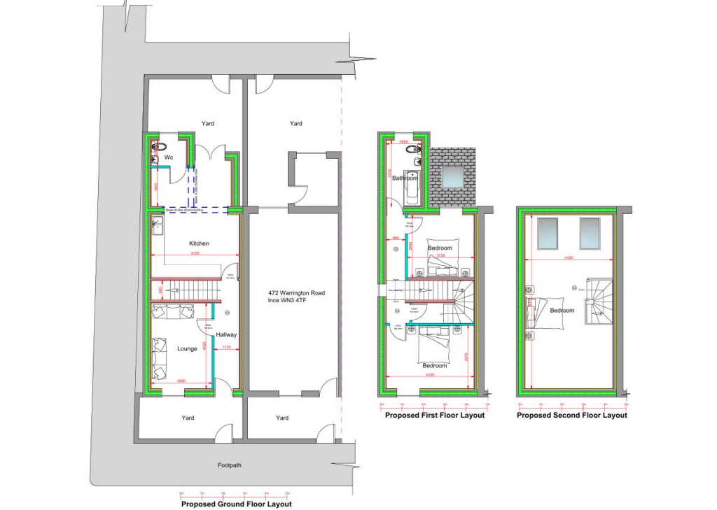
Located on Warrington Road in the charming area of Ince, Wigan, this property presents a unique opportunity for those looking to invest in a residential plot of land. Spanning approximately 970 square feet, this site comes with full planning permission, allowing for the development of a house tai...
Property Oracle says ..
The property is a plot of land on Warrington Road in Ince, Wigan. It is being offered at a significantly lower price than other properties in the area, reflecting its current condition and the need for complete construction. The location offers reasonable access to local amenities, schools, and transport links, although it may be subject to traffic noise. The plot size appears adequate for a small residential property with a yard. This property represents a development opportunity for someone willing to invest in building a new home.
Therefore, we give this property 5 / 10. *Disclaimer: This is our option and does constitute a recommendation or financial advice. Do your own research. *
- Price
- 9
- Condition
- 1
- Location
- 5
- Land
- 6
- Bedrooms
- 0
- Bathrooms
- 0
The heatmap indicates the level of crime in the area. The color of the heatmap indicates the crime severity and recency.
Metrics Year-on-Year
- Average area value
- 169,995.00 £Increased by 0.86 %
- Average area rental value
- 909.00 £/moIncreased by 14.34 %
- Est rental Yield
- 6.42 %Increased by 13.43 %
- Crime Rate
- 0.00 %
Agent Activity
T Fazakerley & Son created the listing.
Nearby Schools
| Name | Type | Ofsted | Distance |
|---|---|---|---|
| Newbridge Learning Community | Community Special School | Good | 1.16 KM |
| St Mary'S Cofe Primary School | Voluntary Controlled School | Good | 1.22 KM |
| Holy Family Catholic Primary School Platt Bridge | Voluntary Aided School | Good | 1.48 KM |
| Platt Bridge Sure Start Children'S Centre | Children's Centre | 1.58 KM | |
| Platt Bridge Community School | Academy Converter | Outstanding | 1.58 KM |
Images
Nearby Streets
| Name | Average Price | Average Sqft | Distance |
|---|---|---|---|
| Darnhall Street | £ 0 | 0 | 0.00 KM |
| Taylor's Lane | £ 110,000 | 0 | 0.00 KM |
| Chatsworth Avenue | £ 0 | 0 | 0.00 KM |
| Roeburn Close | £ 0 | 0 | 0.00 KM |
| Gilpin Place | £ 0 | 0 | 0.00 KM |
Nearby Transport
| Name | NLC | TLC | Distance |
|---|---|---|---|
| Ince (Manchester) | 2236 | INC | 1.39 KM |
| Wigan North Western | 2363 | WGN | 3.24 KM |
| Wigan Wallgate | 2406 | WGW | 3.31 KM |
| Hindley | 2398 | HIN | 4.15 KM |
| Bryn | 2222 | BYN | 5.12 KM |
Nearby Listings
| Address | Price | Type | Score | Distance |
|---|---|---|---|---|
| Warrington Road, Ince, Wigan | £ 50,000 | BUY | 5 / 10 | 0.00 KM |
| 543 Warrington Road, Ince, Wigan, Lancashire, WN3 4TB | £ 110,000 | BUY | Unknown | 0.06 KM |
| Warrington Road, Springview, Wigan, WN3 4TF | £ 120,000 | BUY | 6 / 10 | 0.06 KM |
| Warrington Road, Wigan, WN3 | £ 120,000 | BUY | Unknown | 0.11 KM |
| Warrington Road, Ince-in-Makerfield, Wigan WN3 4TB | £ 180,000 | BUY | Unknown | 0.11 KM |
Nearby Properties
| Address | Price | Distance |
|---|---|---|
| 1 Crompton Street | £ 102,950 | 0.05 KM |
| 8 Crompton Street | £ 31,000 | 0.05 KM |
| 4 Crompton Street | £ 67,000 | 0.05 KM |
| 2 Crompton Street | £ 59,995 | 0.05 KM |
| 92 Hey Street | £ 27,000 | 0.10 KM |