Larkfield Close, Caerleon, NP18
By Number One Real Estate
£ 425,000
Reviews
3 out of 5 stars
Number One Real Estate says ..
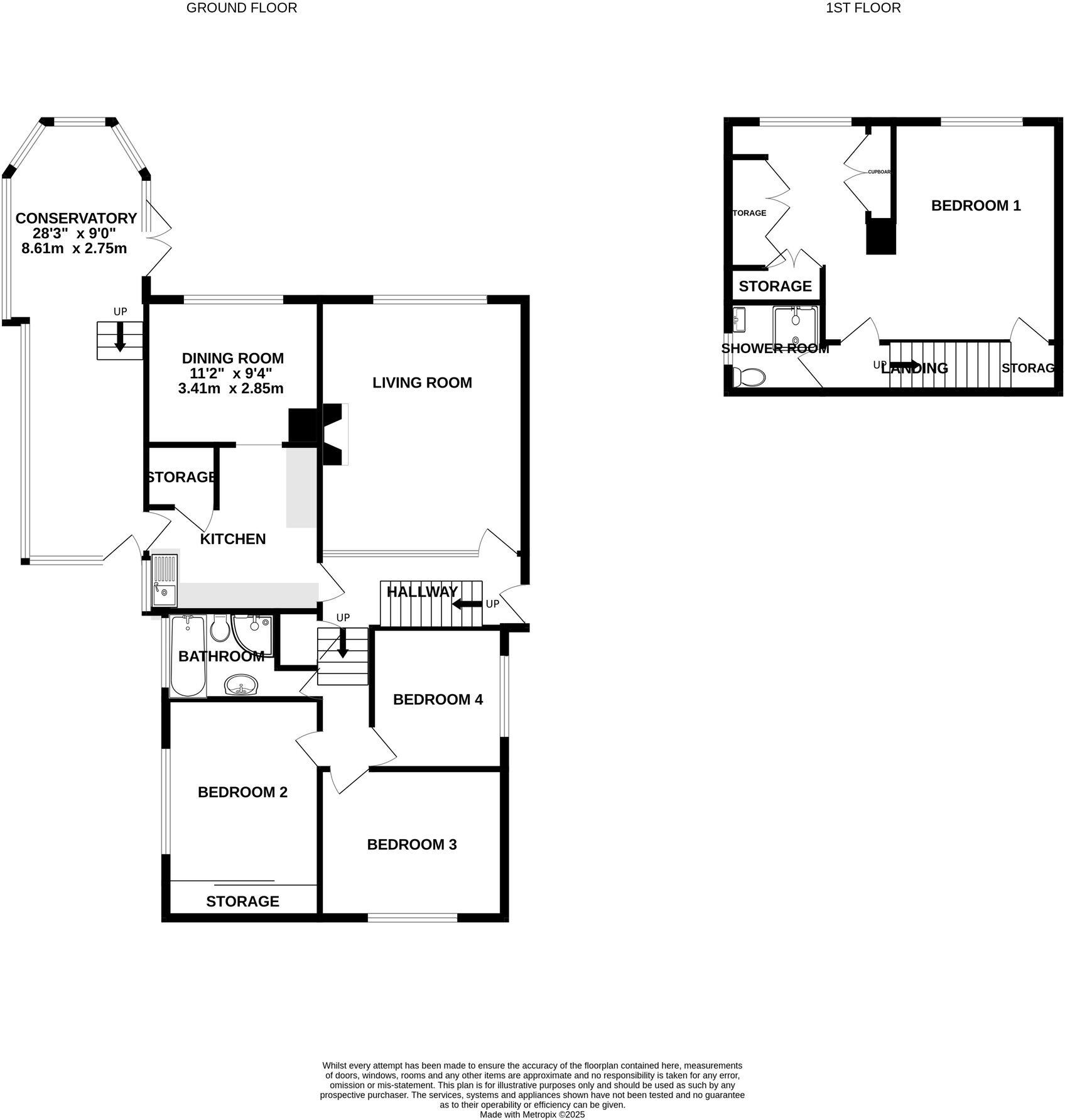
**GUIDE PRICE £425,000-£450,000**DETACHED DORMER BUNGALOW**FOUR BEDROOMS**WELL PRESENTED**EXTENSIVE CONSERVATORY**GARDEN**DRIVEWAY**GARAGE**OUTBUILDING**TWO BATHROOMS**
Property Oracle says ..
This four-bedroom, two-bathroom property located in Larkfield Close, Caerleon offers a blend of modern updates and a desirable location. The interior has clearly undergone recent renovations, featuring a modern kitchen, stylish bathrooms, and fresh decor throughout. The open-plan living area and conservatory extend the living space, providing ample room for family living. The property benefits from a garden, though its precise size is not specified. The location in Caerleon offers a balance between a peaceful residential setting and proximity to amenities and transport links. Nearby schools are a definite plus for families. While the lack of precise square footage data on comparable properties makes a definitive price-per-square-foot analysis impossible, the asking price appears to be in line with the market for similar properties in the area. Overall, this property presents a well-maintained and updated home in a popular location, making it an attractive option for potential buyers.
Therefore, we give this property 7 / 10. *Disclaimer: This is our option and does constitute a recommendation or financial advice. Do your own research. *
- Price
- 7
- Condition
- 8
- Location
- 7
- Land
- 6
- Bedrooms
- 4
- Bathrooms
- 2
- Sqft (est)
- 997.49
The heatmap indicates the level of crime in the area. The color of the heatmap indicates the crime severity and recency.
Metrics Year-on-Year
- Average area value
- 360,833.00 £Decreased by 13.57 %
- Est sale value
- 350,118.99 £Decreased by 9.07 %
- Average area rental value
- 1,178.00 £/moIncreased by 8.17 %
- Est letting value
- 997.49 £/moUnchanged by 0.00 %
- Est rental Yield
- 3.92 %Increased by 25.24 %
- Crime Rate
- 21.00 %Unchanged by 0.00 %
Agent Activity
Number One Real Estate created the listing.
Nearby Schools
| Name | Type | Ofsted | Distance |
|---|---|---|---|
| Ysgol Gymraeg Nant Gwenlli | Welsh Establishment | 0.28 KM | |
| Caerleon Comprehensive School | Welsh Establishment | 1.41 KM | |
| Ponthir Church In Wales School | Welsh Establishment | 1.94 KM | |
| St Julian'S School | Welsh Establishment | 2.14 KM | |
| St Joseph'S R.C. Primary School | Welsh Establishment | 3.12 KM |
Images
Nearby Streets
| Name | Average Price | Average Sqft | Distance |
|---|---|---|---|
| Fairfield Close | £ 315,000 | 0 | 0.00 KM |
| Caradog Close | £ 0 | 0 | 0.00 KM |
| Fairfield Road | £ 313,333 | 0 | 0.00 KM |
| Eastfield Drive | £ 360,000 | 0 | 0.00 KM |
| Highfield Road | £ 0 | 0 | 0.00 KM |
Nearby Transport
| Name | NLC | TLC | Distance |
|---|---|---|---|
| Newport (South Wales) | 3674 | NWP | 4.80 KM |
| Cwmbran | 3738 | CWM | 6.67 KM |
| Pye Corner | 1663 | PYE | 8.71 KM |
Nearby Listings
| Address | Price | Type | Score | Distance |
|---|---|---|---|---|
| Larkfield Close, Caerleon, NP18 | £ 425,000 | BUY | 7 / 10 | 0.00 KM |
| Anthony Drive, Caerleon, NP18 | £ 290,000 | BUY | Unknown | 0.12 KM |
| Anthony Drive, Caerleon, NP18 | £ 300,000 | BUY | 6 / 10 | 0.12 KM |
| Anthony Drive, Caerleon, Newport. NP18 3DX | £ 125,000 | BUY | 4 / 10 | 0.12 KM |
| Anthony Drive, Caerleon, Newport, NP18 | £ 300,000 | BUY | 7 / 10 | 0.12 KM |
Nearby Properties
| Address | Price | Distance |
|---|---|---|
| 13 Larkfield Close | £ 172,500 | 0.01 KM |
| 32 Larkfield Close | £ 225,000 | 0.01 KM |
| 33 Larkfield Close | £ 145,000 | 0.01 KM |
| 14 Larkfield Close | £ 155,000 | 0.01 KM |
| 20 Larkfield Close | £ 345,000 | 0.01 KM |