Rushleigh Avenue, Middlesbrough
By Clarke Munro
£ 250,000
Reviews
3 out of 5 stars
Clarke Munro says ..
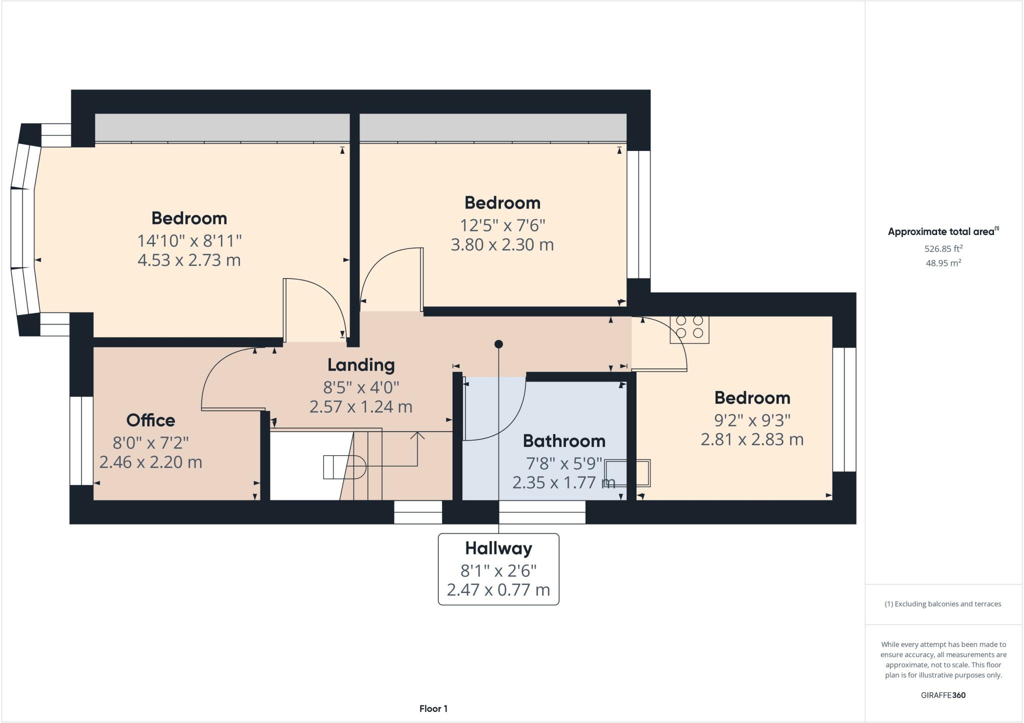
Clarke Munro welcome to the market this beautifully presented, extended semi-detached house which is positioned in a quiet cul de sac location. Sitting on a south facing plot, this spcious family home comprises entrance hall, front lounge, rear sitting/dining room, conservatory and 18ft breakfa...
Property Oracle says ..
This four-bedroom semi-detached house located on Rushleigh Avenue in Middlesbrough’s Kader area presents a compelling proposition for buyers. The property benefits from a desirable family-friendly location, close to well-regarded schools and several transport links. The interior is well-maintained with updated kitchen and what appears to be a recently-modernised bathroom. The presence of a conservatory and a garden further adds to the property’s appeal. While some elements, such as the carpets, could be considered dated by some buyers, they do not detract significantly from the overall good condition of the property. The presence of a garden provides a desirable outdoor space. Although precise plot size isn’t provided, the images suggest sufficient space for family use. The list price of £250,000 appears to be within the range of comparable properties in the area, making this a reasonable asking price. Potential buyers should carefully consider the overall desirability of Middlesbrough as a location and whether the property’s interior styling aligns with their preferences.
Therefore, we give this property 6 / 10. *Disclaimer: This is our option and does constitute a recommendation or financial advice. Do your own research. *
- Price
- 7
- Condition
- 7
- Location
- 7
- Land
- 6
- Bedrooms
- 4
- Bathrooms
- 1
- Sqft (est)
- 1,165.30
The heatmap indicates the level of crime in the area. The color of the heatmap indicates the crime severity and recency.
Metrics Year-on-Year
- Average area value
- 243,000.00 £Increased by 6.92 %
- Est sale value
- 250,539.50 £Decreased by 7.33 %
- Average area rental value
- 600.00 £/moDecreased by 36.71 %
- Est letting value
- 0.00 £/mo
- Est rental Yield
- 2.96 %Decreased by 40.92 %
- Crime Rate
- 12.00 %Unchanged by 0.00 %
Agent Activity
Clarke Munro created the listing.
Nearby Schools
| Name | Type | Ofsted | Distance |
|---|---|---|---|
| Acklam Grange School | Academy Converter | 0.31 KM | |
| Kader Academy | Academy Converter | Good | 0.80 KM |
| Whinney Banks Primary School | Community School | Good | 1.01 KM |
| Acklam Whin Primary School | Foundation School | Good | 1.07 KM |
| West Middlesbrough Children'S Centre | Children's Centre | 1.07 KM |
Images
Nearby Streets
| Name | Average Price | Average Sqft | Distance |
|---|---|---|---|
| Ruskin Avenue | £ 246,000 | 0 | 0.00 KM |
| Grasmere Avenue | £ 0 | 0 | 0.00 KM |
| Heythrop Drive | £ 0 | 0 | 0.00 KM |
| Church Drive | £ 364,975 | 0 | 0.00 KM |
| School Avenue | £ 0 | 0 | 0.00 KM |
Nearby Transport
| Name | NLC | TLC | Distance |
|---|---|---|---|
| Thornaby | 7976 | TBY | 4.71 KM |
| Middlesbrough | 7929 | MBR | 4.77 KM |
| James Cook University Hospital | 9507 | JCH | 5.87 KM |
| Stockton | 7975 | STK | 6.90 KM |
| Marton | 7947 | MTO | 6.93 KM |
Nearby Listings
| Address | Price | Type | Score | Distance |
|---|---|---|---|---|
| Rushleigh Avenue, Middlesbrough | £ 250,000 | BUY | 6 / 10 | 0.00 KM |
| Wordsworth Vale, Acklam | £ 190,000 | BUY | Unknown | 0.06 KM |
| Ruskin Avenue, Middlesbrough | £ 215,000 | BUY | 6 / 10 | 0.08 KM |
| Ruskin Avenue, Acklam, Middlesbrough, TS5 8PJ | £ 230,000 | BUY | 7 / 10 | 0.11 KM |
| Wordsworth Vale, Acklam | £ 215,000 | BUY | 7 / 10 | 0.12 KM |
Nearby Properties
| Address | Price | Distance |
|---|---|---|
| 28 Rushleigh Avenue | £ 155,000 | 0.01 KM |
| 20 Rushleigh Avenue | £ 185,000 | 0.01 KM |
| 27 Rushleigh Avenue | £ 215,000 | 0.01 KM |
| 22 Rushleigh Avenue | £ 158,000 | 0.01 KM |
| 16 Rushleigh Avenue | £ 170,000 | 0.01 KM |