Roman Apartments, Silesia Buildings, Hackney
WI

Roman Apartments, Silesia Buildings, Hackney

By Wild & Co.

£ 575,000

Reviews

2 out of 5 stars

Wild & Co. says ..

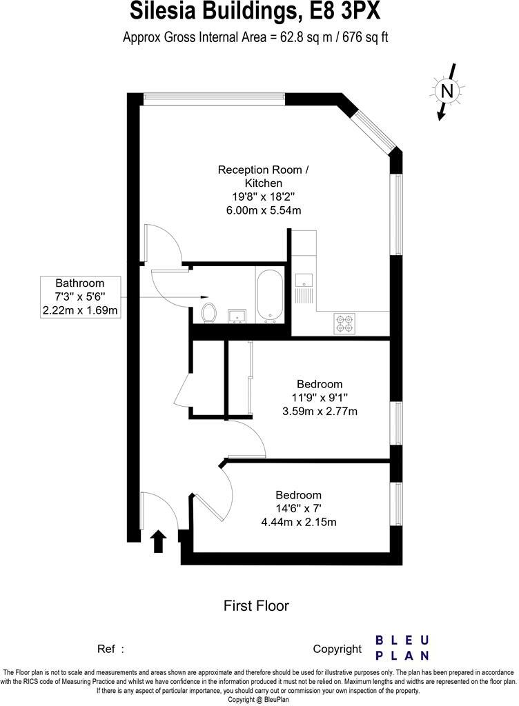
An exceptionally well presented contemporary purpose built apartment in the sought after London Fields environs, well located for the amazing variety of independant and multi national retailers shops and businesses on Mare Street, including the famous Hackney Empire theater, restaurants, cafes an...

Property Oracle says ..

This is a two-bedroom flat in the London Fields area of Hackney. The property appears to be in good condition, with a modern kitchen and bathroom. It benefits from its location, being close to transportation and schools. The asking price seems reasonable when compared to the average price per square foot in the area, but it’s worth noting that similar properties may be available at slightly lower prices. The lack of private outdoor space is a drawback, but the location may compensate for this.

Therefore, we give this property 5 / 10. *Disclaimer: This is our option and does constitute a recommendation or financial advice. Do your own research. *

Price
6
Condition
7
Location
7
Land
3
Bedrooms
2
Bathrooms
1
Sqft (est)
130.78

The heatmap indicates the level of crime in the area. The color of the heatmap indicates the crime severity and recency.

Metrics Year-on-Year

Average area value
832,500.00 £
Increased by 1.06 %
from 823,749.00 £
Est sale value
160,074.72 £
Increased by 33.04 %
from 120,317.60 £
Average area rental value
2,762.00 £/mo
Increased by 20.56 %
from 2,291.00 £/mo
Est letting value
523.12 £/mo
Increased by 100.00 %
from 261.56 £/mo
Est rental Yield
3.98 %
Increased by 19.16 %
from 3.34 %
Crime Rate
7.00 %
Unchanged by 0.00 %
from 7.00 %

Agent Activity

  • Wild & Co. created the listing.

Nearby Schools

NameTypeOfstedDistance
The Urswick School - A Church Of England Secondary SchoolVoluntary Aided SchoolGood0.39 KM
Ann Tayler Children'S CentreChildren's Centre0.47 KM
St John Of Jerusalem Church Of England Primary SchoolVoluntary Aided SchoolGood0.64 KM
London Fields Primary SchoolCommunity SchoolOutstanding0.66 KM
Orchard Primary SchoolCommunity SchoolOutstanding0.74 KM

Images

, Roman Apartments - NsyjmQSnP8WNC9uTpZma.jpg Roman Apartments - 0NlvdoNdYFpnshVbkiPW.jpg , Roman Apartments - K3HUaD5dF7JuBE3fno4o.jpg , Roman Apartments - GLhGrJqYZ2imFIrmnAv3.jpg Roman Apartments - 6pZis4zPBD1l5LHolX9n.jpg Roman Apartments - aFtR1OfBcxh40OyWBno1.jpg Roman Apartments - cEApl8hIqaRarJs90Q6j.jpg Roman Apartments - MDPyumgUe7pKN6vsxEAb.jpg , Roman Apartments - u6hasCOFGCJ8Ye3cQ2M4.jpg Roman Apartments - j1p5BuAhUgpdDbOQ2T4F.jpg Roman Apartments - pXaURWjMYYqRcSnXwInW.jpg Roman Apartments - FamDcHwJNhS7HlUQsK7q.jpg Flat 2, Roman Apartments - pu55e8g70gAtnrxPaAcR.jp Flat 2, Roman Apartments - bZ6OdQfTvBreCCU7ZHn7.jp Flat 2, Roman Apartments - C7trt6Jion5reHhnm0gZ.jp Roman Apartments - FWEq2IdHzzNxCj5F3nQ4.jpg , Roman Apartments - Ja2nmPAf8Di5RTP5zihg.jpg Roman Apartments - HThJBLC2L0DkelTT350G.jpg Roman Apartments - GpfYfNyxzfiM4IJfYZVX.jpg Roman Apartments - HjF9DChAzNkancbaUFjC.jpg Roman Apartments - ZSLsmpDThxgXPH7lJDkg.jpg

Nearby Streets

NameAverage PriceAverage SqftDistance
St Thomas's Square £ 000.00 KM
Saint Thomas's Square £ 370,00000.00 KM
Elizabeth Fry Road £ 000.00 KM
St. Thomas's Square £ 000.00 KM
Florfield Road £ 550,00000.00 KM

Nearby Transport

NameNLCTLCDistance
London Fields6966LOF0.22 KM
Hackney Central6977HKC0.63 KM
Hackney Downs6867HAC0.98 KM
Cambridge Heath6962CBH1.07 KM
Homerton6979HMN1.60 KM

Nearby Listings

AddressPriceTypeScoreDistance
Roman Apartments, Silesia Buildings, Hackney £ 575,000BUY5 / 100.00 KM
London Lane, London, E8 £ 1,295,000BUY6 / 100.06 KM
London Lane, London Fields, E8 £ 1,355,000BUY6 / 100.06 KM
London Lane, London, E8 £ 800,000BUY8 / 100.06 KM
32 London Lane, London Fields £ 700,000BUY7 / 100.07 KM

Nearby Properties

AddressPriceDistance
21 London Lane £ 125,0000.06 KM
16 London Lane £ 1,060,0000.06 KM
218a Mare Street £ 381,5000.09 KM
210 Mare Street £ 670,0000.09 KM
5 Ellingfort Road £ 1,040,0000.14 KM