Ashdown Road, Worthing, BN11
By Coast and Country Real Estate
£ 300,000
Reviews
2 out of 5 stars
Coast and Country Real Estate says ..
***OPEN DAY 9AM - 11AM SATURDAY 5TH APRIL*** A great opportunity to purchase this end of terrace house that requires complete renovation and modernisation throughout. Set a little over 500 yards to Worthing town centre and Worthing Hospital
Property Oracle says ..
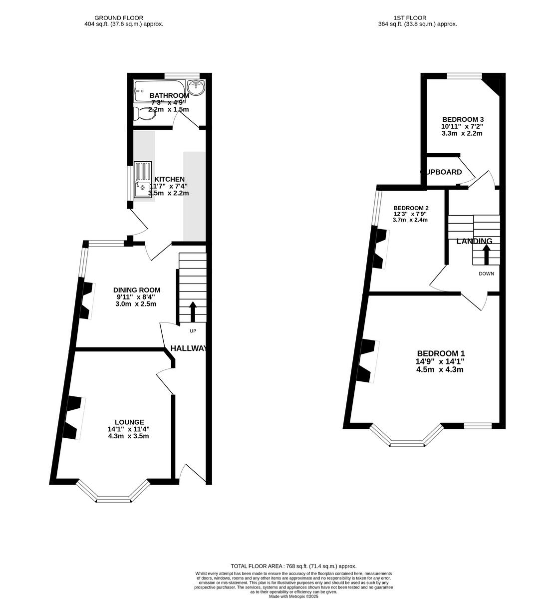
This property is located in Worthing, West Sussex, and is a three-bedroom end of terrace house with one bathroom. The list price is £300,000, and the property is 706 sqft on a 768 sqft plot. The average house price in the area is £259,400, with an average price per sqft of £308. The property is in need of significant renovation, as evidenced by the provided images. The location is central, with nearby transportation links and schools. However, the condition of the property significantly impacts its value. The small garden is overgrown but present. Given the extensive renovations required, the list price may be considered high relative to comparable properties in the area that are in better condition.
Therefore, we give this property 4 / 10. *Disclaimer: This is our option and does constitute a recommendation or financial advice. Do your own research. *
- Price
- 3
- Condition
- 2
- Location
- 7
- Land
- 4
- Bedrooms
- 3
- Bathrooms
- 1
- Sqft (est)
- 706.00
- Lot (est)
- 768.00
The heatmap indicates the level of crime in the area. The color of the heatmap indicates the crime severity and recency.
Metrics Year-on-Year
- Average area value
- 487,124.00 £Increased by 94.35 %
- Est sale value
- 434,896.00 £Increased by 112.41 %
- Average area rental value
- 1,220.00 £/moIncreased by 6.46 %
- Est letting value
- 706.00 £/moUnchanged by 0.00 %
- Est rental Yield
- 3.01 %Decreased by 45.17 %
- Crime Rate
- 14.00 %Unchanged by 0.00 %
Agent Activity
Coast and Country Real Estate created the listing.
Nearby Schools
| Name | Type | Ofsted | Distance |
|---|---|---|---|
| Educate U | Other Independent School | 0.27 KM | |
| Reflections Small School | Other Independent School | Good | 0.62 KM |
| St Andrew'S Cofe High School | Voluntary Aided School | Requires improvement | 0.71 KM |
| Footprints Children And Family Centre | Children's Centre | 0.80 KM | |
| Our Lady Of Sion School | Other Independent School | 0.86 KM |
Images
Nearby Streets
| Name | Average Price | Average Sqft | Distance |
|---|---|---|---|
| Stanley Road | £ 0 | 0 | 0.00 KM |
| Station Road | £ 265,000 | 0 | 0.00 KM |
| Cross Street | £ 178,333 | 0 | 0.00 KM |
| Richmond Road | £ 198,500 | 0 | 0.00 KM |
| Cross Street | £ 0 | 0 | 0.00 KM |
Nearby Transport
| Name | NLC | TLC | Distance |
|---|---|---|---|
| Worthing | 5279 | WRH | 0.70 KM |
| East Worthing | 5283 | EWR | 1.78 KM |
| West Worthing | 5278 | WWO | 2.53 KM |
| Durrington-On-Sea | 5282 | DUR | 4.57 KM |
| Lancing | 5275 | LAC | 5.33 KM |
Nearby Listings
| Address | Price | Type | Score | Distance |
|---|---|---|---|---|
| Ashdown Road, Worthing, BN11 | £ 300,000 | BUY | 4 / 10 | 0.00 KM |
| Ashdown Road, Worthing, West Sussex, BN11 | £ 575,000 | BUY | 6 / 10 | 0.03 KM |
| Ashdown Road, Worthing | £ 180,000 | BUY | Unknown | 0.03 KM |
| Ashdown Road, Worthing | £ 230,000 | BUY | 6 / 10 | 0.04 KM |
| Ashdown Road, Worthing | £ 35,000 | BUY | 7 / 10 | 0.04 KM |
Nearby Properties
| Address | Price | Distance |
|---|---|---|
| 41 Ashdown Road | £ 333,000 | 0.04 KM |
| 50 Ashdown Road | £ 102,000 | 0.04 KM |
| 48 Ashdown Road | £ 265,000 | 0.04 KM |
| 58 Ashdown Road | £ 312,000 | 0.04 KM |
| 66 Ashdown Road | £ 126,500 | 0.04 KM |