Beech Cottages, Lydiat Lane, Alderley Edge
By Gascoigne Halman
£ 450,000
Reviews
3 out of 5 stars
Gascoigne Halman says ..
A well-proportioned Cheshire brick cottage in a peaceful, sought-after location within easy walking distance of Alderley Edge village.
Property Oracle says ..
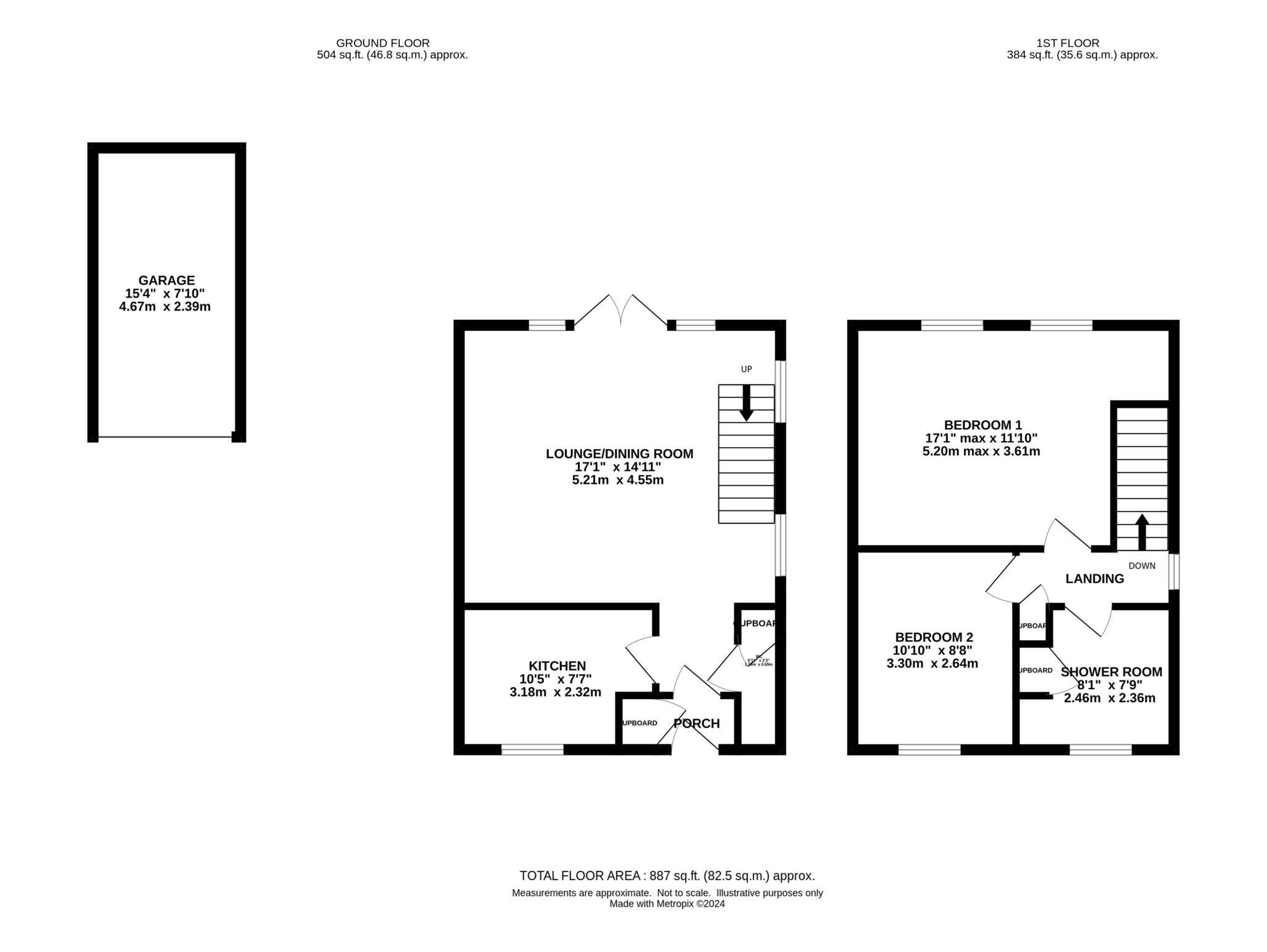
This two-bedroom semi-detached cottage in Alderley Edge, Cheshire, presents a comfortable and well-situated property. The property benefits from a convenient location within walking distance of the village centre, offering easy access to shops, restaurants, and transport links via Alderley Edge train station. The proximity to highly-regarded schools, including Alderley Edge Community Primary School and Alderley Edge School for Girls, is a significant advantage for families. The cottage itself is presented in a well-maintained condition. The kitchen and bathroom appear updated, and the living spaces are comfortable and inviting. The inclusion of a garden, although of a modest size, is a desirable feature in this area. The listed price is competitive within the Alderley Edge market and appears reasonable given the combination of location, condition, and amenities. However, the absence of precise square footage data for both the subject property and the nearby comparable properties makes a thorough value-for-money calculation difficult and potentially inaccurate. A prospective buyer should conduct a thorough inspection and valuation to verify the value proposition before committing. Overall, this is a solid property in an excellent location which may be ideal for a variety of buyers. However, more detailed specifications and professional valuation are recommended.
Therefore, we give this property 6 / 10. *Disclaimer: This is our option and does constitute a recommendation or financial advice. Do your own research. *
- Price
- 7
- Condition
- 7
- Location
- 9
- Land
- 4
- Bedrooms
- 2
- Bathrooms
- 1
- Sqft (est)
- 888.02
The heatmap indicates the level of crime in the area. The color of the heatmap indicates the crime severity and recency.
Metrics Year-on-Year
- Average area value
- 430,000.00 £Decreased by 45.17 %
- Est sale value
- 273,510.16 £Decreased by 45.87 %
- Average area rental value
- 4,000.00 £/moIncreased by 70.00 %
- Est letting value
- 1,776.04 £/moIncreased by 100.00 %
- Est rental Yield
- 11.16 %Increased by 210.00 %
- Crime Rate
- 7.00 %Unchanged by 0.00 %
Agent Activity
Gascoigne Halman created the listing.
Nearby Schools
| Name | Type | Ofsted | Distance |
|---|---|---|---|
| Alderley Edge School For Girls | Other Independent School | 0.77 KM | |
| Alderley Edge Community Primary School | Community School | Outstanding | 0.78 KM |
| The Ryleys School | Other Independent School | 0.94 KM | |
| Nether Alderley Primary School | Academy Converter | Good | 1.36 KM |
| Ashdene Primary School | Community School | Outstanding | 2.48 KM |
Images
Nearby Streets
| Name | Average Price | Average Sqft | Distance |
|---|---|---|---|
| Orme Street | £ 350,000 | 0 | 0.00 KM |
| West Bank | £ 0 | 0 | 0.00 KM |
| Congleton Close | £ 0 | 0 | 0.00 KM |
| Greystoke Drive | £ 0 | 0 | 0.00 KM |
| Fairfield Gardens | £ 0 | 0 | 0.00 KM |
Nearby Transport
| Name | NLC | TLC | Distance |
|---|---|---|---|
| Alderley Edge | 2760 | ALD | 0.59 KM |
| Wilmslow | 2774 | WML | 3.33 KM |
| Styal | 2868 | SYA | 5.56 KM |
| Chelford (Cheshire) | 2764 | CEL | 5.84 KM |
| Handforth | 2767 | HTH | 5.88 KM |
Nearby Listings
| Address | Price | Type | Score | Distance |
|---|---|---|---|---|
| Beech Cottages, Lydiat Lane, Alderley Edge | £ 450,000 | BUY | 6 / 10 | 0.00 KM |
| Congleton Road, Nether Alderley, Macclesfield | £ 799,950 | BUY | 8 / 10 | 0.03 KM |
| Carlisle Street, Alderley Edge | £ 435,000 | BUY | 7 / 10 | 0.04 KM |
| Greenwood House, St Hilarys Park, Alderley Edge | £ 545,000 | BUY | Unknown | 0.05 KM |
| Congleton Road, Alderley Edge, Cheshire, SK9 | £ 2,495,000 | BUY | 7 / 10 | 0.06 KM |
Nearby Properties
| Address | Price | Distance |
|---|---|---|
| 12 St Hilarys Park | £ 935,000 | 0.04 KM |
| 18 St Hilarys Park | £ 499,950 | 0.04 KM |
| 4 St Hilarys Park | £ 659,000 | 0.04 KM |
| 34 St Hilarys Park | £ 410,000 | 0.04 KM |
| 40 St Hilarys Park | £ 350,000 | 0.04 KM |