DA
Hilton Court, Bramhope, Leeds, West Yorkshire, LS16
By Dacre Son & Hartley
£ 875,000
Dacre Son & Hartley says ..
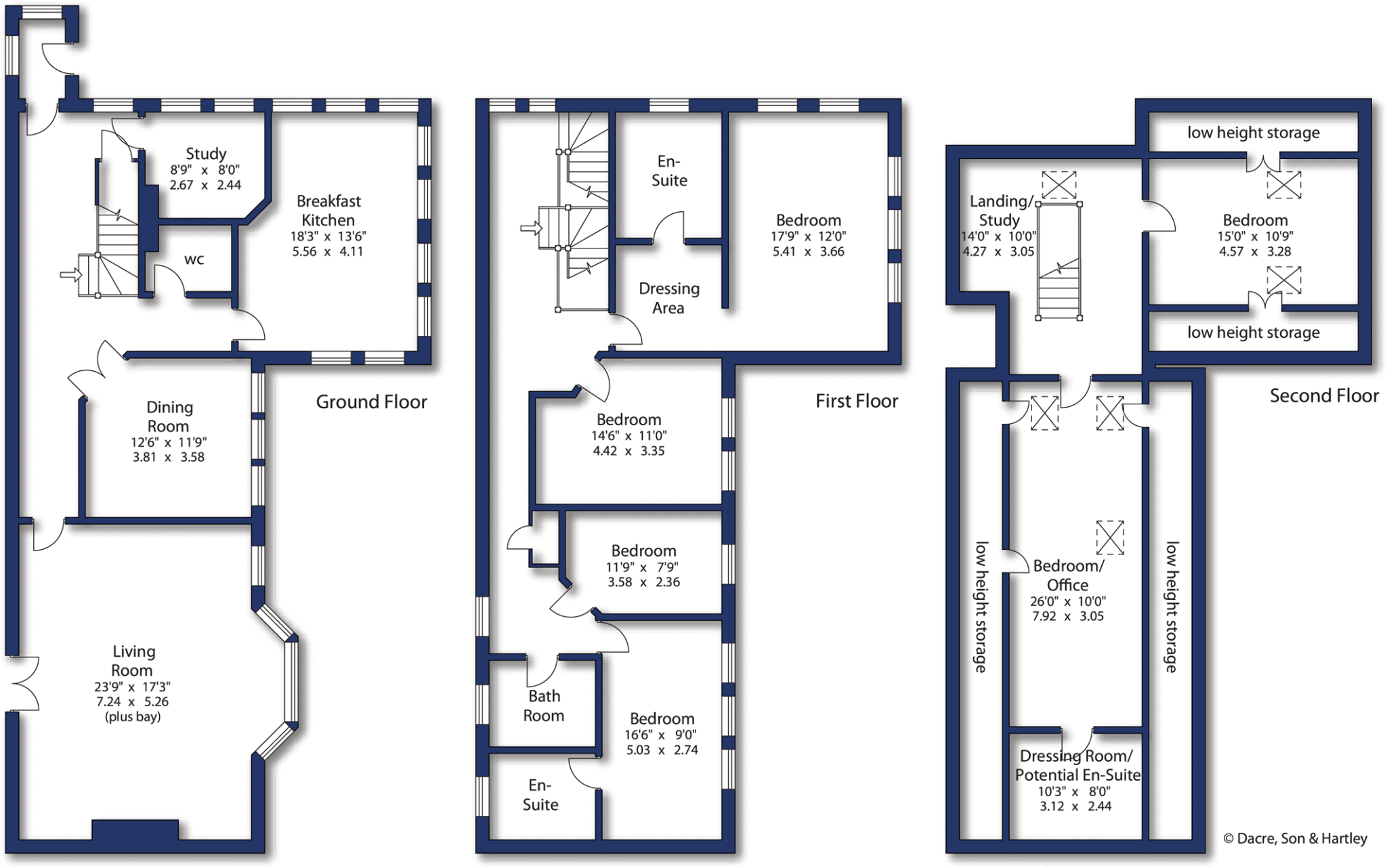
A magnificent and very substantial three reception room, six bedroom family home with living space arranged over three storeys having been converted from a handsome stone-built property. There are enclosed gardens with a double garage and parking in this highly desirable development on the rura...
- Bedrooms
- 6
- Bathrooms
- 3
The heatmap indicates the level of crime in the area. The color of the heatmap indicates the crime severity and recency.
Metrics Year-on-Year
- Average area value
- 307,772.00 £Increased by 19.74 %
- Average area rental value
- 871.00 £/moDecreased by 8.32 %
- Est rental Yield
- 3.40 %Decreased by 23.42 %
- Crime Rate
- 10.00 %Unchanged by 0.00 %
from 257,040.00 £
from 950.00 £/mo
from 4.44 %
from 10.00 %
Agent Activity
Dacre Son & Hartley created the listing.
Nearby Schools
| Name | Type | Ofsted | Distance |
|---|---|---|---|
| Pierrepont Gamston Primary School | Voluntary Aided School | Good | 0.54 KM |
| Edwalton Primary School | Academy Converter | Good | 0.83 KM |
| St Edmund Campion Catholic Primary School | Academy Converter | Requires improvement | 0.91 KM |
| Ruddington & Edwalton Children'S Centre | Children's Centre | 0.96 KM | |
| Abbey & Lady Bay Children'S Centre | Children's Centre | 1.16 KM |
Images
Nearby Streets
| Name | Average Price | Average Sqft | Distance |
|---|---|---|---|
| Hilton Grange | £ 0 | 0 | 0.00 KM |
| Fountains Close | £ 0 | 0 | 0.00 KM |
| Yew Barrow Close | £ 750,000 | 0 | 0.00 KM |
| Woodview | £ 268,333 | 0 | 0.00 KM |
| Glebe Farm | £ 0 | 0 | 0.00 KM |
Nearby Transport
| Name | NLC | TLC | Distance |
|---|---|---|---|
| Nottingham | 1826 | NOT | 4.93 KM |
| Netherfield | 6241 | NET | 5.60 KM |
| Carlton | 6201 | CTO | 6.01 KM |
| Radcliffe (Nottinghamshire) | 6242 | RDF | 8.63 KM |
Nearby Listings
| Address | Price | Type | Score | Distance |
|---|---|---|---|---|
| Hilton Court, Bramhope, Leeds, West Yorkshire, LS16 | £ 875,000 | BUY | Unknown | 0.00 KM |
| Hilton Crescent, West Bridgford, Nottingham | £ 220,000 | BUY | 5 / 10 | 0.08 KM |
| Valley Road, West Bridgford, Nottingham, Nottinghamshire, NG2 | £ 345,000 | BUY | 7 / 10 | 0.17 KM |
| Alford Road, West Bridgford, Nottinghamshire, NG2 6HP | £ 350,000 | BUY | Unknown | 0.19 KM |
| Valley Road, West Bridgford, Nottinghamshire, NG2 6HQ | £ 350,000 | BUY | 7 / 10 | 0.21 KM |
Nearby Properties
| Address | Price | Distance |
|---|---|---|
| 14a Hilton Crescent | £ 154,000 | 0.11 KM |
| 72 Leahurst Road | £ 79,950 | 0.13 KM |
| 41a Leahurst Road | £ 305,000 | 0.13 KM |
| 51 Leahurst Road | £ 145,000 | 0.13 KM |
| 90 Leahurst Road | £ 152,500 | 0.13 KM |