Coulby Conduct says ..
Welcome to this extended, semi detached home situated on a fabulous plot that´s just waiting for your personal touch. This traditional property exudes potential and character, perfect for those looking to put their stamp on a home. As you step inside, you are greeted by the entrance hall, to...
Property Oracle says ..
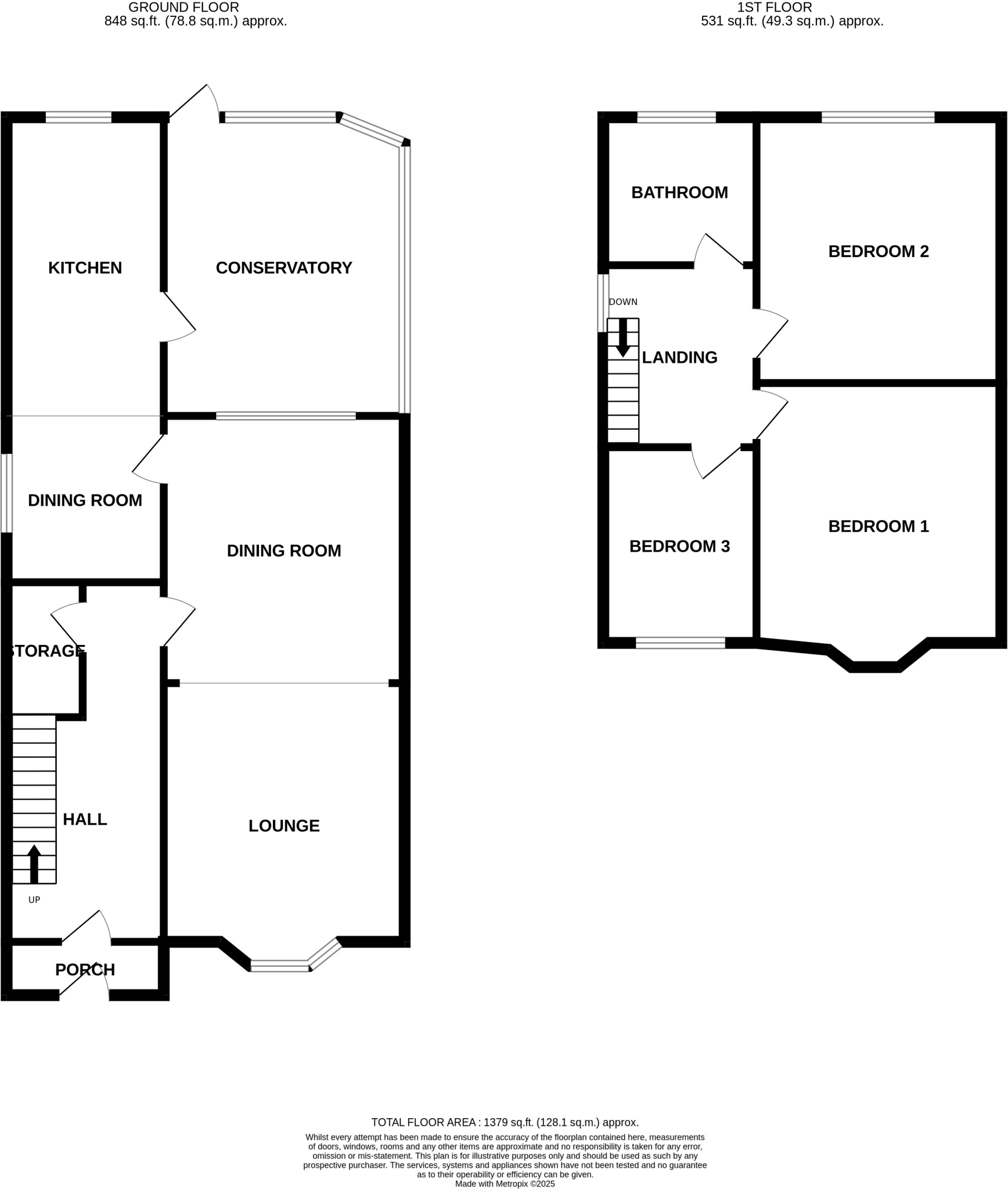
This property is a 3-bedroom semi-detached house located in Middlewich, Cheshire. The property benefits from a good-sized garden and is within a reasonable distance of local schools and transport links. While the property shows its age and could benefit from some modernisation, the list price appears competitive when compared to similar properties in the area. The average price for a property in the area is £302,010, and the average price per square foot is £305. This property is listed at £245,000 and has 1140 sqft. The relatively lower price point may be due to the need for some updating and modernisation, as seen in the images. The property is located close to Middlewich High School (0.66 km), Middlewich Primary School (0.87 km), and St Mary’s Catholic Primary School (0.88 km), all of which are rated as good by Ofsted. Transport links are also conveniently located, with Winsford train station at 5.56 km. This is a good location for families and commuters alike.
Therefore, we give this property 7 / 10. *Disclaimer: This is our option and does constitute a recommendation or financial advice. Do your own research. *
- Price
- 7
- Condition
- 6
- Location
- 8
- Land
- 7
- Bedrooms
- 3
- Bathrooms
- 1
- Sqft (est)
- 1,140.00
- Lot (est)
- 1,379.00
The heatmap indicates the level of crime in the area. The color of the heatmap indicates the crime severity and recency.
Metrics Year-on-Year
- Average area value
- 333,571.00 £Increased by 33.76 %
- Est sale value
- 335,160.00 £Increased by 25.11 %
- Average area rental value
- 1,005.00 £/moIncreased by 8.30 %
- Est letting value
- 0.00 £/mo
- Est rental Yield
- 3.62 %Decreased by 19.02 %
- Crime Rate
- 7.00 %Unchanged by 0.00 %
Agent Activity
Coulby Conduct created the listing.
Nearby Schools
| Name | Type | Ofsted | Distance |
|---|---|---|---|
| Sandbach Children'S Centre- Middlewich Site | Children's Centre Linked Site | 0.19 KM | |
| Middlewich High School | Academy Converter | 0.66 KM | |
| Middlewich Primary School | Community School | Good | 0.87 KM |
| St Mary'S Catholic Primary School | Voluntary Aided School | Good | 0.88 KM |
| Cledford Primary School | Community School | Good | 1.54 KM |
Images
Nearby Streets
| Name | Average Price | Average Sqft | Distance |
|---|---|---|---|
| West Avenue | £ 210,000 | 0 | 0.00 KM |
| Sanderson Way | £ 150,000 | 0 | 0.00 KM |
| A54 | £ 0 | 0 | 0.00 KM |
| Hannah's Walk | £ 0 | 0 | 0.00 KM |
| Manor Fields | £ 182,500 | 0 | 0.00 KM |
Nearby Transport
| Name | NLC | TLC | Distance |
|---|---|---|---|
| Winsford | 2269 | WSF | 5.56 KM |
| Sandbach | 1261 | SDB | 7.55 KM |
| Lostock Gralam | 2307 | LTG | 8.37 KM |
| Plumley | 2308 | PLM | 9.25 KM |
| Northwich | 2326 | NWI | 9.37 KM |
Nearby Listings
| Address | Price | Type | Score | Distance |
|---|---|---|---|---|
| King Street, Middlewich | £ 245,000 | BUY | 7 / 10 | 0.00 KM |
| King Street, Middlewich | £ 235,000 | BUY | 7 / 10 | 0.04 KM |
| Flavian Close, Middlewich | £ 200,000 | BUY | Unknown | 0.04 KM |
| New King Street, Middlewich | £ 185,000 | BUY | Unknown | 0.08 KM |
| King Street, Middlewich | £ 200,000 | BUY | Unknown | 0.11 KM |
Nearby Properties
| Address | Price | Distance |
|---|---|---|
| 6 King Street | £ 157,000 | 0.00 KM |
| 9 King Street | £ 141,950 | 0.00 KM |
| 19 King Street | £ 150,000 | 0.00 KM |
| 27 King Street | £ 180,000 | 0.00 KM |
| 21 King Street | £ 260,000 | 0.00 KM |