BO
3 Mayfield Park South, Fishponds, Bristol, BS16 3NF
By Bond Wolfe
£ 150,000
Reviews
2 out of 5 stars
Bond Wolfe says ..
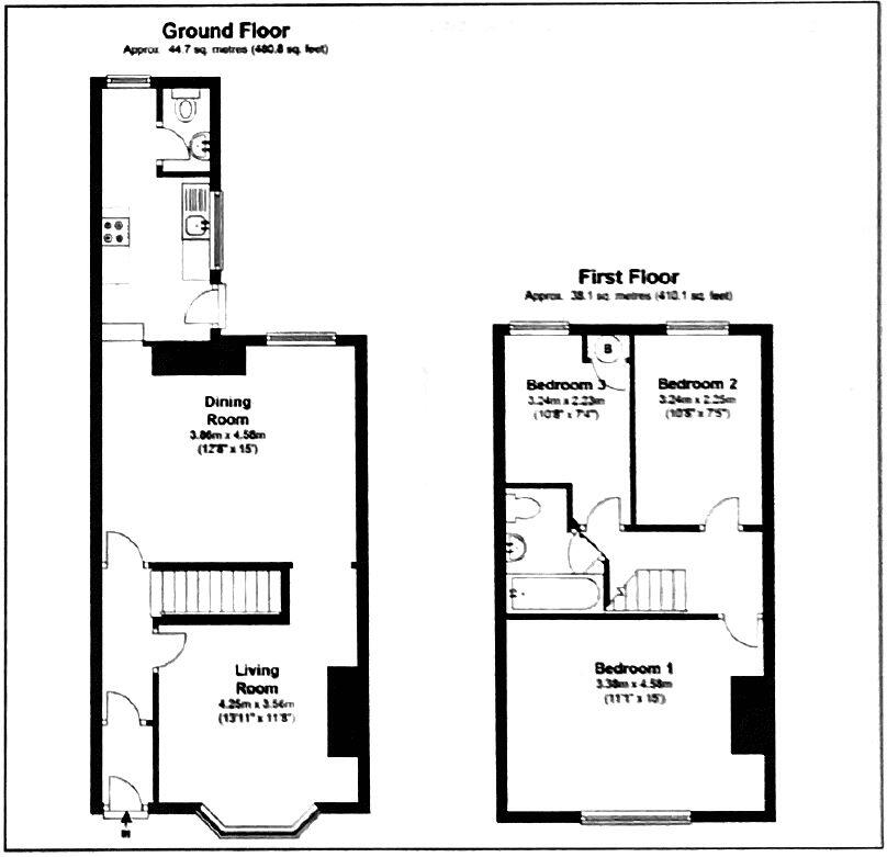
For Sale By Public Auction 11 September 2025 A vacant freehold mid teraced property
Property Oracle says ..
Therefore, we give this property 5 / 10. *Disclaimer: This is our option and does constitute a recommendation or financial advice. Do your own research. *
- Price
- 8
- Condition
- 4
- Location
- 7
- Land
- 3
- Bedrooms
- 3
- Bathrooms
- 0
- Sqft (est)
- 674.14
The heatmap indicates the level of crime in the area. The color of the heatmap indicates the crime severity and recency.
Metrics Year-on-Year
- Average area value
- 393,889.00 £Increased by 27.85 %
- Est sale value
- 357,294.20 £Increased by 58.21 %
- Average area rental value
- 1,626.00 £/moDecreased by 6.61 %
- Est letting value
- 1,348.28 £/moIncreased by 100.00 %
- Est rental Yield
- 4.95 %Decreased by 26.99 %
- Crime Rate
- 4.00 %Unchanged by 0.00 %
from 308,091.00 £
from 225,836.90 £
from 1,741.00 £/mo
from 674.14 £/mo
from 6.78 %
from 4.00 %
Agent Activity
Bond Wolfe created the listing.
Nearby Schools
| Name | Type | Ofsted | Distance |
|---|---|---|---|
| St Joseph'S Catholic Primary School | Voluntary Aided School | Good | 0.33 KM |
| Bristol Brunel Academy | Academy Sponsor Led | Good | 0.39 KM |
| Speedwell Nursery School & Children'S Centre | Children's Centre | 0.53 KM | |
| Chester Park Infant School | Community School | Good | 0.56 KM |
| Chester Park Junior School | Community School | Good | 0.58 KM |
Images
Nearby Streets
| Name | Average Price | Average Sqft | Distance |
|---|---|---|---|
| Mayfield Avenue | £ 362,250 | 0 | 0.00 KM |
| Holly Close | £ 206,779 | 0 | 0.00 KM |
| Acton Road | £ 0 | 0 | 0.00 KM |
| Speedwell Road | £ 0 | 0 | 0.00 KM |
| Deans Drive | £ 0 | 0 | 0.00 KM |
Nearby Transport
| Name | NLC | TLC | Distance |
|---|---|---|---|
| Stapleton Road | 3250 | SRD | 4.27 KM |
| Lawrence Hill | 3225 | LWH | 4.30 KM |
| Bristol Parkway | 3230 | BPW | 5.06 KM |
| Filton Abbey Wood | 3235 | FIT | 5.41 KM |
| Bristol Temple Meads | 3231 | BRI | 6.39 KM |
Nearby Listings
| Address | Price | Type | Score | Distance |
|---|---|---|---|---|
| 3 Mayfield Park South, Fishponds, Bristol, BS16 3NF | £ 150,000 | BUY | 5 / 10 | 0.00 KM |
| Mayfield Park South, Fishponds | £ 395,000 | BUY | 7 / 10 | 0.02 KM |
| Linden Close, Fishponds, Bristol, BS16 | £ 350,000 | BUY | 6 / 10 | 0.05 KM |
| Mayfield Park South, Bristol | £ 385,000 | BUY | 7 / 10 | 0.06 KM |
| Whitefield Road, Bristol, BS5 | £ 290,000 | BUY | 7 / 10 | 0.10 KM |
Nearby Properties
| Address | Price | Distance |
|---|---|---|
| 9 Linden Close | £ 235,000 | 0.05 KM |
| 10 Linden Close | £ 243,000 | 0.05 KM |
| 16 Linden Close | £ 250,000 | 0.05 KM |
| 3 Linden Close | £ 170,000 | 0.05 KM |
| 2 Linden Close | £ 200,000 | 0.05 KM |