FO
Granby Street, Bethnal Green, London, E2
By Foxtons
£ 900,000
Reviews
3 out of 5 stars
Foxtons says ..
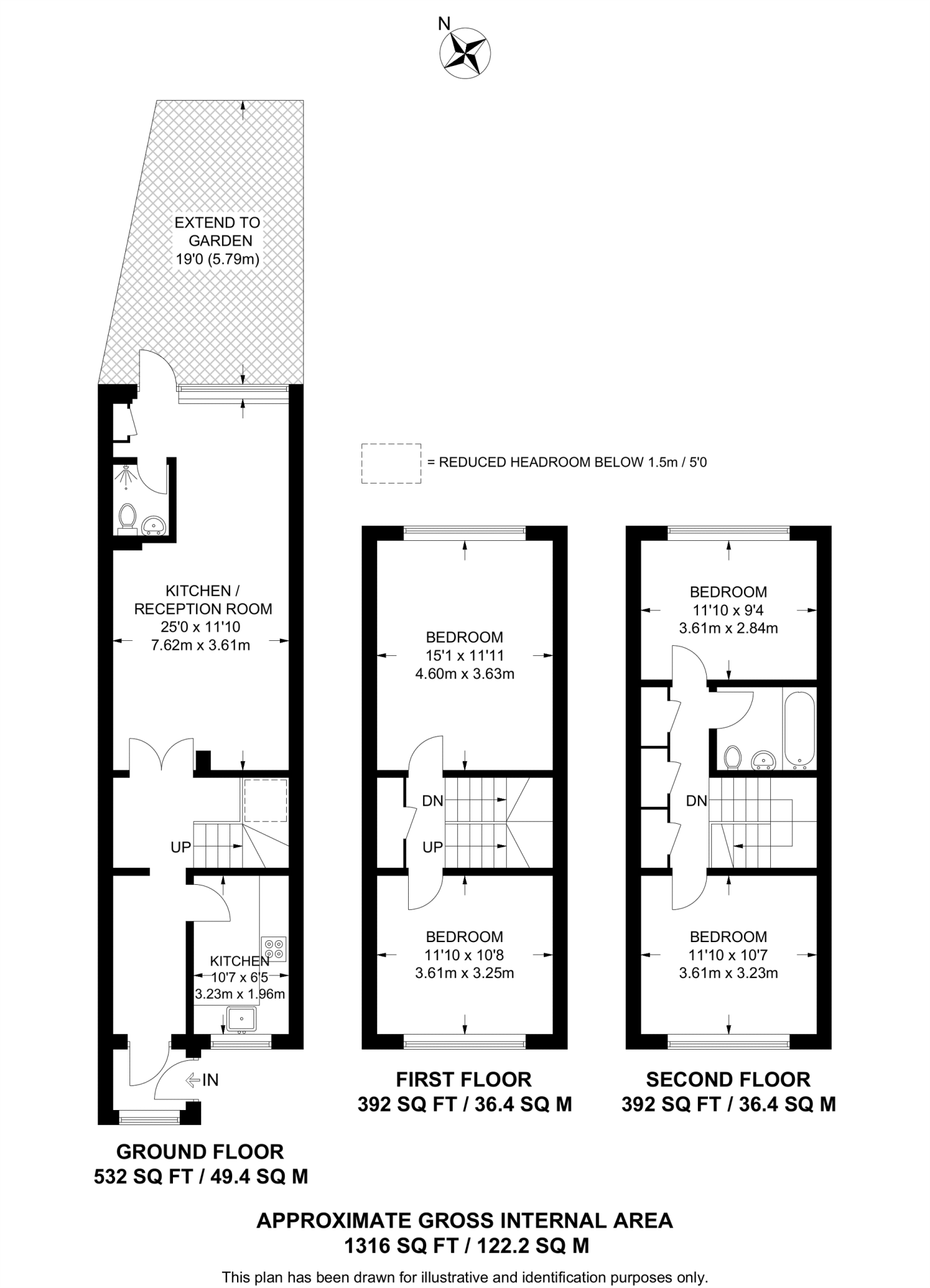
A stunning 4 bedroom house arranged over 3 floors, boasting bright and modern accommodations route, private garden and off street parking.
Property Oracle says ..
Therefore, we give this property 7 / 10. *Disclaimer: This is our option and does constitute a recommendation or financial advice. Do your own research. *
- Price
- 7
- Condition
- 8
- Location
- 8
- Land
- 5
- Bedrooms
- 4
- Bathrooms
- 2
- Sqft (est)
- 905.89
The heatmap indicates the level of crime in the area. The color of the heatmap indicates the crime severity and recency.
Metrics Year-on-Year
- Average area value
- 599,375.00 £Decreased by 3.07 %
- Est sale value
- 868,748.51 £Increased by 15.54 %
- Average area rental value
- 2,567.00 £/moDecreased by 0.31 %
- Est letting value
- 3,623.56 £/moIncreased by 33.33 %
- Est rental Yield
- 5.14 %Increased by 2.80 %
- Crime Rate
- 3.00 %Unchanged by 0.00 %
from 618,354.00 £
from 751,888.70 £
from 2,575.00 £/mo
from 2,717.67 £/mo
from 5.00 %
from 3.00 %
Agent Activity
Foxtons created the listing.
Nearby Schools
| Name | Type | Ofsted | Distance |
|---|---|---|---|
| Mulberry Academy Shoreditch | Academy Converter | Outstanding | 0.26 KM |
| William Davis Primary School | Community School | Good | 0.27 KM |
| Columbia Primary School | Community School | Good | 0.47 KM |
| St Anne'S And Guardian Angels Catholic Primary School | Voluntary Aided School | Good | 0.47 KM |
| Thomas Buxton Primary School | Community School | Outstanding | 0.63 KM |
Images
Nearby Streets
| Name | Average Price | Average Sqft | Distance |
|---|---|---|---|
| Three Colts Corner | £ 0 | 0 | 0.00 KM |
| Shuttle Street | £ 0 | 0 | 0.00 KM |
| Fakruddin Street | £ 0 | 0 | 0.00 KM |
| Vallance Road | £ 0 | 0 | 0.00 KM |
| Hanbury Street | £ 0 | 0 | 0.00 KM |
Nearby Transport
| Name | NLC | TLC | Distance |
|---|---|---|---|
| Shoreditch High Street | 1024 | SDC | 0.67 KM |
| Hoxton | 1023 | HOX | 0.99 KM |
| Bethnal Green Rail | 6961 | BET | 1.10 KM |
| Whitechapel | 4935 | ZLW | 1.24 KM |
| Cambridge Heath | 6962 | CBH | 1.54 KM |
Nearby Listings
| Address | Price | Type | Score | Distance |
|---|---|---|---|---|
| Granby Street, Bethnal Green, London, E2 | £ 900,000 | BUY | 7 / 10 | 0.00 KM |
| Granby Street, Shoreditch High Street | £ 900,000 | BUY | Unknown | 0.01 KM |
| Granby Street, London, E2 | £ 900,000 | BUY | 7 / 10 | 0.01 KM |
| Granby Street, Shoreditch, E2 | £ 950,000 | BUY | 6 / 10 | 0.01 KM |
| Granby Street, London, E2 | £ 500,000 | BUY | 6 / 10 | 0.03 KM |
Nearby Properties
| Address | Price | Distance |
|---|---|---|
| 22 Granby Street | £ 267,500 | 0.03 KM |
| 74 Granby Street | £ 145,000 | 0.03 KM |
| 70 Granby Street | £ 420,000 | 0.03 KM |
| 30 Granby Street | £ 470,000 | 0.03 KM |
| 52 Granby Street | £ 139,000 | 0.03 KM |