Platt Street, Cannock, Staffordshire, WS11
By Boot & Son Chartered Surveyors
£ 340,000
Reviews
3 out of 5 stars
Boot & Son Chartered Surveyors says ..
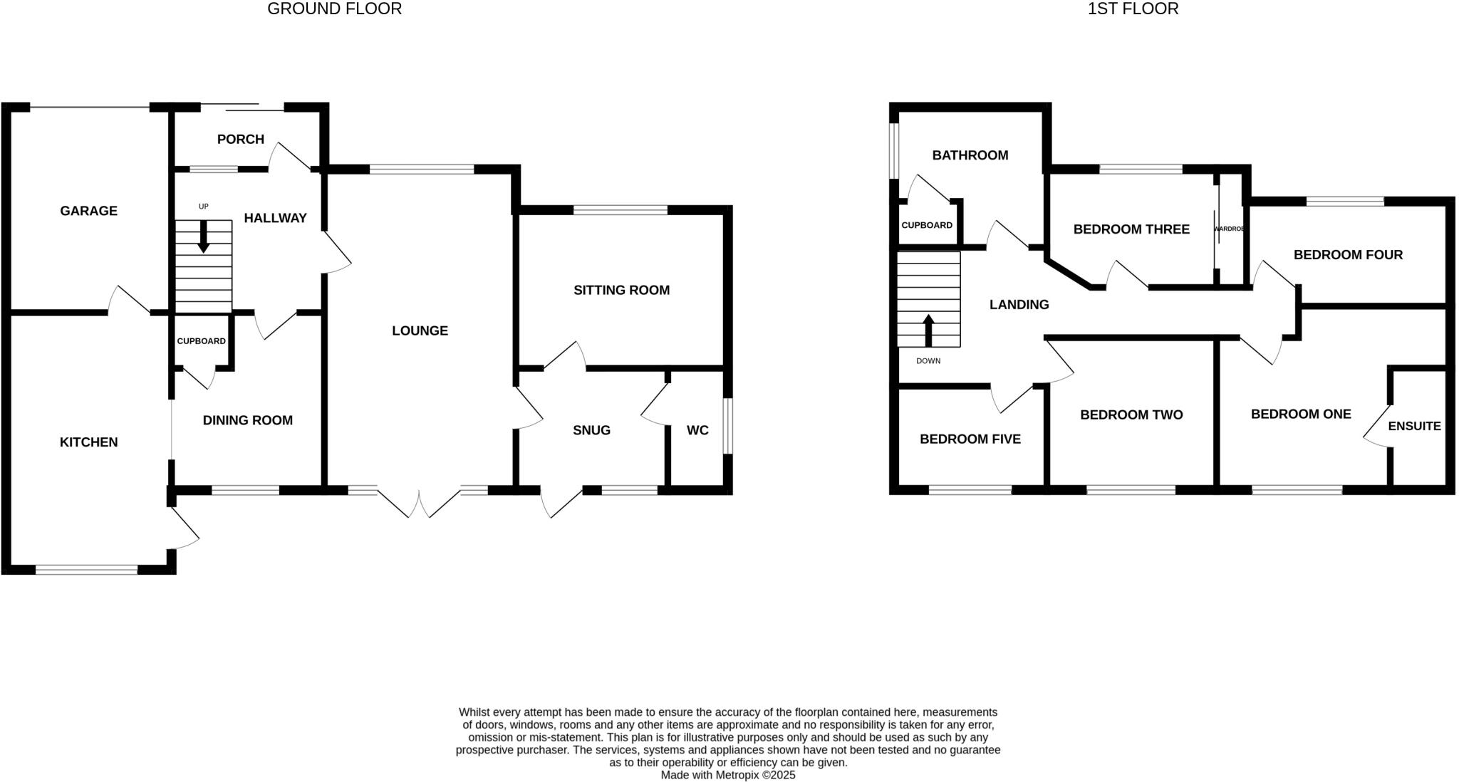
Offered to the market with NO UPWARD CHAIN, this substantial FIVE BEDROOM DETACHED HOME provides generous and versatile living accommodation, IDEAL FOR GROWING FAMILIES and those seeking a flexible space
Property Oracle says ..
This detached property on Platt Street, Cannock, offers a substantial amount of living space with five bedrooms and two bathrooms. While the location benefits from nearby schools and transportation, the property’s condition suggests it would benefit from modernization. The presence of gardens adds to its appeal. Considering the size and location, the asking price of £340,000 appears to be within a reasonable range, especially given the lower price per square foot compared to the Cannock average. However, potential buyers should factor in renovation costs.
Therefore, we give this property 6 / 10. *Disclaimer: This is our option and does constitute a recommendation or financial advice. Do your own research. *
- Price
- 7
- Condition
- 5
- Location
- 6
- Land
- 7
- Bedrooms
- 5
- Bathrooms
- 2
- Sqft (est)
- 1,780.00
The heatmap indicates the level of crime in the area. The color of the heatmap indicates the crime severity and recency.
Metrics Year-on-Year
- Average area value
- 248,333.00 £Increased by 7.04 %
- Est sale value
- 510,860.00 £Increased by 21.10 %
- Average area rental value
- 1,050.00 £/moIncreased by 20.55 %
- Est letting value
- 1,780.00 £/mo
- Est rental Yield
- 5.07 %Increased by 12.42 %
- Crime Rate
- 2.00 %Unchanged by 0.00 %
Agent Activity
Boot & Son Chartered Surveyors created the listing.
Nearby Schools
| Name | Type | Ofsted | Distance |
|---|---|---|---|
| Hednesford Valley High School | Community Special School | Good | 0.27 KM |
| Chadsmoor Community Infants And Nursery School | Community School | Requires improvement | 0.41 KM |
| Staffordshire University Academy | Academy Sponsor Led | Requires improvement | 0.68 KM |
| Poppyfield Primary Academy | Free Schools | 0.73 KM | |
| Chadsmoor Cofe (Vc) Junior School | Voluntary Controlled School | Good | 0.80 KM |
Images
Nearby Streets
| Name | Average Price | Average Sqft | Distance |
|---|---|---|---|
| Mercury Road | £ 0 | 0 | 0.00 KM |
| Queen Street | £ 0 | 0 | 0.00 KM |
| Moss Street | £ 237,500 | 0 | 0.00 KM |
| Sherwood Drive | £ 0 | 0 | 0.00 KM |
| Winchester Road | £ 0 | 0 | 0.00 KM |
Nearby Transport
| Name | NLC | TLC | Distance |
|---|---|---|---|
| Hednesford | 1148 | HNF | 1.21 KM |
| Cannock | 1016 | CAO | 2.63 KM |
| Landywood | 1017 | LAW | 5.77 KM |
| Bloxwich North | 1018 | BWN | 9.18 KM |
| Rugeley Town | 1135 | RGT | 9.84 KM |
Nearby Listings
| Address | Price | Type | Score | Distance |
|---|---|---|---|---|
| Platt Street, Cannock, WS11 5TG | £ 225,000 | BUY | 6 / 10 | 0.00 KM |
| Platt Street, Cannock | £ 220,000 | BUY | 4 / 10 | 0.00 KM |
| Platt Street, Cannock, Staffordshire, WS11 | £ 340,000 | BUY | 6 / 10 | 0.00 KM |
| Platt Street, High Town, Cannock, WS11 | £ 145,000 | BUY | 6 / 10 | 0.01 KM |
| Belt Road, Hednesford | £ 199,950 | BUY | 6 / 10 | 0.12 KM |
Nearby Properties
| Address | Price | Distance |
|---|---|---|
| 86 Platt Street | £ 162,000 | 0.01 KM |
| 77 Belt Road | £ 246,000 | 0.12 KM |
| 71 Belt Road | £ 80,000 | 0.12 KM |
| 73 Belt Road | £ 133,000 | 0.12 KM |
| 32 Belt Road | £ 123,250 | 0.12 KM |