Kitchener Drive, Eaton Leys, Milton Keynes, Bucks, MK17 9GF
By Barratt Homes
£ 745,000
Reviews
3 out of 5 stars
Barratt Homes says ..
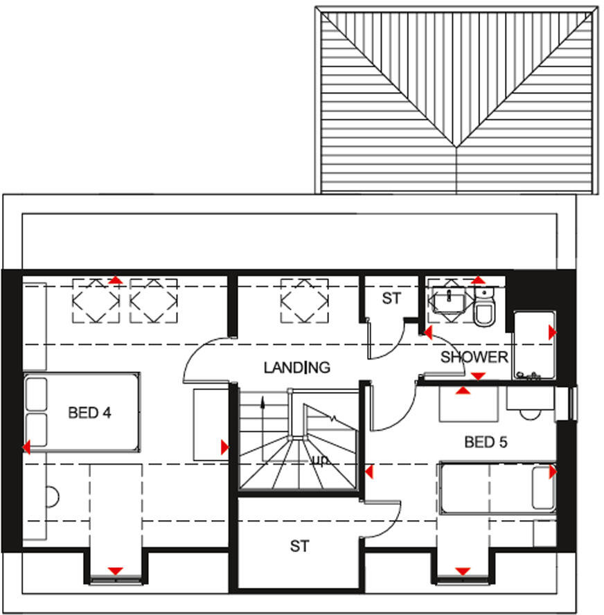
DOUBLE DETCHED GARAGE | On the ground floor of this five bedroom home you will find an open plan kitchen and a spacious lounge, both with French doors to the garden. There's also a separate dining room or handy home office. On the first floor, two en suite bedrooms, a single bedroom and a family ...
Property Oracle says ..
The property is a 5-bedroom detached house located in Eaton Leys, Milton Keynes. The location benefits from being relatively close to several primary schools with good Ofsted ratings, including Bow Brickhill Cofe Va Primary School and Heronshaw School, both within a 3km radius. Several train stations are also within reasonable commuting distance, offering convenient transport links. The average house price in the immediate vicinity (Galley Lane) is significantly higher than the Milton Keynes average, suggesting a desirable area. However, the plot size is listed as 0.00 sqft, which is unusual for a detached property and requires further clarification. This needs to be investigated to fully assess the land score. The images show a modern, well-maintained property that appears to be in excellent condition. The interior is presented to a high standard, with modern fixtures and fittings throughout. There is evidence of a garden visible through the patio doors, although the exact size is unclear. There is also a garage visible in the exterior images. Considering the list price of £745,000, the average price per sqft in the area (£386) and the high average house prices on nearby streets, the property may be priced slightly higher than the average for the area. However, considering the size (350 sqft) and the apparent high quality of the finish, the price may be justifiable. More information on the exact plot size and any additional features would help to determine a more accurate price assessment. Further investigation into the local market and comparable properties is needed to determine a more accurate price score.
Therefore, we give this property 7 / 10. *Disclaimer: This is our option and does constitute a recommendation or financial advice. Do your own research. *
- Price
- 7
- Condition
- 10
- Location
- 9
- Land
- 5
- Bedrooms
- 5
- Bathrooms
- 0
- Sqft (est)
- 350.00
The heatmap indicates the level of crime in the area. The color of the heatmap indicates the crime severity and recency.
Metrics Year-on-Year
- Average area value
- 292,393.00 £Decreased by 14.14 %
- Est sale value
- 115,500.00 £Increased by 5.77 %
- Average area rental value
- 1,300.00 £/moDecreased by 10.78 %
- Est letting value
- 350.00 £/moUnchanged by 0.00 %
- Est rental Yield
- 5.34 %Increased by 4.09 %
- Crime Rate
- 0.00 %
Agent Activity
Barratt Homes created the listing.
Nearby Schools
| Name | Type | Ofsted | Distance |
|---|---|---|---|
| Bow Brickhill Cofe Va Primary School | Voluntary Aided School | Good | 2.24 KM |
| The Saplings Children'S Centre | Children's Centre | 2.54 KM | |
| Heronsgate School | Academy Converter | Good | 2.71 KM |
| Heronshaw School | Academy Converter | Outstanding | 2.75 KM |
| The Premier Academy | Academy Converter | Outstanding | 2.83 KM |
Images
Nearby Streets
| Name | Average Price | Average Sqft | Distance |
|---|---|---|---|
| Galley Lane | £ 574,579 | 0 | 0.00 KM |
| A4146 | £ 558,495 | 0 | 0.00 KM |
| Langley Avenue | £ 0 | 0 | 0.00 KM |
| Read Loke | £ 0 | 0 | 0.00 KM |
| Clements Drive | £ 0 | 0 | 0.00 KM |
Nearby Transport
| Name | NLC | TLC | Distance |
|---|---|---|---|
| Bow Brickhill | 1381 | BWB | 1.44 KM |
| Fenny Stratford | 1377 | FEN | 2.06 KM |
| Bletchley | 1360 | BLY | 4.11 KM |
| Woburn Sands | 1539 | WOB | 5.80 KM |
| Aspley Guise | 1380 | APG | 8.10 KM |
Nearby Listings
| Address | Price | Type | Score | Distance |
|---|---|---|---|---|
| Kitchener Drive, Eaton Leys, Milton Keynes, Bucks, MK17 9GF | £ 643,000 | BUY | 8 / 10 | 0.00 KM |
| Kitchener Drive, Eaton Leys, Milton Keynes, Bucks, MK17 9GF | £ 745,000 | BUY | 7 / 10 | 0.00 KM |
| Kitchener Drive, Eaton Leys, Milton Keynes, Bucks, MK17 9GF | £ 645,000 | BUY | 8 / 10 | 0.00 KM |
| Kitchener Drive, Eaton Leys, Milton Keynes, Bucks, MK17 9GF | £ 405,000 | BUY | 7 / 10 | 0.00 KM |
| Kitchener Drive, Eaton Leys, Milton Keynes, Bucks, MK17 9GF | £ 475,000 | BUY | 6 / 10 | 0.00 KM |
Nearby Properties
| Address | Price | Distance |
|---|---|---|
| Galley Lodge | £ 760,000 | 1.40 KM |
| Galley Cottage | £ 972,500 | 1.40 KM |
| 54 Longhedge | £ 150,000 | 1.54 KM |
| 68 Longhedge | £ 245,000 | 1.54 KM |
| 45 Longhedge | £ 143,250 | 1.54 KM |