Fox & Sons says ..
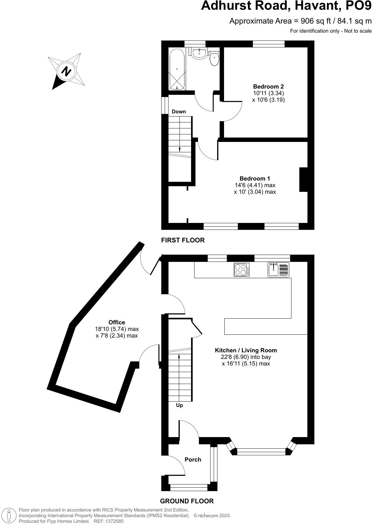
A spacious semi detached house offering an open plan kitchen/living room and office space to the ground floor, with two double bedrooms and family bathroom to the first floor. Off road parking to the front of the property and a courtyard style garden to the rear.
Property Oracle says ..
This is a semi-detached property located on Adhurst Road in Havant. The property features two bedrooms and one bathroom, with a total square footage of 780.93 sqft. The interior has been modernized, particularly the kitchen and bathroom. While the property doesn’t have a large garden, it does offer a paved outdoor area. The location provides convenient access to local schools and transportation links, including the Havant train station. The asking price of £285,000 appears reasonable given the property’s condition, location, and size, especially when compared to the average property price in the area.
Therefore, we give this property 6 / 10. *Disclaimer: This is our option and does constitute a recommendation or financial advice. Do your own research. *
- Price
- 7
- Condition
- 8
- Location
- 7
- Land
- 5
- Bedrooms
- 2
- Bathrooms
- 1
- Sqft (est)
- 780.93
The heatmap indicates the level of crime in the area. The color of the heatmap indicates the crime severity and recency.
Metrics Year-on-Year
- Average area value
- 543,000.00 £Increased by 8.02 %
- Est sale value
- 222,565.05 £Decreased by 1.72 %
- Average area rental value
- 1,400.00 £/moDecreased by 23.75 %
- Est letting value
- 0.00 £/moDecreased by 100.00 %
- Est rental Yield
- 3.09 %Decreased by 29.45 %
- Crime Rate
- 9.00 %Unchanged by 0.00 %
Agent Activity
Fox & Sons created the listing.
Nearby Schools
| Name | Type | Ofsted | Distance |
|---|---|---|---|
| St Alban'S Church Of England Aided Primary School | Voluntary Aided School | Good | 0.47 KM |
| Front Lawn Primary Academy | Academy Sponsor Led | Good | 0.72 KM |
| Trosnant Infant School | Community School | Good | 1.06 KM |
| Trosnant Junior School | Community School | Good | 1.06 KM |
| Trospacc Children'S Centre | Children's Centre | 1.06 KM |
Images
Nearby Streets
| Name | Average Price | Average Sqft | Distance |
|---|---|---|---|
| Juventu Close | £ 380,000 | 0 | 0.00 KM |
| Linden Way | £ 0 | 0 | 0.00 KM |
| Martin Road | £ 0 | 0 | 0.00 KM |
| Petersfield Road | £ 0 | 0 | 0.00 KM |
| Russell Road | £ 0 | 0 | 0.00 KM |
Nearby Transport
| Name | NLC | TLC | Distance |
|---|---|---|---|
| Havant | 5532 | HAV | 1.14 KM |
| Warblington | 5264 | WBL | 1.60 KM |
| Bedhampton | 5538 | BDH | 2.32 KM |
| Rowlands Castle | 5658 | RLN | 3.85 KM |
| Emsworth | 5257 | EMS | 4.50 KM |
Nearby Listings
| Address | Price | Type | Score | Distance |
|---|---|---|---|---|
| Adhurst Road, Havant, Hampshire, PO9 | £ 285,000 | BUY | 7 / 10 | 0.00 KM |
| Adhurst Road, Havant | £ 285,000 | BUY | 6 / 10 | 0.00 KM |
| Adhurst Road, West Leigh | £ 280,000 | BUY | 7 / 10 | 0.05 KM |
| Braishfield Road, West Leigh | £ 235,000 | BUY | Unknown | 0.05 KM |
| Braishfield Road, West Leigh | £ 249,995 | BUY | 6 / 10 | 0.05 KM |
Nearby Properties
| Address | Price | Distance |
|---|---|---|
| 5 Adhurst Road | £ 227,000 | 0.00 KM |
| 71 Adhurst Road | £ 204,000 | 0.00 KM |
| 1 Adhurst Road | £ 190,000 | 0.00 KM |
| 59 Adhurst Road | £ 142,500 | 0.00 KM |
| 27 Adhurst Road | £ 140,000 | 0.00 KM |