Bath Road, Calcot, Reading
By Nicholas Estate Agents
£ 430,000
Reviews
3 out of 5 stars
Nicholas Estate Agents says ..
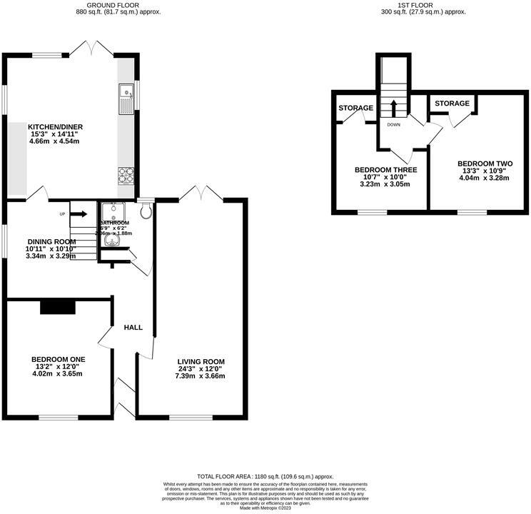
POTENTIAL TO EXTEND (STP) & A GREAT SIZED GARDEN THAT IS IN EXCESS OF 100ft: Set within this sought after area Calcot is this extended three double bedroom chalet bungalow that has been recently redecorated. The property has scope for further extension and boasts a great sized living room, dining...
Property Oracle says ..
Therefore, we give this property 6 / 10. *Disclaimer: This is our option and does constitute a recommendation or financial advice. Do your own research. *
- Price
- 6
- Condition
- 5
- Location
- 7
- Land
- 8
- Bedrooms
- 3
- Bathrooms
- 1
- Sqft (est)
- 1,180.00
The heatmap indicates the level of crime in the area. The color of the heatmap indicates the crime severity and recency.
Metrics Year-on-Year
- Average area value
- 698,333.00 £Increased by 39.43 %
- Est sale value
- 1,712,180.00 £Increased by 216.12 %
- Average area rental value
- 1,400.00 £/moDecreased by 23.50 %
- Est letting value
- 2,360.00 £/moIncreased by 100.00 %
- Est rental Yield
- 2.41 %Decreased by 44.98 %
- Crime Rate
- 9.00 %Unchanged by 0.00 %
from 500,854.00 £
from 541,620.00 £
from 1,830.00 £/mo
from 1,180.00 £/mo
from 4.38 %
from 9.00 %
Agent Activity
Nicholas Estate Agents created the listing.
Nearby Schools
| Name | Type | Ofsted | Distance |
|---|---|---|---|
| Tlg Reading | Other Independent School | Good | 0.28 KM |
| East Family Hub - Calcot | Children's Centre | 0.86 KM | |
| Calcot Infant School And Nursery | Community School | Good | 0.95 KM |
| Calcot Junior School | Community School | Good | 0.95 KM |
| St Paul'S Catholic Primary School | Voluntary Aided School | Good | 1.48 KM |
Images
Nearby Streets
| Name | Average Price | Average Sqft | Distance |
|---|---|---|---|
| Pollards Way | £ 0 | 0 | 0.00 KM |
| Halls Road | £ 0 | 0 | 0.00 KM |
| Hawley Close | £ 0 | 0 | 0.00 KM |
| Fern Close | £ 450,000 | 0 | 0.00 KM |
| Bath Road | £ 90,000 | 0 | 0.00 KM |
Nearby Transport
| Name | NLC | TLC | Distance |
|---|---|---|---|
| Tilehurst | 3154 | TLH | 3.57 KM |
| Theale | 3153 | THE | 3.69 KM |
| Reading West | 3160 | RDW | 6.00 KM |
| Pangbourne | 3036 | PAN | 7.15 KM |
| Mortimer | 5501 | MOR | 7.84 KM |
Nearby Listings
| Address | Price | Type | Score | Distance |
|---|---|---|---|---|
| Bath Road, Calcot, Reading | £ 430,000 | BUY | 6 / 10 | 0.00 KM |
| Radbourne Road, Calcot, Reading, Berkshire, RG31 | £ 395,000 | BUY | 7 / 10 | 0.10 KM |
| Flodden Drive, Calcot, Reading | £ 260,000 | BUY | 6 / 10 | 0.13 KM |
| Flodden Drive, Calcot, Reading, RG31 | £ 250,000 | BUY | Unknown | 0.13 KM |
| Flodden Drive, Calcot, Reading, Berkshire, RG31 | £ 275,000 | BUY | 7 / 10 | 0.13 KM |
Nearby Properties
| Address | Price | Distance |
|---|---|---|
| 23 Bath Road | £ 199,950 | 0.01 KM |
| 3 Bath Road | £ 508,000 | 0.01 KM |
| 13 Bath Road | £ 368,500 | 0.01 KM |
| 27 Bath Road | £ 415,000 | 0.01 KM |
| 9 Bath Road | £ 265,000 | 0.01 KM |