Luscombe Maye says ..
Exclusive Penthouse Apartment | Outstanding Sea Views | Open Plan Living | Large Private Balcony | High Quality Fittings Throughout | Extremely Well Presented | Low Maintenance | Successful Holiday Let | Allocated parking |
Property Oracle says ..
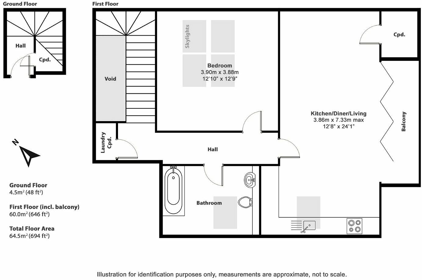
This one-bedroom, one-bathroom penthouse apartment in Stoke Fleming, Devon, presents a compelling proposition for buyers prioritizing location and luxury over expansive outdoor space. Situated in a desirable coastal village, the property boasts stunning sea views which are visible from the large private balcony accessible via bi-fold doors. The interior is modern and meticulously presented, with high-quality fittings and a light and airy feel. The apartment’s open-plan living area seamlessly integrates the kitchen, dining, and living areas. The finishes are high-end, suggesting a recent renovation or new build. While the size is relatively compact, its attractive features such as the extensive use of skylights, high-quality bathroom fixtures, and views compensate for this. The lack of a substantial garden is a noticeable omission, which might not suit all potential buyers. A successful holiday-let history suggests potential for rental income if that is a consideration for the buyer. Its value is determined not only by the relatively smaller size but its very desirable location and high-end features. Its price positioning in the local market, when other properties are much larger, needs to be carefully weighed before purchase, although comparable properties are not provided.
Therefore, we give this property 6 / 10. *Disclaimer: This is our option and does constitute a recommendation or financial advice. Do your own research. *
- Price
- 7
- Condition
- 9
- Location
- 7
- Land
- 2
- Bedrooms
- 1
- Bathrooms
- 1
- Sqft (est)
- 694.27
The heatmap indicates the level of crime in the area. The color of the heatmap indicates the crime severity and recency.
Metrics Year-on-Year
- Average area value
- 216,225.00 £Decreased by 4.32 %
- Est sale value
- 181,898.74 £Increased by 37.89 %
- Average area rental value
- 863.00 £/moDecreased by 37.87 %
- Est letting value
- 694.27 £/moUnchanged by 0.00 %
- Est rental Yield
- 4.79 %Decreased by 35.09 %
- Crime Rate
- 274.00 %Unchanged by 0.00 %
Agent Activity
Luscombe Maye created the listing.
Nearby Schools
| Name | Type | Ofsted | Distance |
|---|---|---|---|
| Stoke Fleming Community Primary School | Academy Converter | 0.83 KM | |
| Dartmouth Academy | Academy Sponsor Led | Good | 2.21 KM |
| Dartmouth & District Children'S Centre | Children's Centre | 2.23 KM | |
| St John The Baptist Roman Catholic Primary School, Dartmouth | Academy Converter | Good | 2.25 KM |
| Kingswear Community Primary School | Academy Converter | Good | 4.10 KM |
Images
Nearby Streets
| Name | Average Price | Average Sqft | Distance |
|---|---|---|---|
| Rectory Lane | £ 0 | 0 | 0.00 KM |
| Well Park Road | £ 0 | 0 | 0.00 KM |
| Redlap Road | £ 2,250,000 | 0 | 0.00 KM |
Nearby Listings
| Address | Price | Type | Score | Distance |
|---|---|---|---|---|
| Ocean Breeze, Stoke Fleming | £ 360,000 | BUY | 6 / 10 | 0.00 KM |
| Stoke Fleming | £ 1,150,000 | BUY | Unknown | 0.01 KM |
| Bidders Close, Stoke Fleming | £ 330,000 | BUY | 6 / 10 | 0.06 KM |
| Stoke House Gardens, Stoke Fleming | £ 280,000 | BUY | 6 / 10 | 0.19 KM |
| Dartmouth Road, Stoke Fleming | £ 335,000 | BUY | Unknown | 0.19 KM |
Nearby Properties
| Address | Price | Distance |
|---|---|---|
| Castleton | £ 750,000 | 0.03 KM |
| 21 Bidders Close | £ 230,000 | 0.09 KM |
| 42 Bidders Close | £ 198,000 | 0.09 KM |
| 12 Bidders Close | £ 195,000 | 0.09 KM |
| 41 Bidders Close | £ 200,000 | 0.09 KM |