Coal Pit Lane, Bickerstaffe, L39
By Arnold & Phillips
£ 225,000
Reviews
3 out of 5 stars
Arnold & Phillips says ..
Brookdale Cottage exudes country charm and vintage vibes, enhanced by its pretty white picket gate and delightful façade.
Property Oracle says ..
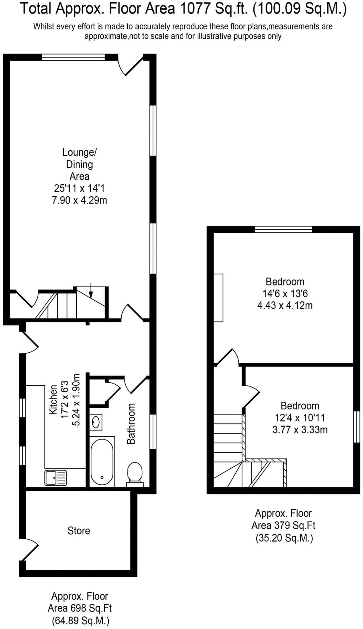
The property is a 2 bedroom cottage located in Bickerstaffe, West Lancashire. It is listed at £225,000 and has 980.02 sqft of living space and a plot size of 1,077 sqft. The average property price in the area is £404,387, with an average price per sqft of £413. This suggests that the list price for this property is significantly below average. Based on the images provided, the property appears to be in relatively good condition, though some minor cosmetic work may be needed. The property benefits from a small garden. The property’s location in Bickerstaffe places it within reasonable proximity to several train stations (Rainford, Upholland, Hoscar, Parbold, Burscough Junction) and schools (St Richard’s Catholic Primary School, Kingsbury Primary Special School, Brookfield Park Primary School, West Lancashire Community High School). The proximity to these amenities is a positive factor. Given the below average price, good condition (requiring only minor cosmetic work), and the presence of a garden, the property appears to be reasonably priced, especially considering the lower average price per sqft compared to the area average. However, the lack of information on the property estimate makes it difficult to provide a definitive assessment.
Therefore, we give this property 7 / 10. *Disclaimer: This is our option and does constitute a recommendation or financial advice. Do your own research. *
- Price
- 9
- Condition
- 8
- Location
- 7
- Land
- 6
- Bedrooms
- 2
- Bathrooms
- 1
- Sqft (est)
- 980.02
- Lot (est)
- 1,077.00
The heatmap indicates the level of crime in the area. The color of the heatmap indicates the crime severity and recency.
Metrics Year-on-Year
- Average area value
- 382,533.00 £Increased by 3.77 %
- Est sale value
- 360,647.36 £Increased by 5.44 %
- Average area rental value
- 1,090.00 £/moDecreased by 17.67 %
- Est letting value
- 980.02 £/moUnchanged by 0.00 %
- Est rental Yield
- 3.42 %Decreased by 20.65 %
- Crime Rate
- 9.00 %Unchanged by 0.00 %
Agent Activity
Arnold & Phillips created the listing.
Nearby Schools
| Name | Type | Ofsted | Distance |
|---|---|---|---|
| St Richard'S Catholic Primary School, Skelmersdale | Voluntary Aided School | Outstanding | 2.34 KM |
| Park Children'S Centre | Children's Centre | 2.34 KM | |
| Kingsbury Primary Special School | Community Special School | Outstanding | 2.77 KM |
| Brookfield Park Primary School | Community School | Good | 2.84 KM |
| West Lancashire Community High School | Community Special School | Good | 2.97 KM |
Images
Nearby Streets
| Name | Average Price | Average Sqft | Distance |
|---|---|---|---|
| Hollyfold Lane | £ 0 | 0 | 0.00 KM |
| Kendal Close | £ 190,000 | 0 | 0.00 KM |
| Swift's Fold | £ 0 | 0 | 0.00 KM |
Nearby Transport
| Name | NLC | TLC | Distance |
|---|---|---|---|
| Rainford | 2404 | RNF | 2.28 KM |
| Upholland | 2364 | UPL | 7.27 KM |
| Hoscar | 2399 | HSC | 7.80 KM |
| Parbold | 2402 | PBL | 8.09 KM |
| Burscough Junction | 2280 | BCJ | 8.60 KM |
Nearby Listings
| Address | Price | Type | Score | Distance |
|---|---|---|---|---|
| Coal Pit Lane, Bickerstaffe, L39 | £ 225,000 | BUY | 7 / 10 | 0.00 KM |
| Brookdale Cottages, 1 Coal Pit Lane, Bickerstaffe, Ormskirk, Lancashire, L39 0HH | £ 195,000 | BUY | 6 / 10 | 0.00 KM |
| Coal Pit Lane, Bickerstaffe | £ 225,000 | BUY | Unknown | 0.01 KM |
| Rainford Road, Bickerstaffe, Ormskirk, L39 0HE | £ 325,000 | BUY | 7 / 10 | 0.42 KM |
| Gorsey Bank Cottage, Rainford Road, Bickerstaffe, Ormskirk, L39 0HF | £ 1,249,500 | BUY | 7 / 10 | 0.61 KM |
Nearby Properties
| Address | Price | Distance |
|---|---|---|
| 4 Rainford Road | £ 210,000 | 0.41 KM |
| 18 Rainford Road | £ 132,000 | 0.41 KM |
| 22 Rainford Road | £ 125,000 | 0.41 KM |
| 26 Rainford Road | £ 96,000 | 0.42 KM |
| 24 Rainford Road | £ 125,000 | 0.42 KM |