3 St Saviours Hill, Seabrook Road, Hythe, Kent, CT21
By Savills New Homes
£ 340,000
Reviews
3 out of 5 stars
Savills New Homes says ..
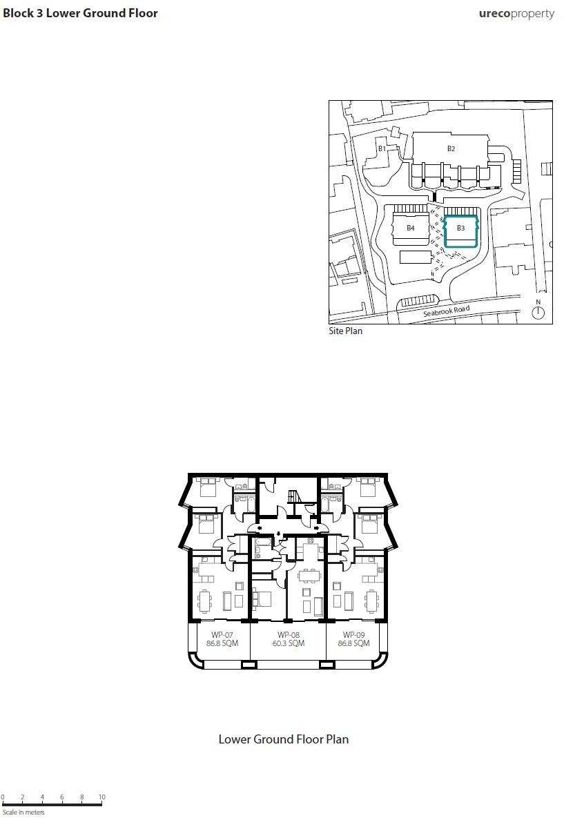
Open Day 22nd November 10am - 2pm Located in the prestigious West Pavilion, this elegant 1-bedroom, 1-bathroom apartment offers a refined coastal escape offering comfort and style.
Property Oracle says ..
This is a modern apartment in Hythe, Kent. The property is in excellent condition and benefits from access to communal gardens. The apartment is close to local schools. The listed square footage of 2,517 sqft seems unusually large for a one-bedroom apartment and may be an error. The price is high for a 1 bedroom apartment in the area.
Therefore, we give this property 6 / 10. *Disclaimer: This is our option and does constitute a recommendation or financial advice. Do your own research. *
- Price
- 5
- Condition
- 9
- Location
- 7
- Land
- 6
- Bedrooms
- 1
- Bathrooms
- 1
- Sqft (est)
- 2,517.68
The heatmap indicates the level of crime in the area. The color of the heatmap indicates the crime severity and recency.
Metrics Year-on-Year
- Average area value
- 695,750.00 £Increased by 35.80 %
- Est sale value
- 1,467,807.44 £Increased by 15.22 %
- Average area rental value
- 1,400.00 £/moDecreased by 11.56 %
- Est letting value
- 2,517.68 £/moUnchanged by 0.00 %
- Est rental Yield
- 2.41 %Decreased by 35.04 %
- Crime Rate
- 17.00 %Unchanged by 0.00 %
Agent Activity
Savills New Homes created the listing.
Nearby Schools
| Name | Type | Ofsted | Distance |
|---|---|---|---|
| Seabrook Church Of England Primary School | Voluntary Controlled School | Outstanding | 1.29 KM |
| Folkestone, St Martin'S Church Of England Primary School | Voluntary Controlled School | Outstanding | 2.34 KM |
| Cheriton Primary School | Foundation School | Good | 3.04 KM |
| Hythe Bay Children'S Centre | Children's Centre | 3.32 KM | |
| Saltwood Cofe Primary School | Voluntary Aided School | Outstanding | 3.32 KM |
Images
Nearby Streets
| Name | Average Price | Average Sqft | Distance |
|---|---|---|---|
| Highridge | £ 0 | 0 | 0.00 KM |
| Colin's Way | £ 0 | 0 | 0.00 KM |
| Owens Close | £ 0 | 0 | 0.00 KM |
| Brook Close | £ 0 | 0 | 0.00 KM |
| Victoria Terrace | £ 0 | 0 | 0.00 KM |
Nearby Transport
| Name | NLC | TLC | Distance |
|---|---|---|---|
| Sandling | 5025 | SDG | 5.10 KM |
| Folkestone West | 5027 | FKW | 5.22 KM |
| Folkestone Central | 5035 | FKC | 6.86 KM |
| Westenhanger | 5030 | WHA | 8.18 KM |
Nearby Listings
| Address | Price | Type | Score | Distance |
|---|---|---|---|---|
| 5 St Saviours Hill, Seabrook Road, Hythe, Kent, CT21 | £ 1,150,000 | BUY | 6 / 10 | 0.00 KM |
| Seabrook Road, Hythe, Kent, CT21 | £ 350,000 | BUY | 7 / 10 | 0.00 KM |
| 3 St Saviours Hill, Seabrook Road, Hythe, Kent, CT21 | £ 340,000 | BUY | 6 / 10 | 0.00 KM |
| 1 St Saviours Hill, Seabrook Road, Hythe, Kent, CT21 | £ 490,000 | BUY | 7 / 10 | 0.00 KM |
| 5 St Saviours Hill, Seabrook Road, Hythe, Kent, CT21 | £ 580,000 | BUY | 7 / 10 | 0.00 KM |
Nearby Properties
| Address | Price | Distance |
|---|---|---|
| 67a Seabrook Road | £ 485,000 | 0.03 KM |
| The Kestrel | £ 1,225,000 | 0.03 KM |
| 67 Seabrook Road | £ 620,000 | 0.03 KM |
| 83a Seabrook Road | £ 445,000 | 0.03 KM |
| 63 Seabrook Road | £ 755,000 | 0.03 KM |