Yopa says ..
A spacious one bedroom first floor flat situated in the Charford area of Bromsgrove with easy access to nearby amenities. The property is in very good condition with a modern kitchen and bathroom. If applicable, the current tenant would like to stay on. Viewing highly recommended.
Property Oracle says ..
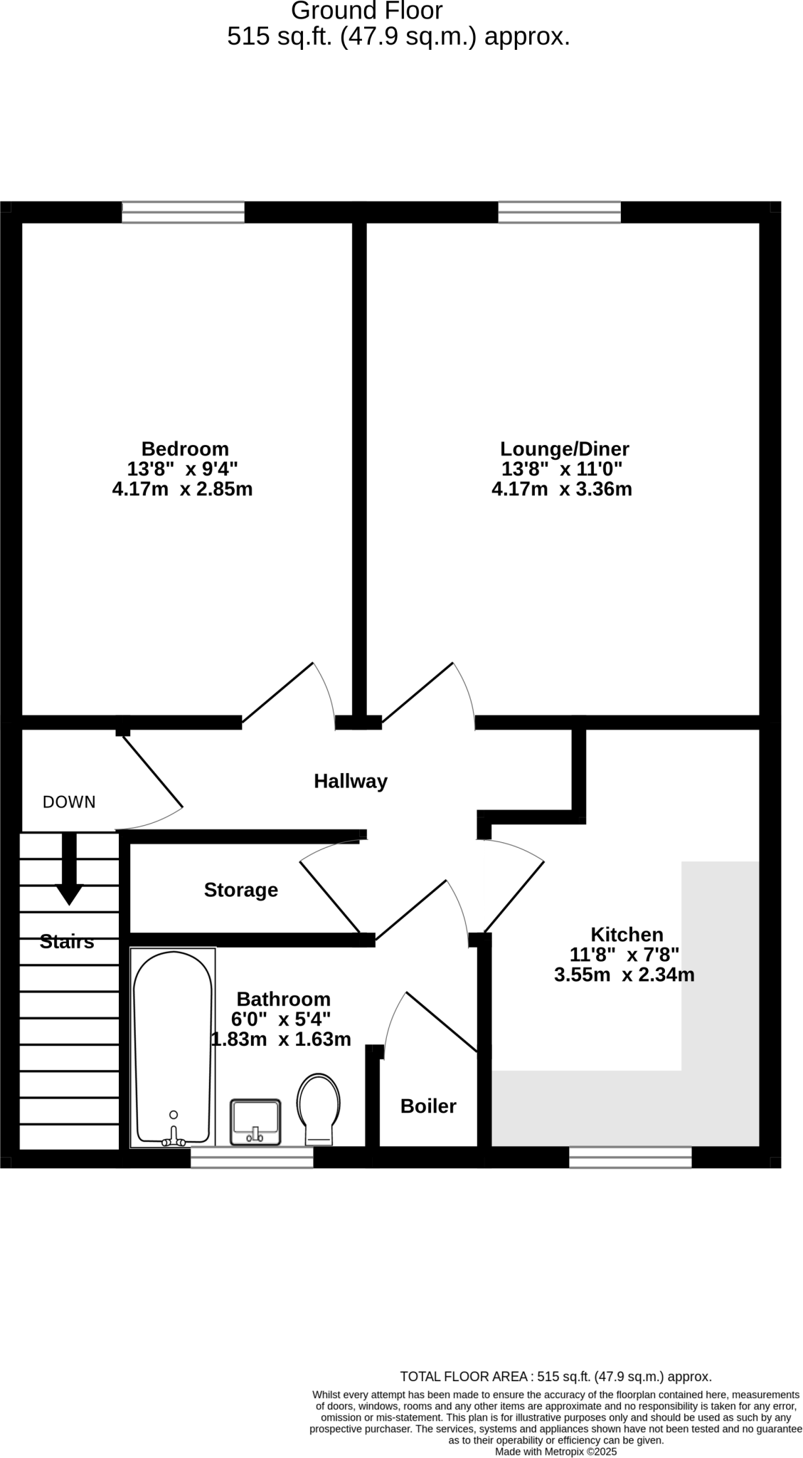
This property is a 1-bedroom flat located in Charford, Bromsgrove. The property benefits from a small garden. The interior appears to be in good condition and has recently been updated with a modern kitchen and bathroom. The property is listed at £110,000, which is significantly below the average price for the area. However, it is important to note that the average price per square foot in the area is £75, while this property is only 415 sqft. The nearby properties are predominantly terraced houses, and the average price for flats in the area is not provided. Given the size and type of property, the price may be reasonable for a first-time buyer or investor.
Therefore, we give this property 7 / 10. *Disclaimer: This is our option and does constitute a recommendation or financial advice. Do your own research. *
- Price
- 7
- Condition
- 8
- Location
- 7
- Land
- 6
- Bedrooms
- 1
- Bathrooms
- 1
- Sqft (est)
- 415.00
- Lot (est)
- 515.00
The heatmap indicates the level of crime in the area. The color of the heatmap indicates the crime severity and recency.
Metrics Year-on-Year
- Average area value
- 244,986.00 £Increased by 20.98 %
- Est sale value
- 130,725.00 £Increased by 17.98 %
- Average area rental value
- 778.00 £/moDecreased by 23.50 %
- Est letting value
- 415.00 £/moUnchanged by 0.00 %
- Est rental Yield
- 3.81 %Decreased by 36.82 %
- Crime Rate
- 44.00 %Unchanged by 0.00 %
Agent Activity
Yopa created the listing.
Nearby Schools
| Name | Type | Ofsted | Distance |
|---|---|---|---|
| St Peter'S Catholic First School | Academy Converter | Good | 0.55 KM |
| Millfields First School | Community School | Good | 0.63 KM |
| South Bromsgrove High | Academy Converter | 1.13 KM | |
| Bromsgrove School | Other Independent School | 1.31 KM | |
| St John'S Church Of England Middle School Academy | Academy Converter | 1.32 KM |
Images
Nearby Streets
| Name | Average Price | Average Sqft | Distance |
|---|---|---|---|
| Morris Walk | £ 150,000 | 0 | 0.00 KM |
| Talbot Road | £ 115,000 | 0 | 0.00 KM |
| Farrier Close | £ 499,950 | 0 | 0.00 KM |
| Forelands Grove | £ 325,000 | 0 | 0.00 KM |
| Rock Hill | £ 255,000 | 0 | 0.00 KM |
Nearby Transport
| Name | NLC | TLC | Distance |
|---|---|---|---|
| Bromsgrove | 4715 | BMV | 2.88 KM |
| Barnt Green | 1096 | BTG | 9.93 KM |
Nearby Listings
| Address | Price | Type | Score | Distance |
|---|---|---|---|---|
| Austin Road, Bromsgrove, B60 | £ 110,000 | BUY | 7 / 10 | 0.00 KM |
| Austin Road, Bromsgrove, B60 | £ 90,000 | BUY | Unknown | 0.01 KM |
| Austin Road, Bromsgrove, B60 | £ 100,000 | BUY | 5 / 10 | 0.01 KM |
| Henry Walk, Bromsgrove, Worcestershire, B60 | £ 180,000 | BUY | 5 / 10 | 0.18 KM |
| Henry Walk, BROMSGROVE | £ 120,000 | BUY | 6 / 10 | 0.19 KM |
Nearby Properties
| Address | Price | Distance |
|---|---|---|
| 162 Austin Road | £ 78,000 | 0.02 KM |
| 160 Austin Road | £ 66,500 | 0.02 KM |
| 158 Austin Road | £ 78,000 | 0.02 KM |
| 55 Crossley Walk | £ 56,950 | 0.08 KM |
| 53 Crossley Walk | £ 56,000 | 0.08 KM |