Nova Scotia Drive, Farnborough, Hampshire, GU14
By Mackenzie Smith
£ 350,000
Reviews
3 out of 5 stars
Mackenzie Smith says ..
A well-presented coach house style property offering no onward chain and generous accommodation designed for low-maintenance living. Situated within easy reach of Southwood and its wide range of amenities.
Property Oracle says ..
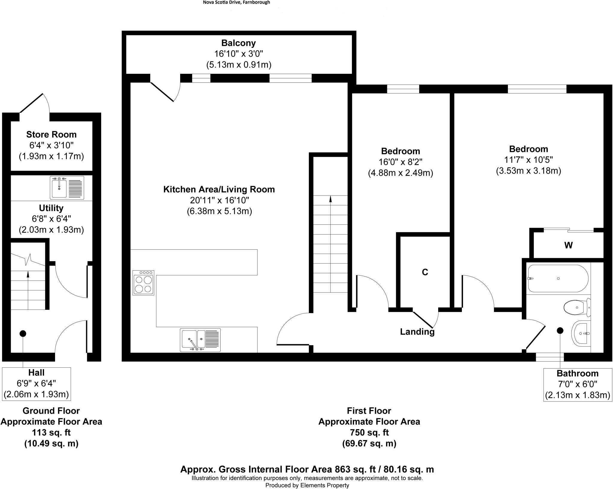
This is a modern two-bedroom house in Farnborough, Hampshire. The property appears to be in good condition, with a modern kitchen and bathroom. While it lacks a substantial garden, it benefits from a balcony. The location is convenient, with nearby schools and transportation links. The price seems reasonable compared to the local market. It would be ideal for a small family or commuters.
Therefore, we give this property 6 / 10. *Disclaimer: This is our option and does constitute a recommendation or financial advice. Do your own research. *
- Price
- 7
- Condition
- 9
- Location
- 7
- Land
- 3
- Bedrooms
- 2
- Bathrooms
- 1
- Sqft (est)
- 862.84
The heatmap indicates the level of crime in the area. The color of the heatmap indicates the crime severity and recency.
Metrics Year-on-Year
- Average area value
- 384,737.00 £Decreased by 1.20 %
- Est sale value
- 351,175.88 £Increased by 15.95 %
- Average area rental value
- 1,963.00 £/moIncreased by 39.81 %
- Est letting value
- 1,725.68 £/moIncreased by 100.00 %
- Est rental Yield
- 6.12 %Increased by 41.34 %
- Crime Rate
- 8.00 %Unchanged by 0.00 %
Agent Activity
Mackenzie Smith created the listing.
Nearby Schools
| Name | Type | Ofsted | Distance |
|---|---|---|---|
| Southwood Infant School | Community School | Good | 0.23 KM |
| Parsonage Farm Nursery And Infant School | Community School | Outstanding | 0.97 KM |
| Cove School | Foundation School | Good | 1.02 KM |
| Cove Junior School | Community School | Good | 1.18 KM |
| Cove Infant School | Community School | Requires improvement | 1.20 KM |
Images
Nearby Streets
| Name | Average Price | Average Sqft | Distance |
|---|---|---|---|
| Apollo Rise | £ 407,500 | 0 | 0.00 KM |
| Jubilee Close | £ 0 | 0 | 0.00 KM |
| Rhine Banks | £ 0 | 0 | 0.00 KM |
| Kendal Close | £ 0 | 0 | 0.00 KM |
| Church Lane | £ 675,000 | 0 | 0.00 KM |
Nearby Transport
| Name | NLC | TLC | Distance |
|---|---|---|---|
| Farnborough (Main) | 5521 | FNB | 3.31 KM |
| Blackwater | 5625 | BAW | 4.43 KM |
| Frimley | 5683 | FML | 4.75 KM |
| Farnborough North | 5688 | FNN | 4.80 KM |
| Fleet | 5522 | FLE | 5.03 KM |
Nearby Listings
| Address | Price | Type | Score | Distance |
|---|---|---|---|---|
| Nova Scotia Drive, Farnborough, Hampshire, GU14 | £ 350,000 | BUY | 6 / 10 | 0.00 KM |
| Nova Scotia Drive, Farnborough, Hampshire, GU14 | £ 530,000 | BUY | 7 / 10 | 0.02 KM |
| Ontario Road, Farnborough | £ 425,000 | BUY | Unknown | 0.07 KM |
| 26 Canada Avenue, Farnborough, GU14 0FJ | £ 159,250 | BUY | 7 / 10 | 0.11 KM |
| Montreal Close, Farnborough, Hampshire, GU14 | £ 360,000 | BUY | 6 / 10 | 0.13 KM |
Nearby Properties
| Address | Price | Distance |
|---|---|---|
| 5 Nevada Close | £ 295,000 | 0.20 KM |
| 10 Nevada Close | £ 215,000 | 0.20 KM |
| 7 Nevada Close | £ 285,000 | 0.20 KM |
| 2 Nevada Close | £ 250,000 | 0.20 KM |
| 58 Chiltern Avenue | £ 87,000 | 0.21 KM |