Squires Lane, Finchley, London, N3
By Winkworth
£ 395,000
Reviews
3 out of 5 stars
Winkworth says ..
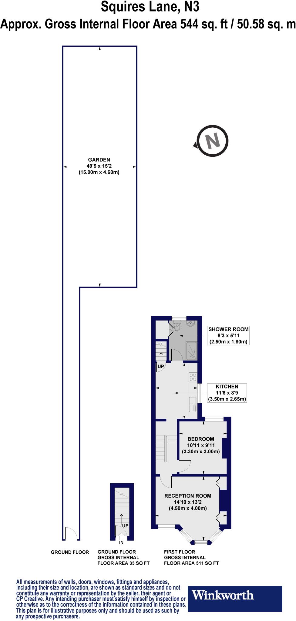
We are pleased to offer to the market, this one bedroom first floor period style conversion flat, conveniently located for Finchley Central underground, shopping facilities, Outstanding Ofsted Rated Primary Schools, Victoria Park and the listed Stephens House & Gardens. The property comprises...
Property Oracle says ..
This one-bedroom flat in West Finchley, London, presents a reasonable option for a buyer looking for convenient access to transport and amenities. The property’s proximity to Finchley Central underground station and an Outstanding Ofsted-rated primary school are significant location advantages, making it attractive to families and commuters. The photographs reveal a property that’s well-presented, with a modernised kitchen and bathroom. Minor cosmetic improvements could be made, and the garden is small and overgrown. The absence of precise square footage data for comparable properties makes a definite per-square-foot price analysis impossible. However, considering the range of prices for nearby one-bedroom flats, the asking price appears to be within the expected range for this area, given the property’s condition and desirable location features. Potential buyers should consider the limited garden space and undertake a thorough survey before making an offer.
Therefore, we give this property 6 / 10. *Disclaimer: This is our option and does constitute a recommendation or financial advice. Do your own research. *
- Price
- 7
- Condition
- 7
- Location
- 8
- Land
- 3
- Bedrooms
- 1
- Bathrooms
- 1
- Sqft (est)
- 544.44
The heatmap indicates the level of crime in the area. The color of the heatmap indicates the crime severity and recency.
Metrics Year-on-Year
- Average area value
- 659,086.00 £Increased by 6.43 %
- Est sale value
- 451,340.76 £Increased by 20.49 %
- Average area rental value
- 2,352.00 £/moDecreased by 3.41 %
- Est letting value
- 1,088.88 £/moUnchanged by 0.00 %
- Est rental Yield
- 4.28 %Decreased by 9.32 %
- Crime Rate
- 1.00 %Unchanged by 0.00 %
Agent Activity
Winkworth created the listing.
Nearby Schools
| Name | Type | Ofsted | Distance |
|---|---|---|---|
| Manorside Primary School | Community School | Outstanding | 0.35 KM |
| Tudor Primary School | Community School | Good | 0.69 KM |
| St Theresa'S Catholic Primary School | Voluntary Aided School | Good | 0.71 KM |
| Akiva School | Voluntary Aided School | Good | 0.75 KM |
| Bishop Douglass School Finchley | Academy Converter | Good | 0.79 KM |
Images
Nearby Streets
| Name | Average Price | Average Sqft | Distance |
|---|---|---|---|
| Primrose Close | £ 0 | 0 | 0.00 KM |
| Cromwell Road | £ 0 | 0 | 0.00 KM |
| Juliana Close | £ 575,000 | 0 | 0.00 KM |
| The Mead | £ 327,000 | 0 | 0.00 KM |
| Hervey Close | £ 699,500 | 0 | 0.00 KM |
Nearby Transport
| Name | NLC | TLC | Distance |
|---|---|---|---|
| Oakleigh Park | 6020 | OKL | 4.72 KM |
| New Southgate | 6019 | NSG | 4.79 KM |
| Hampstead Heath | 1413 | HDH | 5.26 KM |
| Finchley Road And Frognal | 1445 | FNY | 5.42 KM |
| Cricklewood | 1519 | CRI | 5.54 KM |
Nearby Listings
| Address | Price | Type | Score | Distance |
|---|---|---|---|---|
| Squires Lane, Finchley, London, N3 | £ 395,000 | BUY | 6 / 10 | 0.00 KM |
| 221 Squires Lane, Finchley, London, N3 | £ 185,000 | BUY | 5 / 10 | 0.01 KM |
| Squires Lane, Finchley, London | £ 575,000 | BUY | 5 / 10 | 0.02 KM |
| Squires Lane, London | £ 475,000 | BUY | 7 / 10 | 0.03 KM |
| Squires Lane, Finchley | £ 625,000 | BUY | 5 / 10 | 0.03 KM |
Nearby Properties
| Address | Price | Distance |
|---|---|---|
| 239 Squires Lane | £ 264,000 | 0.01 KM |
| 257a Squires Lane | £ 335,000 | 0.01 KM |
| 221 Squires Lane | £ 150,000 | 0.01 KM |
| 253 Squires Lane | £ 397,500 | 0.01 KM |
| 189 Squires Lane | £ 249,500 | 0.01 KM |